Curiosii for ever!: Car repair manuals for everyone.

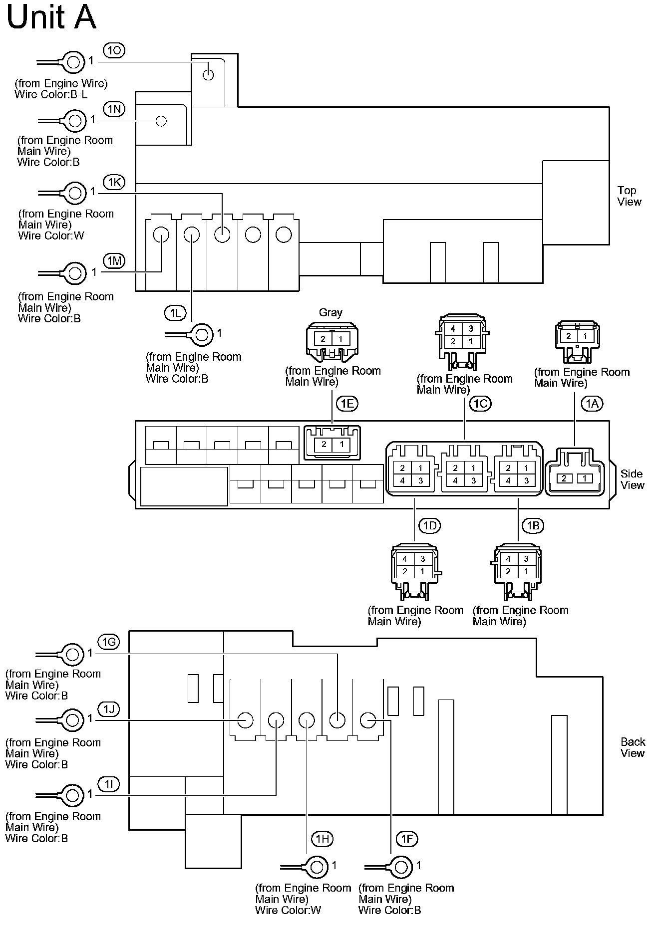
Relay Box

Engine Room R/B No.1, J/B No.1 - Engine Compartment Right:



Engine Room R/B No.2, J/B No.2 - Engine Compartment Right:



Driver Side J/B - Cowl Side Left:



Driver Side J/B - Cowl Side Left:



Driver Side J/B - Cowl Side Left:



Passenger Side J/B - Cowl Side Right:



Passenger Side J/B - Cowl Side Right:



Passenger Side J/B - Cowl Side Right:



Luggage Room J/B - Luggage Room Left:



Luggage Room J/B - Luggage Room Left:



Luggage Room J/B - Luggage Room Left:



J/B No.3 - Instrument Panel Center:



J/B No.4 - Instrument Panel Center:



J/B No.5 - Instrument Panel Center: