Curiosii for ever!: Car repair manuals for everyone.

Fuse Block: Locations






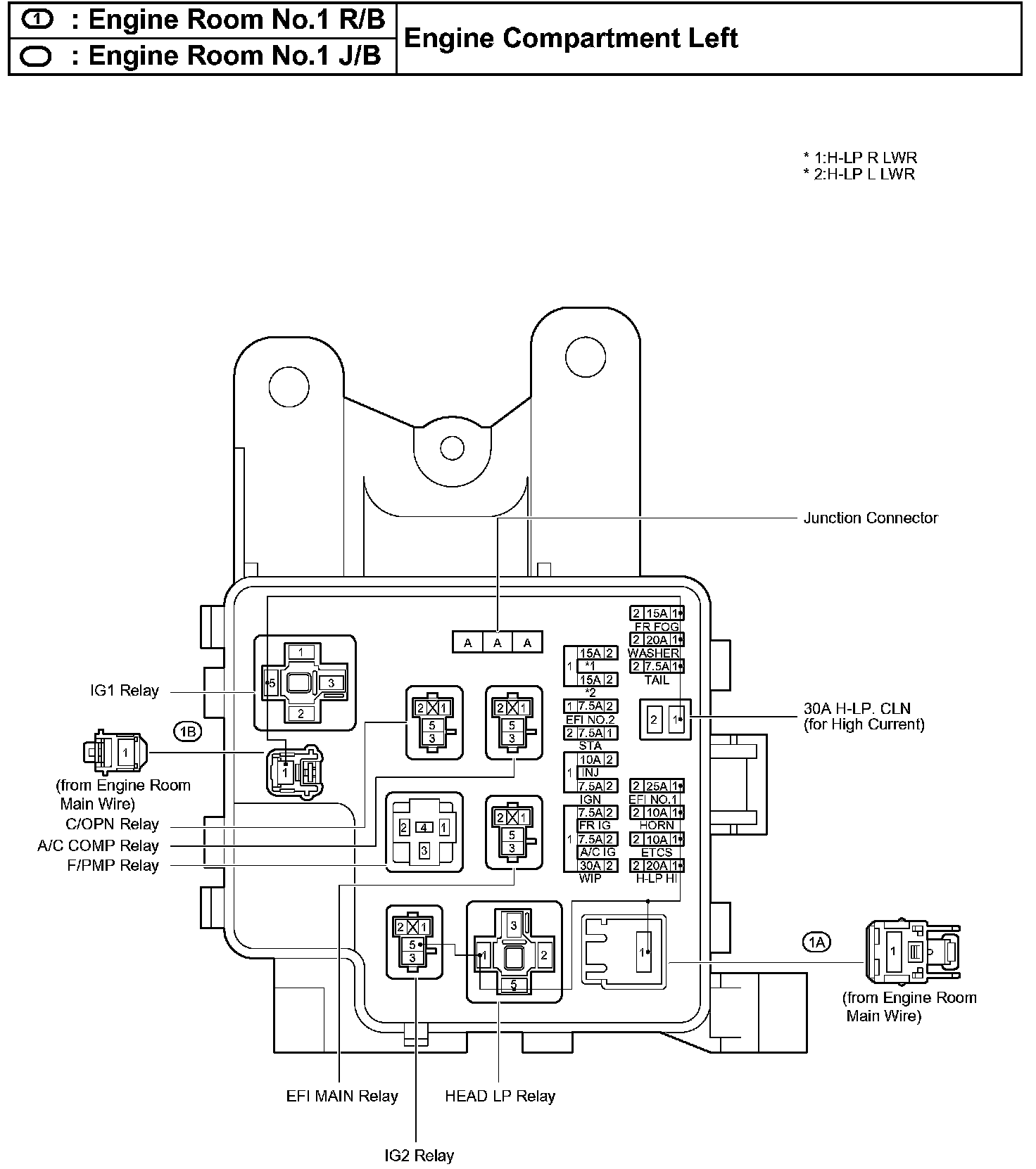
Engine Room R/B 1:




Engine Room R/B 2:




Engine Room R/B 3:




Fusible Link Block:




Driver Side J/B:




Driver Side J/B:




Passenger Side J/B:




Passenger Side J/B:




Luggage Room J/B:




Fuse Details


Engine Compartment:




Instrument Panel:




Body:




Da - Ju:




Ke - Ti:




He - Lu:




Dr - Ro:





Locations