Curiosii for ever!: Car repair manuals for everyone.

Emissions - LEVII EVAP System Check For Multiple DTC's

ENGINE
EG008-04
REVISED

Title:
REPAIR MANUAL SUPPLEMENT:
LEV II EVAP SYSTEM CHECK.
DTC P0441, P0442, P0446, P0451,
P0452, P0453, P0455 & P0456

Models:
'03 - '04 GX 470, '04 ES 330 & RX 330

July 28, 2004

TSIB REVISION NOTICE:

^ January 6, 2005: A change has been made to the diagram in section "A. LEV II SYS CHECK Description" ("CCV Stuck Open" changed to "EVAP VSV Stuck Open").

^ November 12, 2004: Changes have been made throughout this bulletin to clarify content. Please read entire TSIB.

The previous TSIB should be discarded.

Introduction

This TSIB provides detailed instructions for a new LEV II EVAP System Check function using the Diagnostic Tester.

The LEV II System Check allows the Diagnostic Tester to display the fuel tank vapor pressure as the EVAP VSV and the CCV are operated in a specific six-step pattern. Problems with the EVAP system are quickly isolated by observing the change in vapor pressure during each step.

Once the vehicle condition is corrected, the LEV II System Check can also be used to confirm the repair before the vehicle is returned to the customer.

The inspection procedure using the LEV II System Check (LEV II SYS CHECK) is described in this bulletin. This function is available using a Diagnostic Tester with version 11.0a software (or newer).

Applicable Vehicles

^ 2003 - 2004 model year GX 470 vehicles equipped with 2UZ-FE engine.

^ 2004 model year ES 330 and RX 330 vehicles equipped with 3MZ-FE engine.





Table of Contents





Warranty Information





Required SSTs





Terms & Definitions





Section A - LEV II SYS CHECK Description





Section B - DTC Check


























Section C - LEV II SYS CHECK (Diagnostic Tester System Test)











Section D - Air Inlet Restriction Inspection





Section E - EVAP VSV Stuck-Open Inspection

















Section F - Leak Check or No Vacuum Drawn on System Inspection











Section G - CCV Diagnostics

















Section H - EVAP VSV Diagnostics











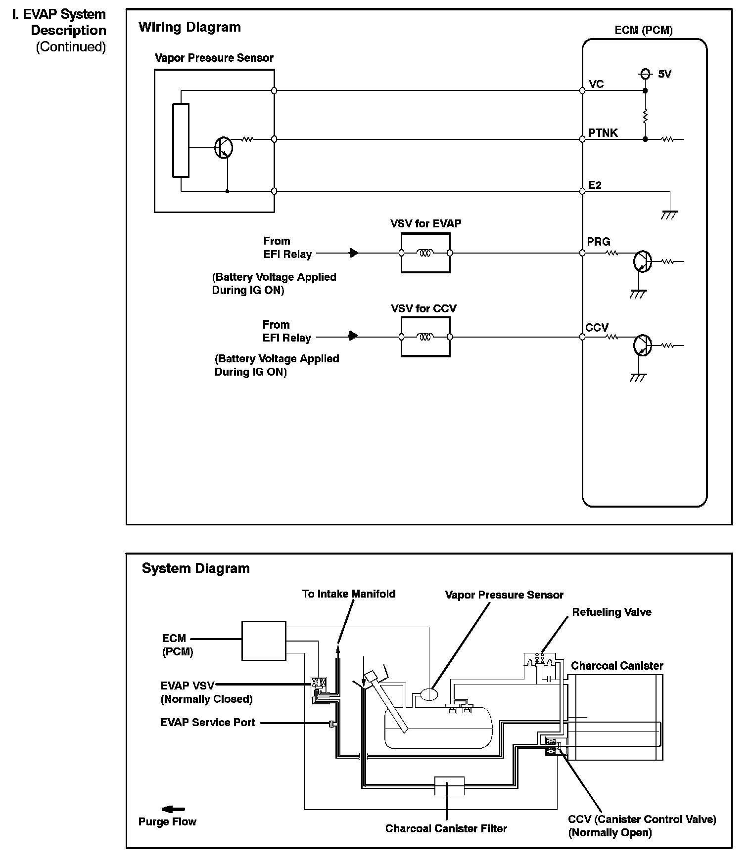
Section I - EVAP System Description








Section J - EVAP System DTC Descriptions














Section K - EVAP Monitor Description











Section L - OBD II EVAP Monitor Specification