Curiosii for ever!: Car repair manuals for everyone.

Connector Locations

Junction Block and Wire Harness Connector:




JUNCTION BLOCK AND WIRE HARNESS CONNECTOR

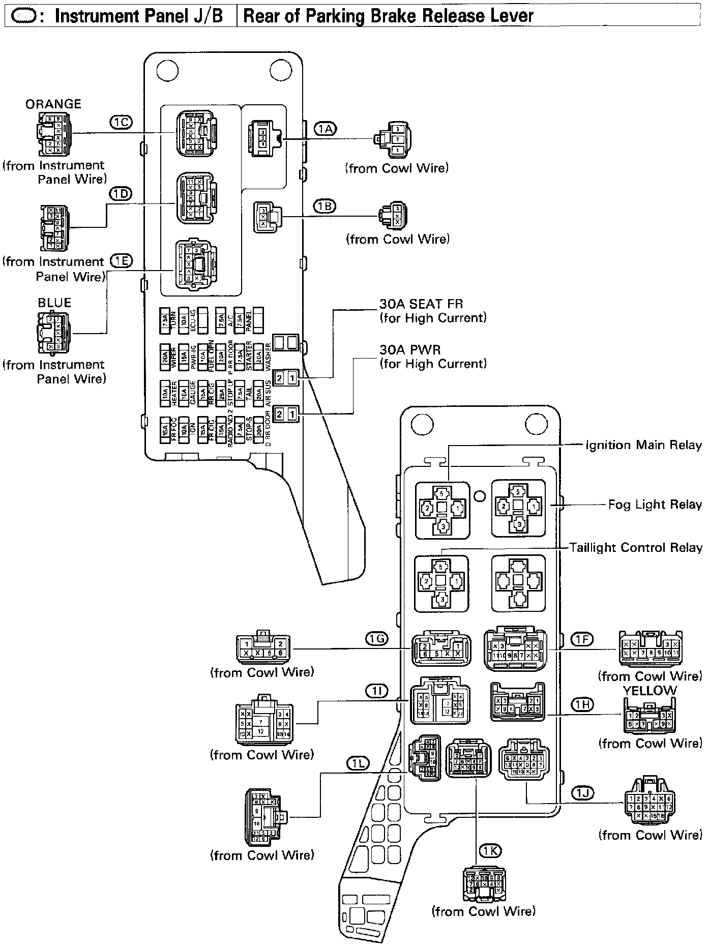
Instrument Panel J/B - Rear Of Parking Brake Release Lever (Fig 20):




FIG 20

Engine Room J/B - Engine Compartment Left (Fig 22):




FIG 22

Center J/B - Behind The Combination Meter (Fig 24):




FIG 24

Driver Side J/B - Left Kick Panel (Fig 26):




FIG 26