Curiosii for ever!: Car repair manuals for everyone.

Remove









To assist in the removal of the transmission assembly from the vehicle it is necessary to locally manufacture an adaptor plate to use in conjunction with a transmission hoist.

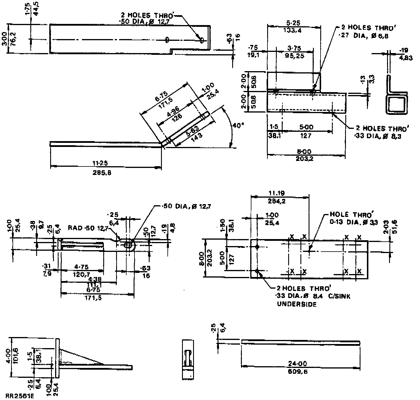
NOTE: Four holes (A) to be countersunk on underside to suit hoist.

REMOVE TRANSFER CASE
The transfer case should be removed from underneath the vehicle, using a hydraulic transmission hoist. An adaptor plate for locating the transfer case onto the hoist can be manufactured locally to the drawing below.





Material: Steel plate BS 1449 Grade 4 or 14 (Mild Steel).





Holes marked * to be drilled to fit hoist being used.

NOTE: The following preparation work is necessary prior to the removal of the gearbox to avoid unnecessary damage to associated components.

Outside the Vehicle
1. Place the vehicle on a hoist and chock the wheels.
2. Disconnect the battery negative terminal.
3. Disconnect the airflow meter to plenum chamber hose.
4. Remove the fan blade/clutch assembly noting that the fan clutch hub has a left hand thread, enabling the engine to be tipped rearwards when the transmission is ready to be removed.

Inside the Vehicle
5. Remove the four screws securing the liner to the glove box and lift out the liner. Detach the two relay mounting blocks from the clip on the side of the glove box.
6. Disconnect the electrical leads to the rear cigar lighter.
7. Carefully pry the window lift switch panel away from the front of the glove box, maneuver the switch panel complete with switches back inside the glove box and allow to lie loose on the gearbox tunnel.





8. Select low range, unscrew and remove the transfer lever knob.
9. Unclip the top cover of the main gearbox selector and remove the circlip. Withdraw the detent button. Remove the circlip above the selector knob retention nut, remove the nut, serrated washer and withdraw the selector knob.
10. Carefully pry the center panel out of the floor mounted console. Disconnect the electrical leads to the graphics panel on the underside of the center panel and remove it from the vehicle.





11. Release the two bolts and two screws securing the console assembly to the gearbox tunnel.
12. Release the parkbrake, pull the boot forward to gain access to the clevis pin. Remove the cotter pin, clevis pin and washer securing the parkbrake cable to the parkbrake lever.
13. Detach the console locating tab from the radio housing by easing the console slightly rearwards.
14. Carefully maneuver the glove box assembly rearwards (while raising the parkbrake lever to its uppermost position) away from the radio housing and remove the glove box assembly from the vehicle.
15. Remove the sound deadening material from the top of the gearbox tunnel.

Underneath the Vehicle





16. Raise the the vehicle on the hoist and remove the transfer case drain plug and allow the oil to drain into a suitable container, meanwhile continue with the preparation operations.
17. Refit the oil drain plug.
18. Disconnect the multi-plugs to the Lambda sensors.
19. Remove the front exhaust down pipes and intermediate pipe complete with center muffler.





NOTE: Operation 19 will require the assistance of a second mechanic to support the exhaust system while the various fasteners are released.

20. Remove the underbody floor mounted center muffler heat shield.





21. Mark each drive flange with an identification line to aid reassembly. Remove the nuts securing the front and rear drive shafts to the transfer case and tie both shafts clear of the working area.
22. Release the clamp and withdraw the speedometer cable from the rear output housing. Free the cable from the clip at the left hand side of the transfer case.
23. Remove the three fasteners securing the tie bar to the transmission.
24. Secure the adaptor plate to the gearbox hoist with two nuts and bolts.

NOTE: To ensure that the weight of the transfer case is centered on the hoist, fit the adaptor plate on the hoist platform so that the split line of the gearbox is aligned with the center line of the ram.

25. Remove the crossmember from below the main gearbox.

Remove the Transfer Gearbox
26. Using a suitable hydraulic hoist, support the main gearbox.
27. Loosen the transfer case right hand mounting rubber, upper nut and remove the lower nut. Remove the fasteners and withdraw the transfer case to chassis outer half of the mounting bracket.
28. Remove the inner half of the mounting bracket from the transfer case.
29. Adjust the height of the hoist and place in position under the transfer case so that the adaptor plate holes align with the transfer case mounting bracket location.
30. Using the two short bolts previously removed from the right hand gearbox mounting bracket, secure the adaptor plate to the gearbox.
31. Remove the bolts securing the left hand mounting bracket to chassis.
32. Lower the front hoist to allow the transmission to be lowered.
33. Lower the transmission assembly until the top of the transfer case clears the rear passenger footwell.





34. Remove the cotter pin, clevis pin and washer securing the parkbrake cable to the brake drum actuating lever and disconnect the cable.
35. Remove the clip that secures the parkbrake cable to the support bracket, feed the cable through the bracket and tie the cable to one side.
36. Disconnect the electrical plug to the neutral warning switch.
37. Remove the breather pipe from the top of the transfer case.
38. Release the spring clip retaining the clevis pin, withdraw the clevis pin and clip assembly. Remove the high/low rod from the transfer case selector lever.
39. Support the main gearbox with the previously lowered hoist before detaching the transfer case.
40. Remove the upper and lower bolts and two nuts securing the transfer box to the main gearbox.
41. Maneuver the transfer case rearwards to detach it from the main gearbox.