Curiosii for ever!: Car repair manuals for everyone.

Seat Temperature Switch: Service and Repair





Inspection

Front Seat Heater Switch
1. Disconnect the negative (-) battery terminal.
2. Remove the floor console upper cover.

3. Remove the seat heater switch connectors from the floor console upper cover (A).




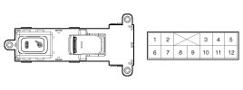
4. Operate each seat heater switch and check that continuity exists between the terminals.
If there is no continuity, replace the seat heater switch
[A/T]




[M/T]









Rear Seat Heater Switch
1. Disconnect the negative (-) battery terminal.
2. Remove the rear door trim.

3. Remove the power window switch(A).




4. Turn rear seat heater switch ON and check that continuity exists between the terminals.
If there is no continuity, replace the seat heater switch.










Installation

1. Install the seat heater switch.
2. Install the power window switch.
3. Install the rear door trim.