Curiosii for ever!
: Car repair manuals for everyone.
Home
>>
Kia
>>
2010
>>
Optima L4-2.4L
>>
Repair and Diagnosis
>>
Diagrams
>>
Electrical Diagrams
>>
Antilock Brakes / Traction Control Systems
>>
ESC(Electronic Stability Control) System
ESC(Electronic Stability Control) System
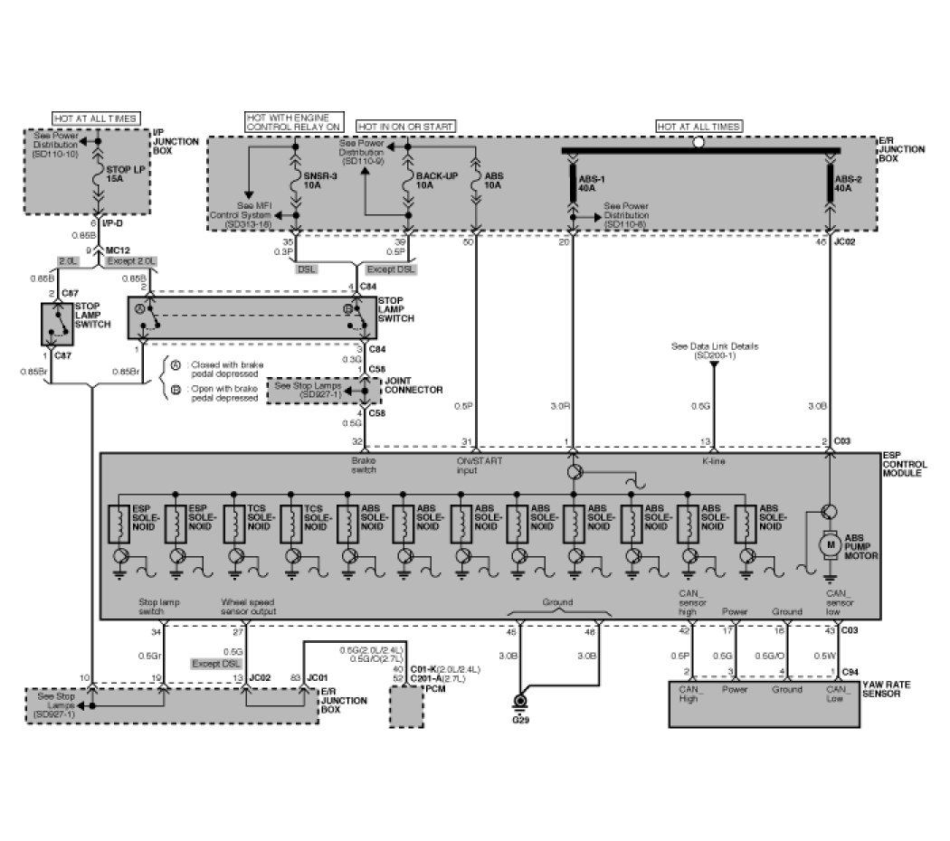
Circuit Diagram - ESC(1)
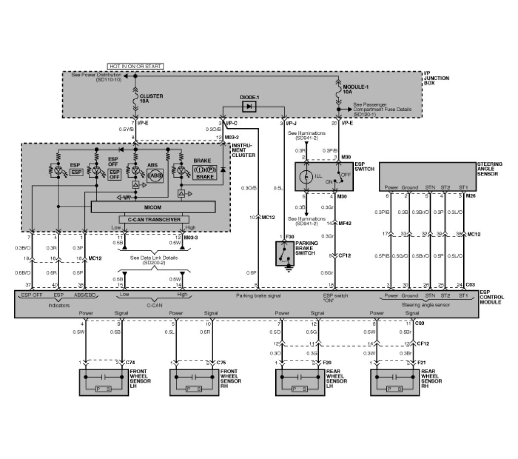
Circuit Diagram - ESC(2)
ESC Connector Input/Output