Curiosii for ever!
: Car repair manuals for everyone.
Home
>>
Isuzu
>>
1988
>>
I-Mark L4-1471cc 1.5L
>>
Repair and Diagnosis
>>
Diagrams
>>
Electrical Diagrams
>>
Starting System
>>
Less Turbo
Less Turbo
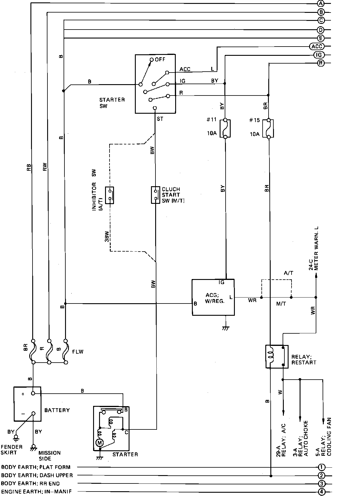
Starting Motor Wiring Circuit. Less Turbo: