Curiosii for ever!: Car repair manuals for everyone.

Reassembly




Transfer Reassembly

The rear cover oil seals and the rear output shaft ball bearings cannot be reused. They must be replaced with new ones when the transfer is reassembled.





1. Use the oil seal installer (J-46201) to press the new input shaft and/or front output shaft oil seals into place (If replacement is required).
2. Use a press to install the ball bearings to the front output shaft. Be sure that the bearings are fully inserted and then install the snap ring.





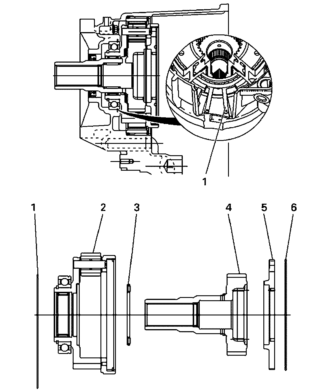
3. Install the damper ring (1) and the internal gear (2) to the transfer case. Be sure that the damper ring is between the internal gear (2) and the case.





Note the direction of the damper ring installation above.





4. Use a press and the special tool (J-46200) and grip (J-8092) to hold the internal gear (2) against the damper ring (1). Install the retaining ring





5. Use a press and the installer (J-46198) and grip (J-8092) to force the needle bearing fully into the carrier and gear assembly.





6. Use a press and an appropriate special tool to force the ball bearings fully into the carrier and gear assembly.





7. Install the carrier snap ring.
8. Install the thrust needle bearing (3), the sungear input shaft (4), the needle bearing, the planetary dog teeth (5), and the dog teeth snap ring (6) to the carrier and gear assembly (2) in that order.
9. Install the outer retaining ring to the transfer case.
10. Use a pair of snap ring pliers to install the carrier and gear assembly.

NOTE: Be sure that the outer retaining ring fits snugly in it's groove.





11. Use a press to install the 2-4 hub.
12. Install the hub snap ring.





13. Install the two synchronizer key springs (3), the synchronizer key (3), and the 2-4 sleeve (2) to the 2-4 hub. The key and the open end of the springs must be facing the opposite direction.
14. Insert the H-L sleeve (1) into the main shaft.





15. Install the sleeve (1) to the H-L shift assembly.
16. Install the sleeve (2) to the 2-4 shift assembly.
17. Coat the area around each of the shaft assembly insertion holes (transfer case) with transfer oil.
18. Install the main shaft together with the H-L shift assembly (1) and the 2-4 shift assembly (2) to the shaft drum (4).
19. Align the shift shaft (3) splines with the shift drum (4) and install the shafts to the drum.

NOTE: Be careful in the direction of assembly





20. Coat the main shaft with oil.





21. Align the block ring (1), the outside ring (2), and the inside ring (3) with the 2-4 hub assembly and install them.
22. Assemble the sprocket (4), transfer chain and front output shaft (6).
23. Install the sprocket (4), transfer chain, and front output shaft (6) to the main shaft and transfer case.
24. Align the sprocket thrust washer (7) with the main shaft groove and install it.





25. Select a snap ring that will allow minimum axial play. Insert it to the main shaft installation groove.

Snap Ring Thickness and Identification color:
2.15 mm (0.085 in.) Red
2.10 mm (0.083 in.) Not colored
2.05 mm (0.081 in.) Blue
2.00 mm (0.079 in.) White

26. Measure the snap ring external diameter. If the measured diameter is outside the specified range, a larger or smaller snap ring must be used.

Snap Ring
Outside Diameter 53.0 ± 0.5 mm (2.09 ± 0.02 in.)


27. Position the rear cover so that it's mating surfaces are facing up.





28. Use a press and the installer (J-46199) and grip (J-8092) to install the front output shaft needle bearing. The installer must be aligned with the needle bearing manufacturer's name (stamped on the bearing).





29. Install the oil pump wire snap ring (1) to the rear cover.





30. Temporarily install the speedometer drive gear (5) to the inside of the rear cover (6). Pay close attention to the direction of installation.





31. Use a press and the installer (J-24259) to install the rear output shaft ball bearings (4). Do not drive the ball bearings into place with a hammer.
32. Install the rear output shaft retaining ring (3).
33. Place the oil pump (1) in it's specified position.
34. Secure the pump strainer to the rear cover (6) and tighten the bolts to the specified torque.

Rear cover and transfer case bolts
Torque 15 Nm (11 ft.lb.)






35. Apply Loctite FMD 127 to the mating surfaces of the rear cover and the transfer case. Be sure that the Loctite is evenly applied to the inside surfaces of the bolt holes with no gaps.
36. Install the rear cover to the transfer case and tighten the bolts to the specified torque.

Rear cover and transfer case bolts
Torque 22 Nm (16 ft.lb.)


37. Apply engine oil to the companion flange O-ring.
38. Install the O-ring to the front output shaft.





39. Secure the front companion flange with the companion flange holder (J-8614-11).
40. Install the end nuts and tighten them to the specified torque.

Front companion flange end nut
Torque 137 Nm (101 ft,lb.)






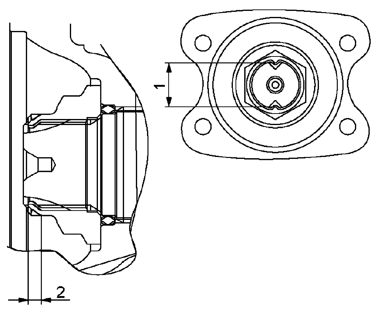
41. Use a cold chisel to stake the front companion flange end nuts.





(1) MAX 26 mm (1.02 in.)
(2) MIN 4 mm (0.16 in.)

42. Apply Loctite 575 to the threaded portion of the detent plugs.





43. Use the installer (J-46203) to install the main shaft end snap ring to the rear output shaft (from the back end of the shaft). Be absolutely sure that the snap ring is seated in the groove.





44. Use the installer (J-46202) to install the rear output oil seal to the rear case.

45. Install the detent balls, the detent springs, and the detent plugs (2 parts each) to the transfer case. Tighten the plugs to the specified torque.

Detent plugs
Torque 19 Nm (14 ft.lb.)


46. Install the neutral start switch (black harness cover) to the transfer case and tighten the bolts to the specified torque.

Neutral start switch bolts
Torque 39 Nm (29 ft.lb.)


47. Install the 2-4 switch (gray harness cover) to the transfer case an tighten the bolts to the specified torque.

2-4 switch bolts
Torque 39 Nm (29 ft.lb.)


48. Install the switch bracket to the transfer case and tighten the bolts to the specified torque.

Switch bracket bolts
Torque 15 Nm (11 ft.lb.)


49. Install the transfer actuator assembly to the transfer case and tighten the bolts to the specified torque. The actuator must be installed in the same direction as the shaft.

Transfer actuator assembly bolts
Torque 22 Nm (16 ft.lb.)


50. Install the breather hose between the transfer actuator and the transfer case.
51. Install the speedometer driven gear, the speedometer bush, and the speedometer stay to the transfer case. Tighten the bolts to the specified torque.

Speedometer bolts
Torque 15 Nm (11 ft.lb.)


52. Install the drain plug to the transfer case and tighten it to the specified torque.

Drain Plug
Torque 39 Nm (29 ft.lb.)


53. Loosen and remove the filler plug. Add the specified volume of transfer oil (5W-30) or the equivalent to the transfer through the filler hole.

Transfer Oil
Capacity 1.3L (1.37 qt)


54. Replace the filler plug and tighten it to the specified torque.

Filler plug
Torque 39 Nm (29 ft.lb.)


55. Install the underguard and tighten the bolts to the specified torque.

Underguard bolts
Torque 39 Nm (29 ft.lb.)






(1) Bolt
(2) Lock Plate
(3) Gear Bushing
(4) O-Ring