Curiosii for ever!: Car repair manuals for everyone.

"Check Trans" Check

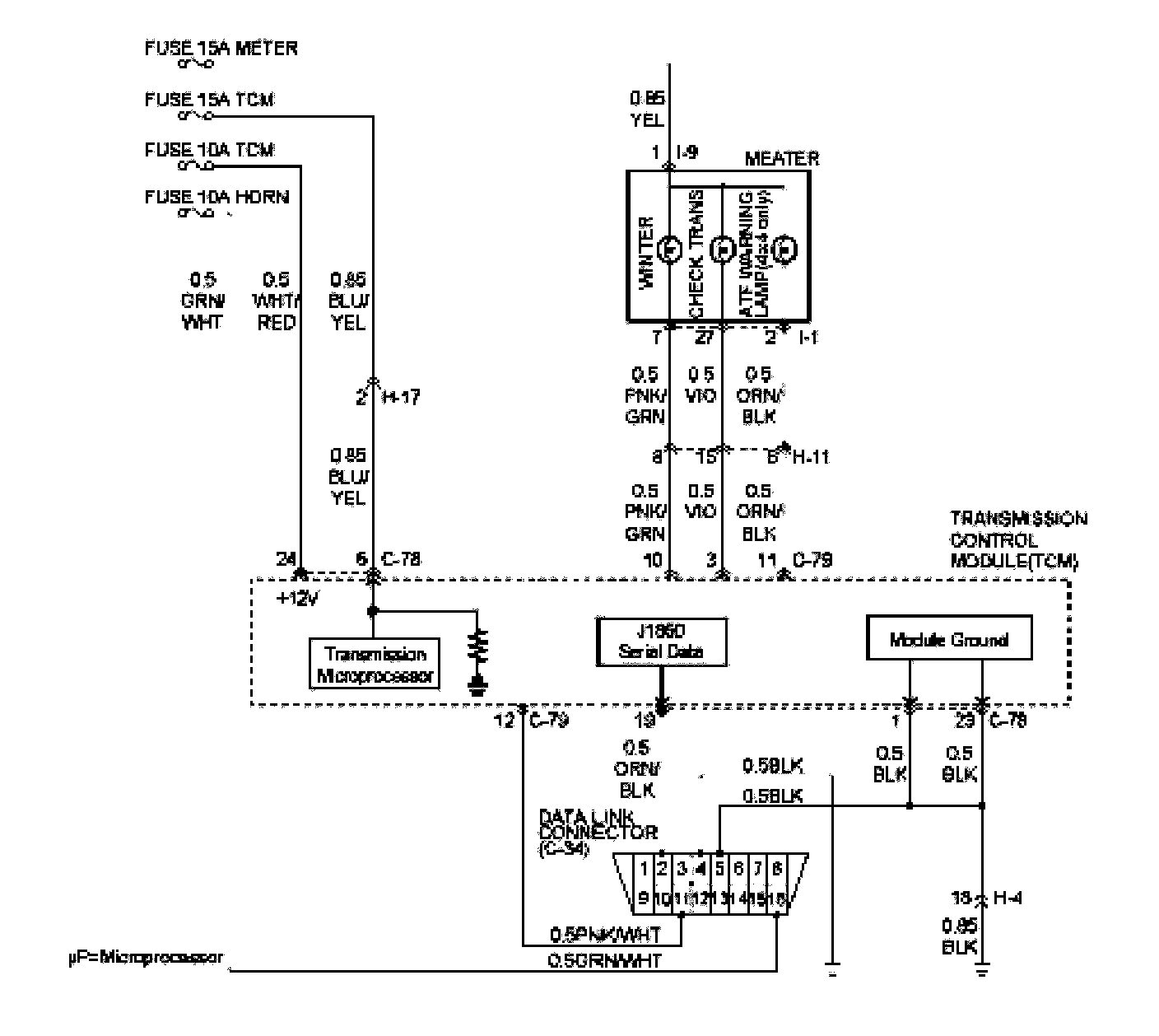
"Check Trans" Check








1. Indicator is ON during 3 seconds at ignition (or when the engine is cranked) but it is OFF after the engine starts. The indicator is working normally go to DIAGNOSTIC CHECK.





2. Indicator is flashing and the flash is 0.4 seconds ON and 0.4 seconds OFF always when ignition is on (engine cranked or not). This means that there is a malfunction. Go to DIAGNOSTIC CHECK.
3. Indicator is staying ON always when Ignition is ON.
1. This means that connection between the lamp and the indicator control unit is shorted to ground.
2. Verify if instrument panel terminal 27 of connector I-1 is shorted to ground.
3. Verify if the indicator control unit connector C-79 terminal 3 is shorted to ground.
4. Verify that the instrument panel terminal 9 of connector I-1 is connected to battery.
5. If problem solved: Go to CHECK TRAMS INDICATOR. Check Trans Indicator
NO: Replace Transmission Control Module (TCM).





4. Indicator is staying OFF with the ignition ON (engine OFF).
1. This means that connection between the lamp and the indicator control unit is shorted to battery or opened.
2. Verify if instrument panel terminal 27 of connector I-1 is shorted to battery or open.
3. Verify if the indicator control unit connector C-79 terminal 3 is shorted to battery or open.
4. Verify that the instrument panel terminal 14 of connector I-1 is connected to battery. If not, check the fuses and the connections (terminal 15 of connector H-11) voltage.
5. If problem solved: Go to CHECK TRANS INDICATOR.
NO: Replace Transmission Control Module (TCM).