Curiosii for ever!: Car repair manuals for everyone.

Transmission Control Systems: Description and Operation

General Description
The AW30-40LS is a fully electronic controlled 4-speed automatic transmission. It uses a microcomputer as a control unit to judge running conditions including throttle opening rate and vehicle speed, then it sets the shifting point in the optimum timing so that best driving performance can be achieved.

In addition, the built-in shift mode select function can select two shift modes according to the driver's preference:
^ Normal mode - Normal shift pattern.
^ Winter mode - Starts in 3rd gear to reduce slippage on ice or snow.

Also, the built-in fail-safe function ("backup mode") assures driving performance even if the vehicle speed sensor, throttle signal or any solenoid fails.

Further, the self-diagnostic function conducts diagnosis in a short time when the control system fails, thus improving serviceability.

The major features of AW30-40LS are as follows:
^ A compact structure consisting of 2 sets of planetary gears and flat torque converter.
^ Electronic control selects the optimum shift mode according to the driving conditions.
^ Electronic control maintains the optimum hydraulic pressure for clutch,so that band brake shift feeling is improved.
^ Two sets of planetary gears reduce friction of Powertrain.
Also, a lockup mechanism in the torque converter reduces fuel consumption.
^ Wide gear ratio and high torque rate of torque converter provide excellent starting performance.

NOTE: When the TCM is repaired, DTC P1601 (ECM code) is stored at 2 times ignition "ON" at the state which disconnected a TCM connector. (Turn on the Check Engine Lamp).
Therefore, DTC P1601 (ECM code) is set at above condition when the TCM repaired. Clear the DTC after verify repair.





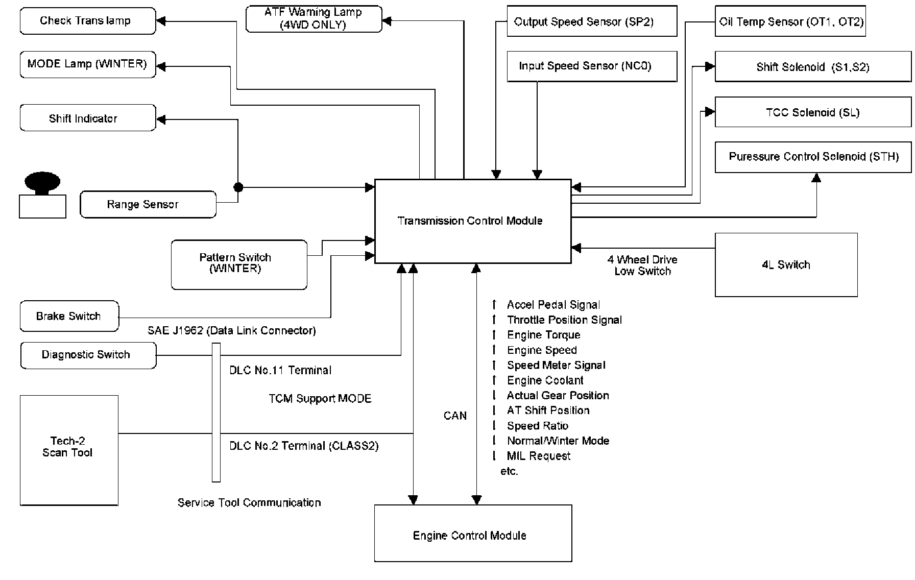
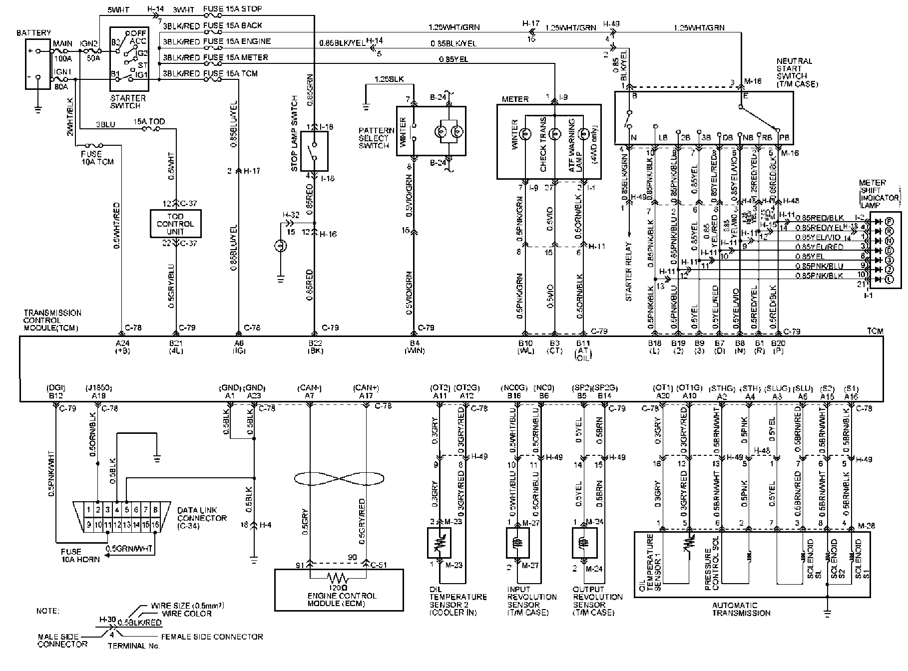
Electronic Control Diagram





Transmission Control Module (TCM)

Part 1:




Part 2:





TCM Point Table





Control System Diagram





Control and Functions





Gear Shift Control





Mode Type

Mode Selection





The mode returns normal drive mode when the winter switch is operated from ON to OFF.

Comparison of Mode
1. The normal drive mode is set at the normal shift points.
2. The winter drive mode is a special mode used exclusively for starting in third gear.

Winter Drive Mode
1. The winter switch will operate when switched on after all of the following conditions are present:
a. The gear select position is "P", "R", "N" and "D" range only.
b. Vehicle speed is 7 mph (11 km/h) or less.
c. Transmission oil temperature is 120°C (248°F) or less.
d. Accelerator opening is 8% or less.
2. Cancel Release
1. Cancellation by driver
a. Turning off the winter drive mode switch
b. Shifting select position to "3", "2", or "L" (Winter drive mode is not canceled by selecting "N", "R", or "P")
c. Ignition key is turned off.
2. Automatic cancellation
a. When vehicle runs at 22 mph (35 km/h) or more for 1 second or more
3. When transmission oil temperature reaches 140°C (284°F) or above

NOTE: The mode returns to normal drive mode after the winter drive mode is canceled.

Backup Mode
If a major system failure occurs which could affect safety or damage the transmission under normal vehicle operation, the diagnostic system detects the fault and overrides the Transmission Control Module (TCM).








The "CHECK TRAMS" light flashes to alert the driver, and the transmission can be manually shifted as follows:

Shifts become firmer to prevent clutch slip and consequent wear. The fault should be corrected as soon as possible.





Functions of Input / Output Components

CAN bus systems in automatic transmission control (AW30-40LS)
The automatic transmission control system in AW30-40LS uses high speed CAN bus system. The individual CAN bus systems are connected via two interfaces and can exchange information and data. This allows control modules that are connected to different CAN bus systems to communicate.

High Speed CAN Bus





Transmission control modules in the vehicle that require continuous, rapid communication are connected to the high speed CAN bus. For example, the automatic transmission is continuously notified of the current engine load status. Since the automatic transmission control module has to react immediately to load status changes, rapid communication is required between the engine control module and the automatic transmission control module. The high speed CAN bus in the AW30-40LS is designed as a two-wire CAN bus (twisted pair). The wires are shielded and twisted. The transfer rate is 500 K baud.