Curiosii for ever!: Car repair manuals for everyone.

CONSULT-II Checking System

CONSULT-II CHECKING SYSTEM

Description
- CONSULT-II is a hand-held type tester. When it is connected with a diagnostic connector equipped on the vehicle side it will communicate with the control unit equipped in the vehicle and then enable various kinds of diagnostic tests.
- Refer to "CONSULT-II Software Operation Manual" for more information.




Function and System Application

Nickel Metal Hydride Battery Replacement
CONSULT-II contains a nickel metal hydride battery. When replacing the battery obey the following:

WARNING:
Replace the nickel metal hydride battery with Genuine CONSULT-II battery only. Use of another battery may present a risk of fire or explosion. The battery may present a fire or chemical burn hazard if mistreated. Do not recharge, disassemble or dispose of in fire.

Keep the battery out of reach of children and discard used battery conforming to the local regulations.





Checking Equipment

NOTE:
- The CONSULT-II must be used in conjunction with a program card. CONSULT-II does not require loading (Initialization) procedure.
- Be sure the CONSULT-II is turned off before installing or removing a program card.

CAUTION: Previous CONSULT-II "I" and "Y" DLC-I and DLC-II cables should NOT be used anymore because their
DDL connector pins can be damaged during cable swapping.

CONSULT-II Start Procedure
1. Turn off the ignition switch.




2. Connect CONSULT-II and CONSULT-II CONVERTER to the data link connector.
3. Turn on the ignition switch.




4. Touch "START (NISSAN BASED VHCL)" or System shortcut (eg: ENGINE) on the screen.




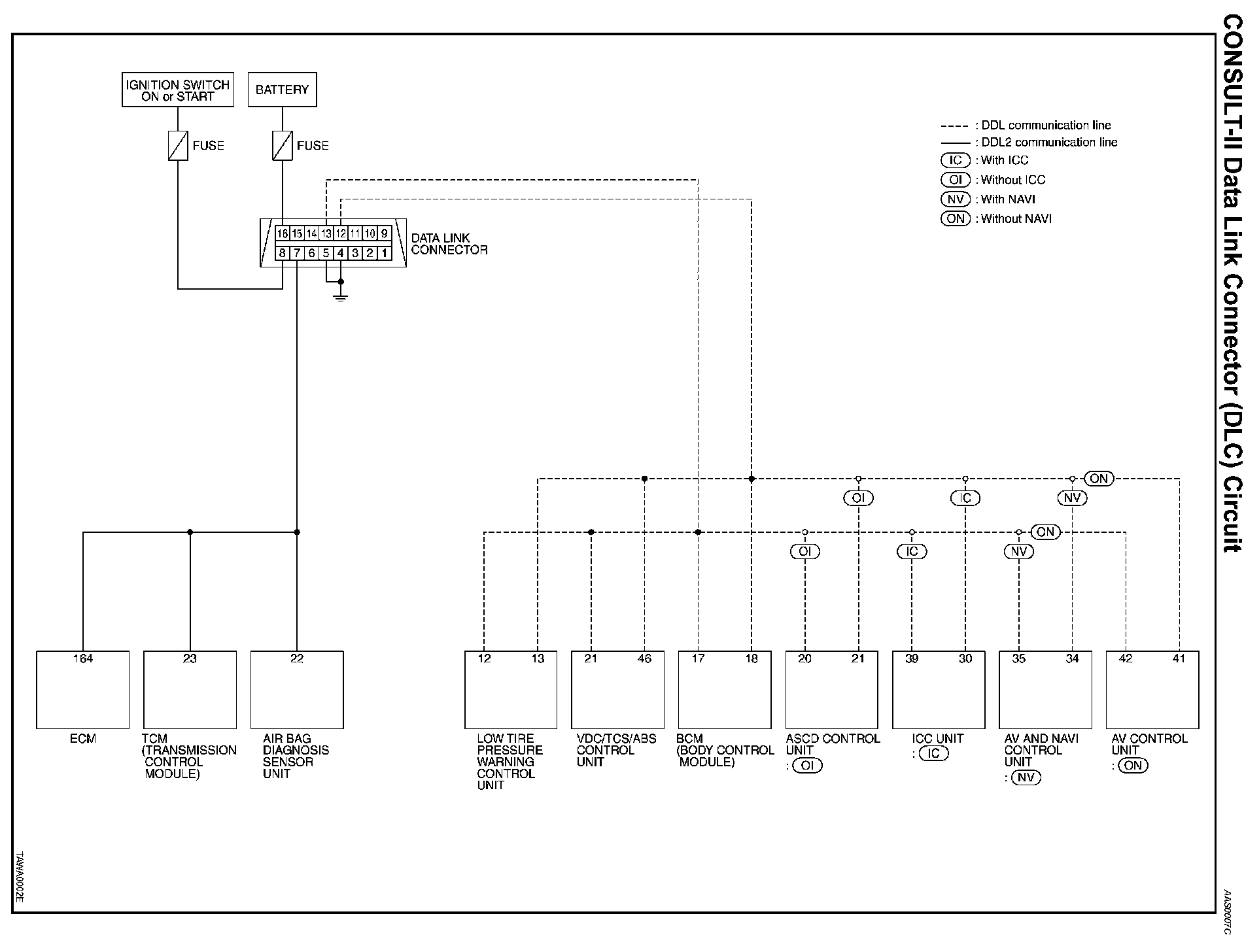
CONSULT-II Data Link Connector (DLC) Circuit




INSPECTION PROCEDURE

NOTE: The DDL1 and DDL2 circuits from DLC pins 12, 13, 14 and 15 may be connected to more than one system. A short in a DDL circuit connected to a control unit in one system may affect CONSULT-II access to other systems.