Curiosii for ever!
: Car repair manuals for everyone.
Home
>>
Honda
>>
2006
>>
Civic L4-1.8L
>>
Repair and Diagnosis
>>
Diagrams
>>
Electrical Diagrams
>>
Transmission Control Systems
>>
Circuit Diagrams
Circuit Diagrams
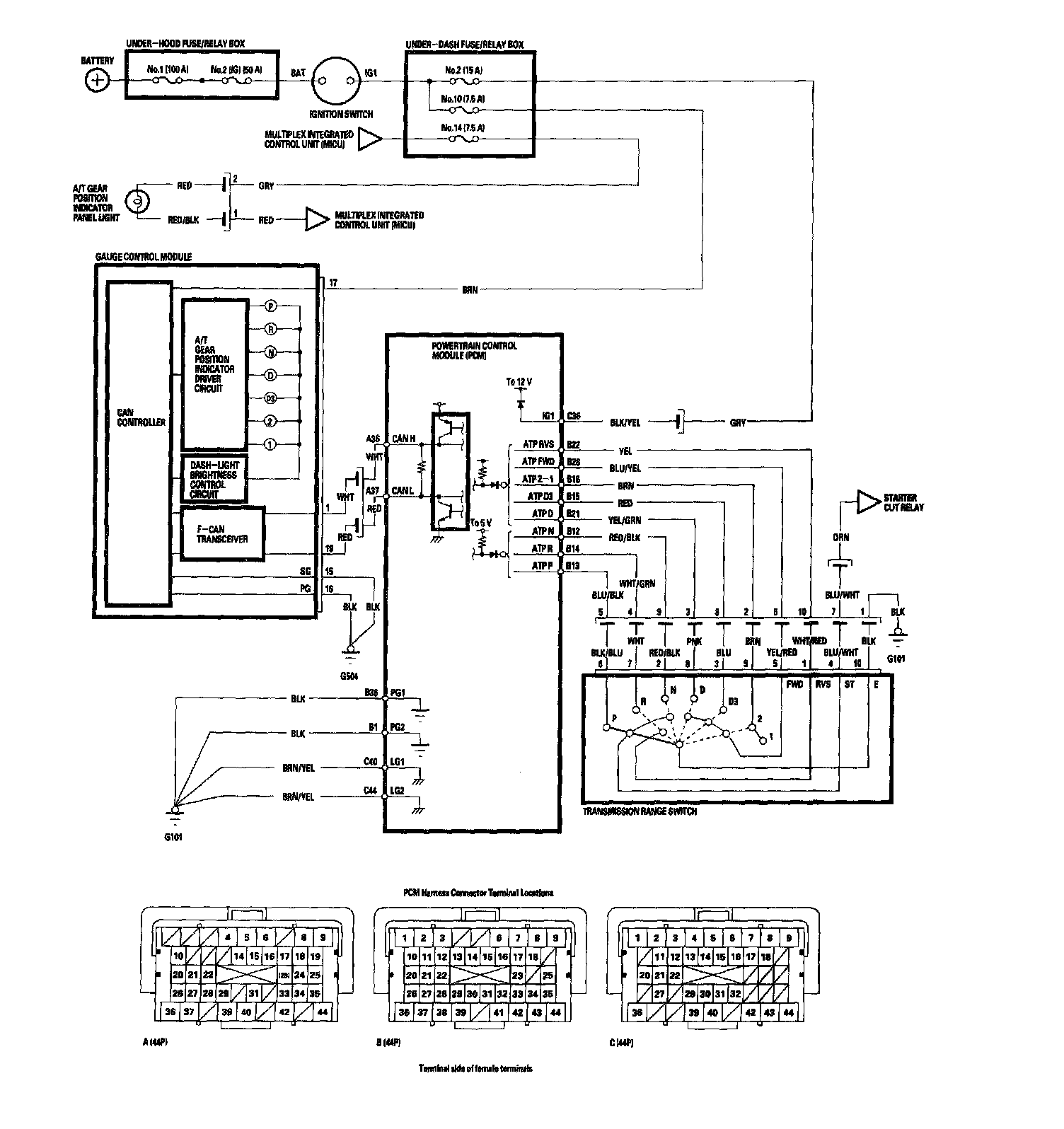
PCM A/T Control System Circuit Diagram (part 1):
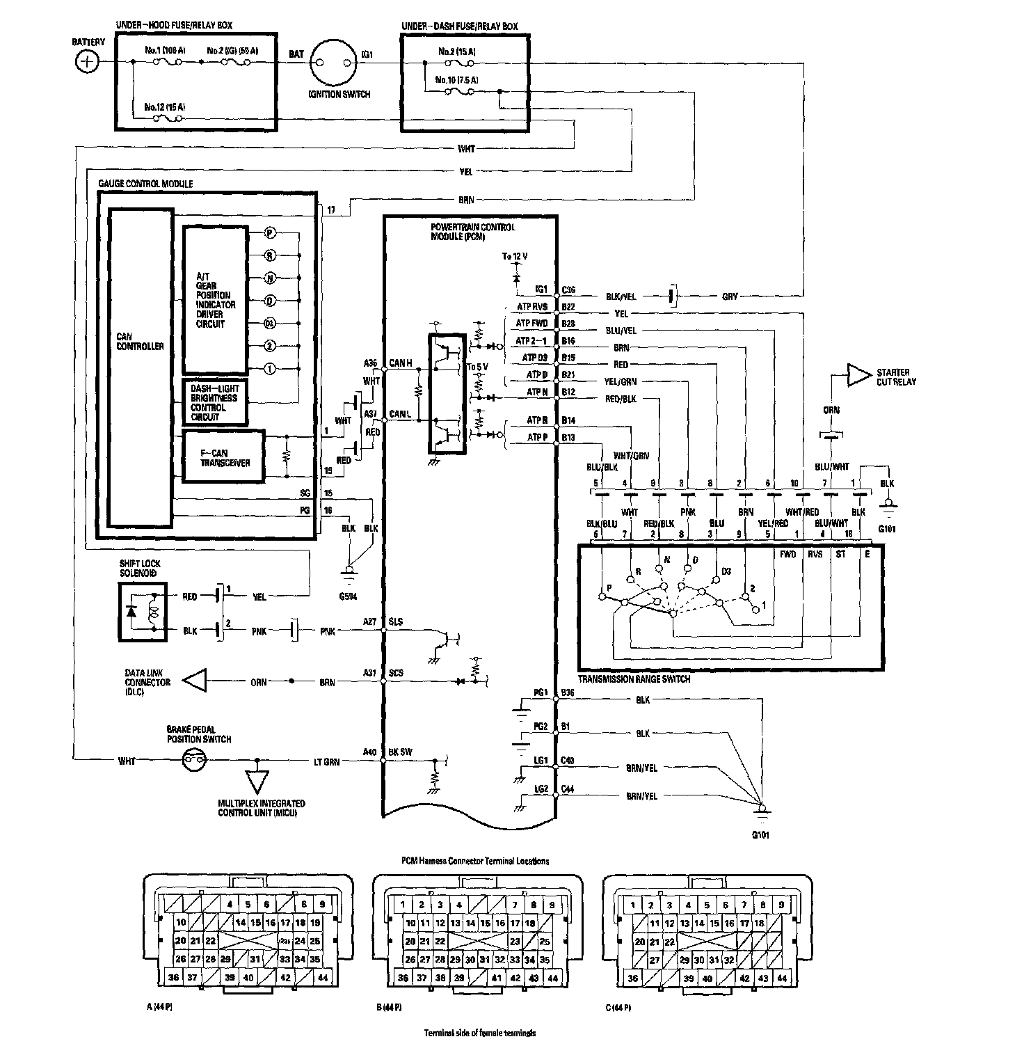
PCM A/T Control System Circuit Diagram (part 2):
A/T Gear Position Indicator Circuit Diagram: