Curiosii for ever!
: Car repair manuals for everyone.
Home
>>
Honda
>>
2005
>>
Civic L4-1.7L SOHC
>>
Repair and Diagnosis
>>
Body and Frame
>>
Frame
>>
Service and Repair
>>
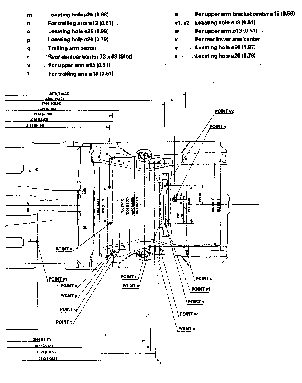
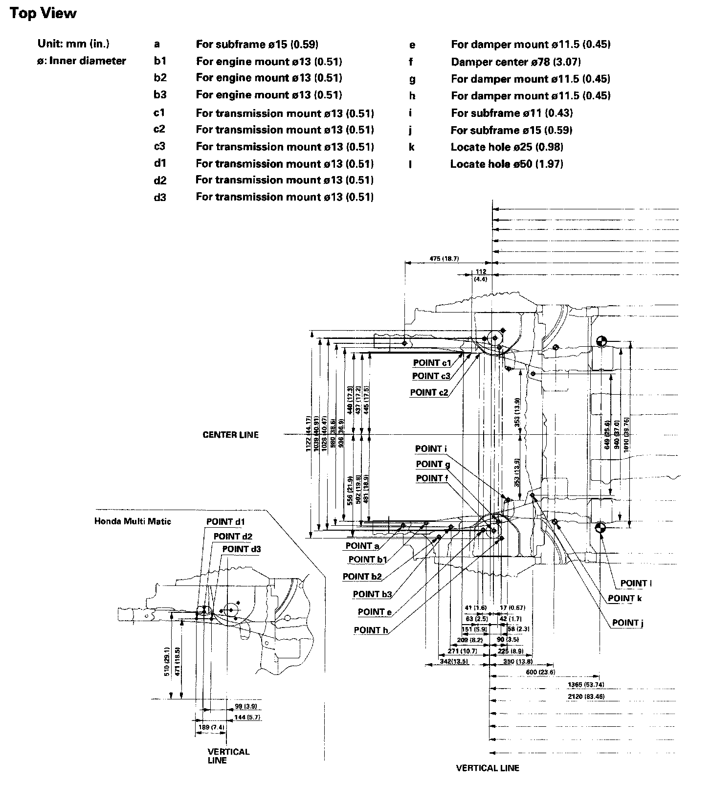
Frame Repair Chart
Frame Repair Chart