Curiosii for ever!
: Car repair manuals for everyone.
Home
>>
Honda
>>
2000
>>
S2000 L4-1997cc 2.0L DOHC (VTEC) MFI
>>
Repair and Diagnosis
>>
Body and Frame
>>
Frame
>>
Specifications
Frame: Specifications
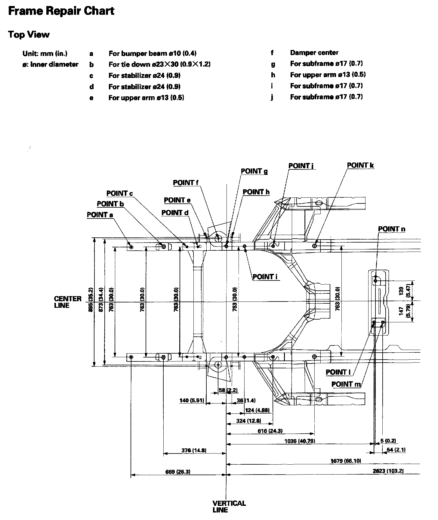
Frame Repair Chart, Top View Part 1:
Frame Repair Chart, Top View Part 2:
Frame Repair Chart, Side View Part 1:
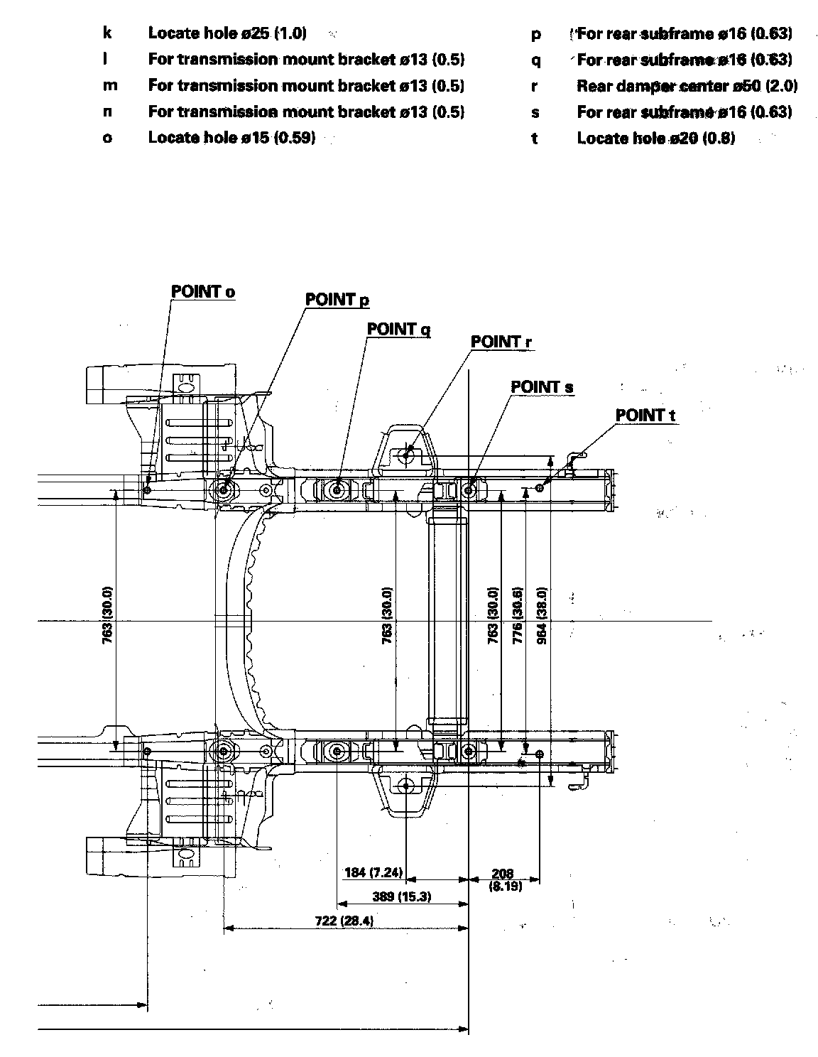
Frame Repair Chart, Side View Part 2: