Curiosii for ever!: Car repair manuals for everyone.

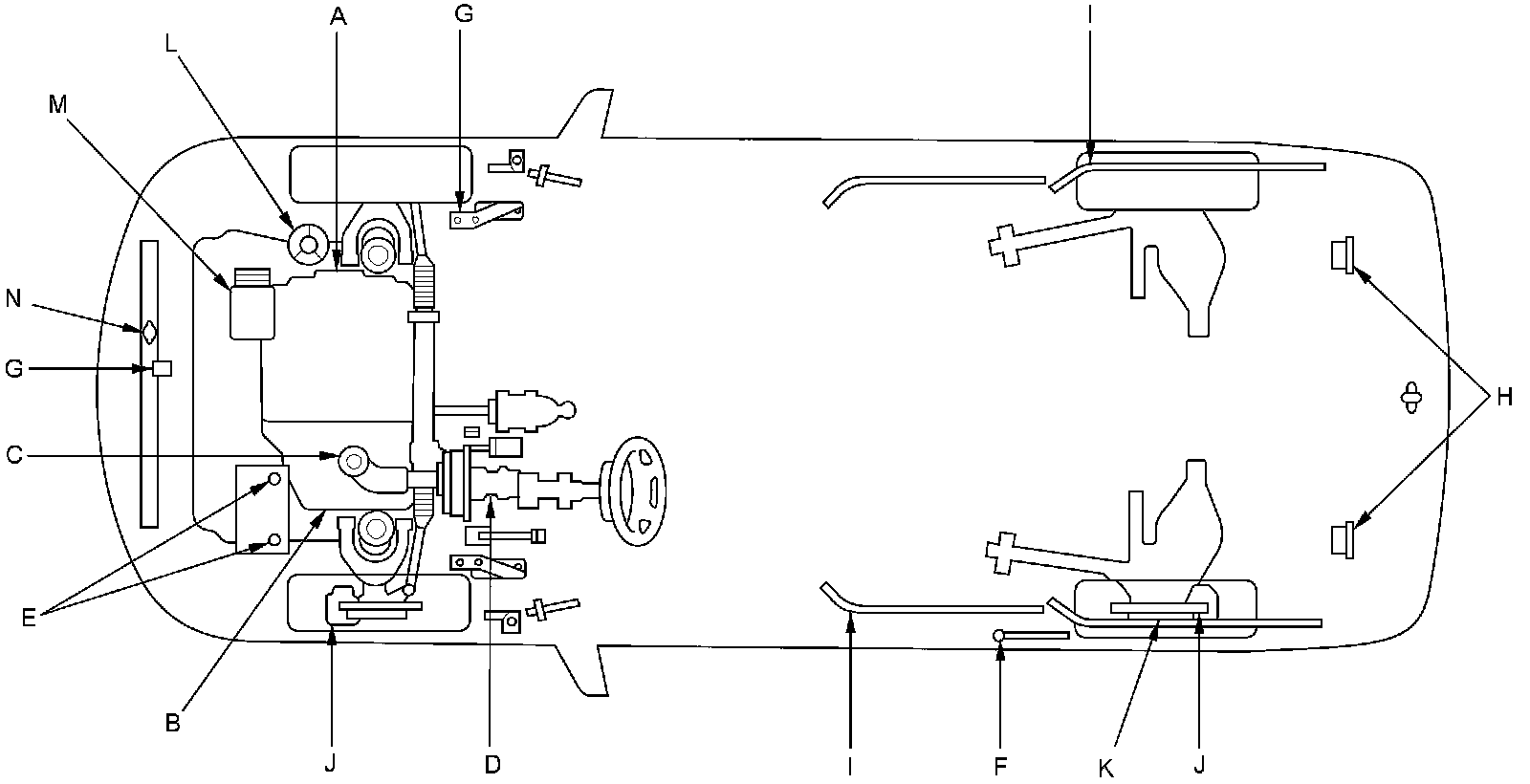
Fluids




Lubricants and Fluids

For details of the lubrication points and the type of lubricants to be applied, refer to the illustrated index and the various work procedures (such as Assembly/Reassembly, Replacement, Overhaul, Installation, etc.) contained in each section.