Curiosii for ever!
: Car repair manuals for everyone.
Home
>>
Honda Truck
>>
2008
>>
Ridgeline V6-3.5L
>>
Repair and Diagnosis
>>
Body and Frame
>>
Frame
>>
Specifications
Frame: Specifications
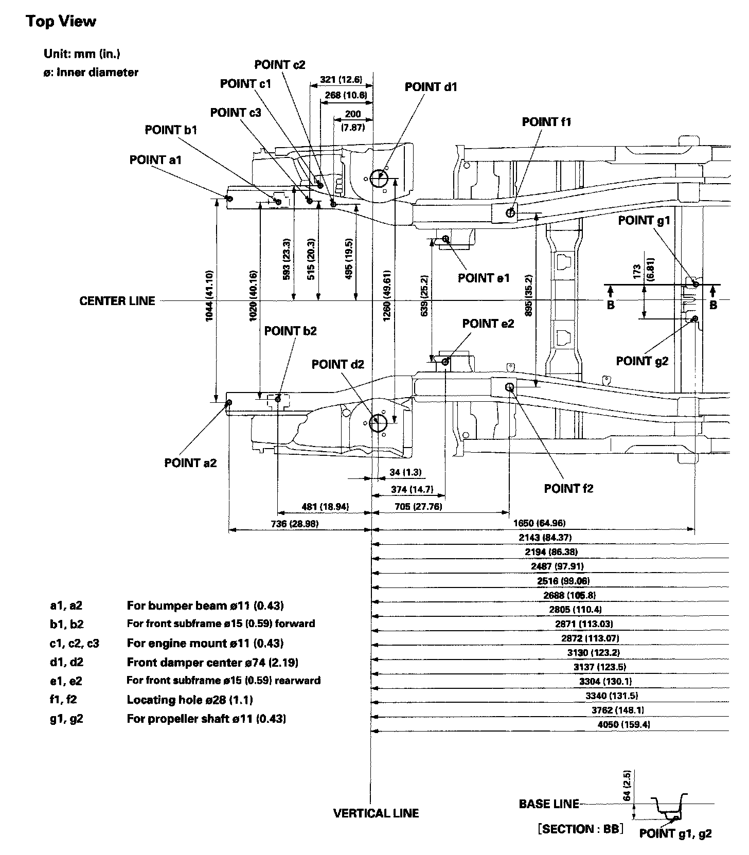
Frame Repair Chart (Part 1):
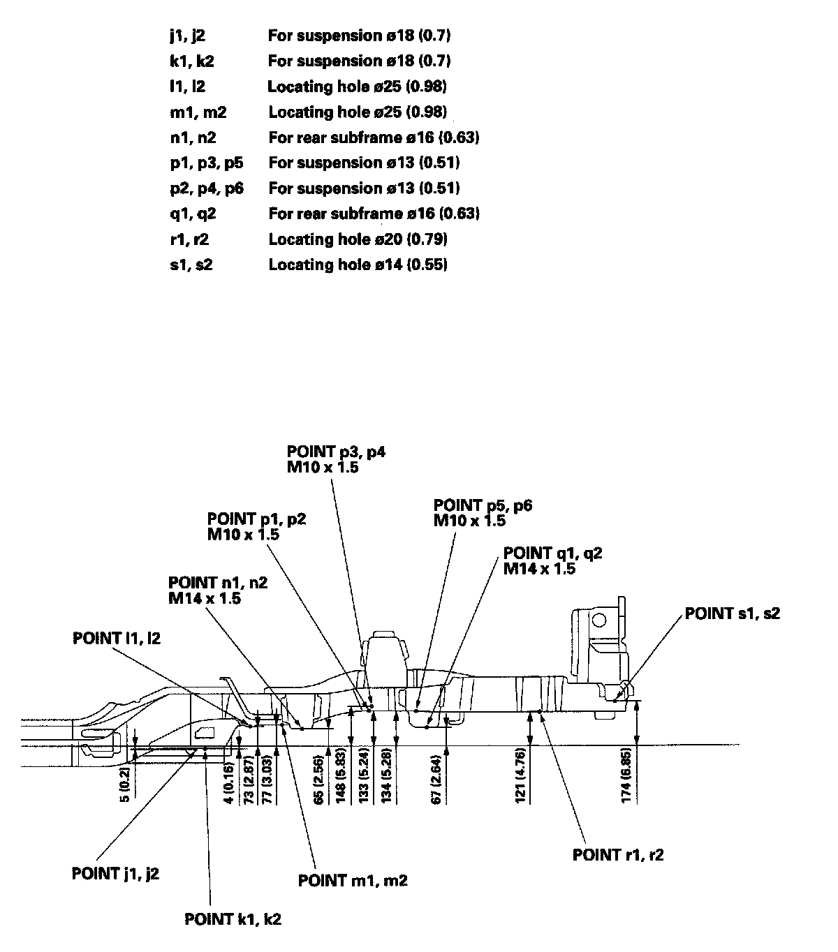
Frame Repair Chart (Part 2):
Frame Repair Chart (Part 3):
Frame Repair Chart (Part 4):