Curiosii for ever!
: Car repair manuals for everyone.
Home
>>
Honda Truck
>>
2000
>>
Odyssey EX V6-3.5L
>>
Repair and Diagnosis
>>
Body and Frame
>>
Frame
>>
Specifications
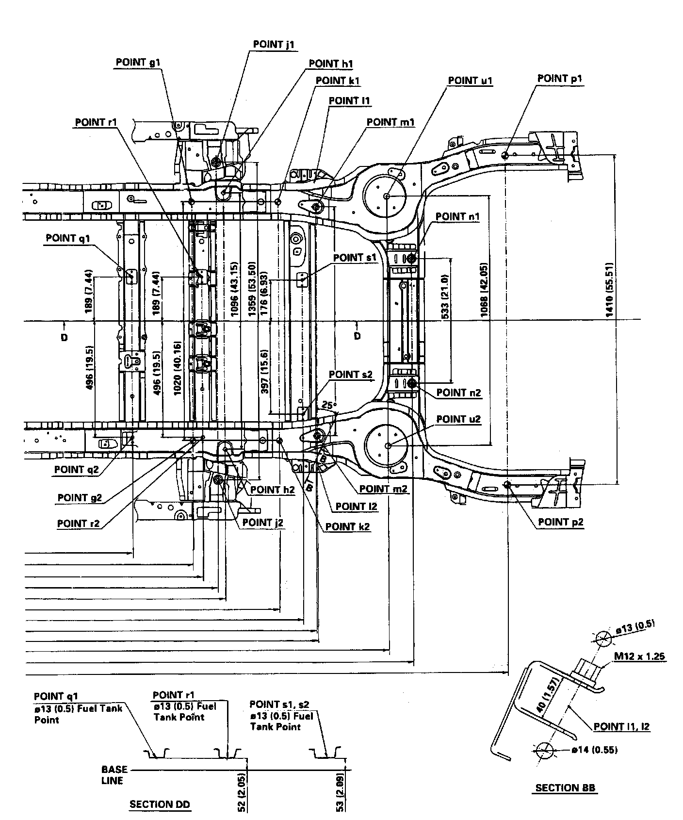
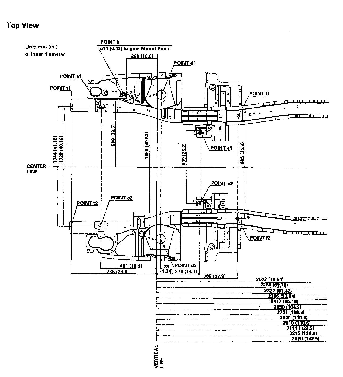
Frame: Specifications
Frame Repair Chart Part 1:
Frame Repair Chart Part 2:
Frame Repair Chart Part 3:
Frame Repair Chart Part 4: