Curiosii for ever!: Car repair manuals for everyone.

Electronic/Powertrain Control Module (ECM/PCM)

ECM Wiring Diagram (1 of 3):







BATT = BATTERY VOLTAGE SUPPLY
+B = EFI MAIN RELAY
B1 = EFI MAIN RELAY
W = WARNING LIGHT
VF = CHECK CONNECTOR
T = CHECK CONNECTOR
E21 = SENSOR GROUND
E2 = SENSOR GROUND
IDL = THROTTLE SWITCH (IDLE)
PSW = THROTTLE SWITCH (WOT)
THA = MAT SENSOR
THW = COOLANT TEMPERATURE SIGNAL
PIM = MAP SIGNAL
VCC = MAP 5 VOLT REFERENCE



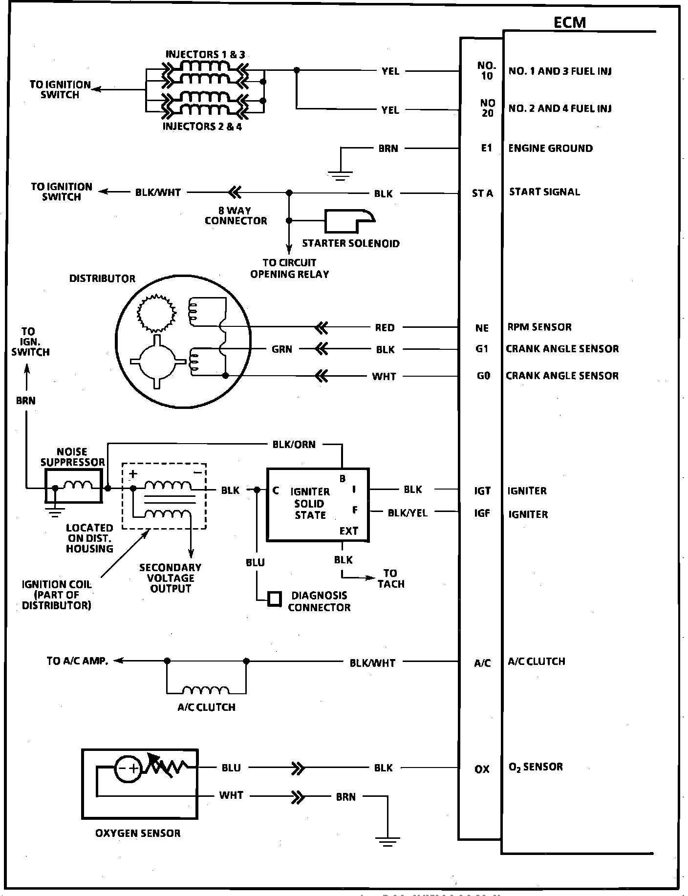
ECM Wiring Diagram (2 of 3):







10 = NUMBER 1 AND 3 FUEL INJECTOR
20 = NUMBER 2 AND 4 FUEL INJECTOR
E1 = ENGINE GROUND
STA = START SIGNAL
NE = RPM SENSOR
G1 = CRANK ANGLE SENSOR
G0 = CRANK ANGLE SENSOR
IGT = IGNITER
IGF = IGNITER
A/C = A/C CLUTCH
OX = OXYGEN SENSOR