Curiosii for ever!: Car repair manuals for everyone.

Receiver Dryer: Service and Repair




Receiver Drier













Removal and Installation

NOTE: Installation of a new receiver/drier is not required when repairing the A/C system, except when there is physical evidence of contamination from a failed A/C compressor or damage to the receiver/drier. Damage to the receiver/drier includes leaks in the receiver/drier, physical damage to the receiver/drier shell or desiccant, or moisture contamination. Moisture contamination results only from a complete loss of refrigerant and equalization of the refrigerant system pressure with atmospheric pressure for a period longer than one hour. If even a slight amount of positive refrigerant pressure is present in the system before repairs are carried out, the receiver/drier should not be replaced.

1. With the vehicle in NEUTRAL, position it on a hoist. For additional information, refer to Vehicle Jacking and Lifting.

2. Recover the refrigerant.

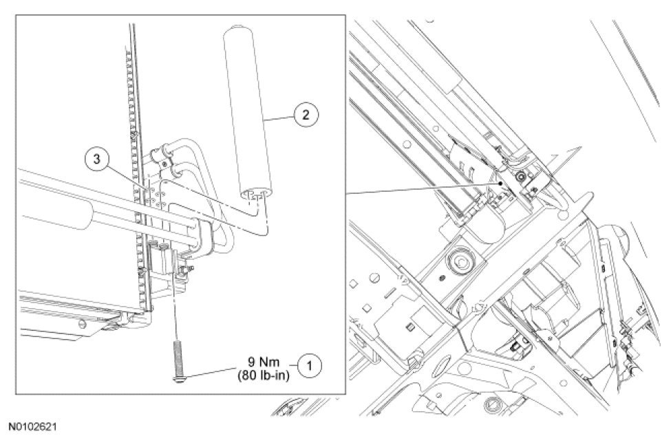
3. Remove the lower radiator air deflector.

4. Remove the receiver/drier bolt.
- To install, tighten to 9 Nm (80 lb-in).

5. Remove the receiver/drier.
- Discard the receiver/drier fitting O-ring seals.

6. To install, reverse the removal procedure.
- Install new O-ring seals.

- Add the correct amount of clean PAG oil to the refrigerant system. For additional information, refer to the Refrigerant Oil Adding procedure.

7. Evacuate, leak test and charge the refrigerant system.