Curiosii for ever!
: Car repair manuals for everyone.
Home
>>
Ford Truck
>>
2012
>>
Explorer AWD V6-3.5L
>>
Repair and Diagnosis
>>
Power and Ground Distribution
>>
Fuse
>>
Locations
>>
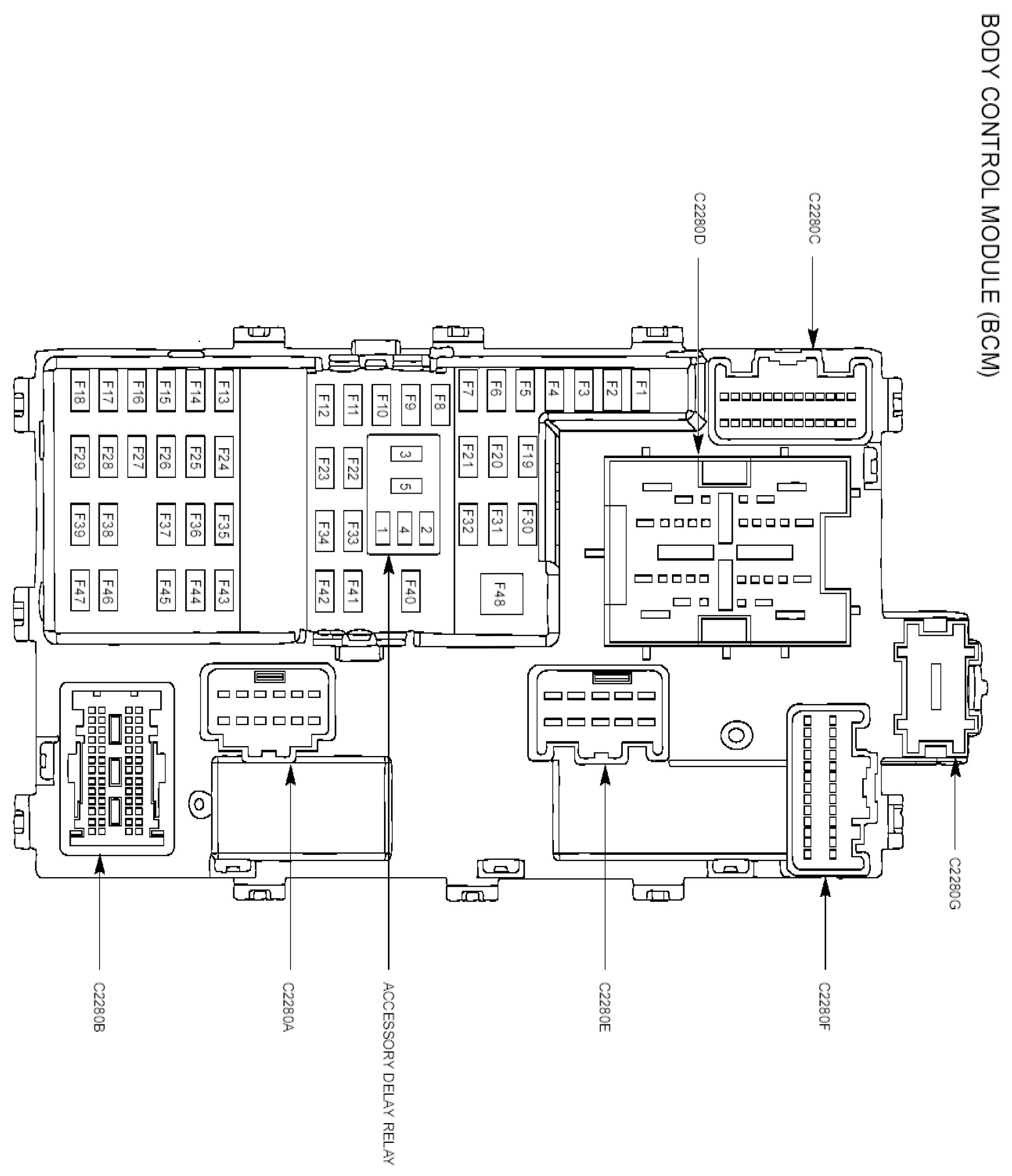
Body Control Module
Body Control Module