Curiosii for ever!: Car repair manuals for everyone.

Transmission Position Sensor/Switch: Service and Repair




6F50

Digital Transmission Range (TR) Sensor









Removal

NOTICE: The use of any transmission fluid other than what is recommended for this transaxle will cause transaxle damage. Refer to the Material specification and/or the transmission fluid level indicator for the correct fluid. Use only clean transmission fluid designated for this transaxle and torque converter being serviced.

NOTICE: Do not mix Mercon(R) V or Mercon(R) LV transmission fluid. This may cause erratic shift feel, erratic shift timing and/or transmission failure.

NOTE: Transmission fluid application:
- Early build vehicles require MERCON(R) V
- Late build vehicles require MERCON(R) LV

1. With the vehicle in NEUTRAL, position it on a hoist.

2. Disconnect the Mass Air Flow (MAF) sensor electrical connector.





3. Disconnect the engine breather from the Air Cleaner (ACL) assembly.





4. Remove the 2 ACL assembly bracket bolts.





5. Loosen the ACL outlet pipe clamp at the Throttle Body (TB) and remove the ACL and ACL outlet pipe assembly.





6. Remove the transmission fluid drain plug and allow the transmission fluid to drain.





7. Install the transmission fluid drain plug.
- Tighten to 9 Nm (80 lb-in).





8. Disconnect the selector lever cable end from the manual control lever.





9. Position aside the coolant hoses from the transmission fluid filler tube.





10. NOTE: Coolant hoses removed for clarity.

Remove the transmission fluid level indicator.





11. NOTE: Coolant hoses removed for clarity.

Remove the nut, rotate the transmission fluid filler tube counterclockwise 90 degrees and remove the transmission fluid filler tube.





12. Remove the nut and the manual control lever.





13. Loosen the transmission fluid cooler tube fitting from the thermal bypass valve.





14. Remove and discard the transmission fluid cooler tube bolt and remove the transmission fluid cooler tube.





15. Inspect the transaxle case to make sure that the transmission fluid cooler tube seal and backing ring were removed with the transmission fluid cooler tube and are not stuck in the transaxle case. If the transmission fluid cooler tube seal or backing ring are stuck in the transaxle case, remove the seal and backing ring.





16. Disconnect the transaxle electrical connector and remove the wiring harness fastener from the main control cover stud.





17. Remove the 2 nuts, pull the transmission fluid cooler thermal bypass valve straight up and position it aside.





18. NOTE: Note the location of the studbolts for assembly.

Remove the 14 bolts and the main control cover.





19. Disconnect the Transmission Range (TR) sensor electrical connector.

1. Slide the lock over.

2. Press the tab and disconnect the connector.





20. Disconnect the Turbine Shaft Speed (TSS) and Output Shaft Speed (OSS) sensor electrical connectors.





21. NOTE: Note the location of the different length bolts for assembly.

Remove the 11 bolts and the solenoid body.





22. NOTICE: Do not handle the solenoid body in the leadframe area or by the screens of the solenoid body filter or damage to the solenoid body may occur.

NOTICE: Use care not to break the alignment tabs when removing the solenoid body filter.

Remove the solenoid body filter assembly by pulling it straight up from the alignment tabs. Discard the filter.





23. Remove the 10 bolts, the TR sensor detent spring and the main control valve body.





24. Using a suitable tool, remove and discard the TR sensor locking pin.





25. NOTE: TR sensor removed for clarity.

Make sure that the park pawl actuator rod does not become disengaged from the park pawl and the abutment by keeping the end of the park pawl actuator rod behind the machined valve body mating surface of the transaxle case. If the park pawl actuator rod becomes disengaged from the park pawl and the abutment, transaxle removal and disassembly is required to reinstall the actuator rod.





26. NOTICE: Make sure that the park pawl actuator rod does not become disengaged from the park pawl and the abutment, or transaxle removal and disassembly is required to reinstall the actuator rod.

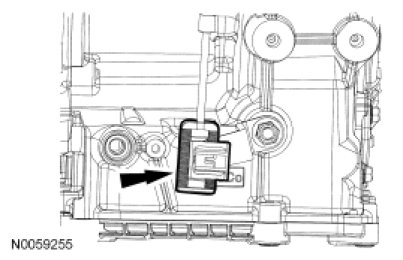
Remove the TR sensor.

1. Slide the TR sensor down until the manual shaft is out of the transaxle case.

2. Rotate the TR sensor detent plate counterclockwise, as viewed from below, until the plate rests against the transaxle case, remove the park pawl actuating rod from the TR sensor and remove the TR sensor.





Installation

1. Install the TR sensor.

1. Position the park pawl actuating rod in the TR sensor.

2. Install the TR sensor in the transaxle case.





2. Using the Manual Lever Retaining Pin Installer, install a new TR sensor locking pin.





3. NOTE: If cleaning the main control assembly or inspecting the valves, refer to Identification Tags. Application and ID If installing a new main control assembly, continue with this procedure.

NOTE: Make sure that the manual pin (part of the TR sensor) is correctly installed in the manual valve.

Position the TSS, OSS and TR sensor wiring harnesses aside and install the main control valve body.





4. Inspect the manual pin to make sure it is correctly installed in the manual valve. If it is not, pull the valve body off the transaxle case. Correctly install the manual pin in the manual valve and position the valve body in place.





5. Install the TR sensor detent spring and the 10 bolts. Tighten the bolts in the sequence shown.
- Tighten to 12 Nm (106 lb-in).





6. NOTICE: Do not handle the solenoid body in the leadframe area or by the screens of the solenoid body filter or damage to the solenoid body may occur.

NOTICE: Use care not to break the alignment tabs when installing the solenoid body filter. Damage to the transaxle will occur if the solenoid body is not correctly aligned.

NOTICE: Make sure that the filter passage areas are clean of foreign material before installing the filter. Damage to the transaxle will occur if the filter passages are not clean.

Install a new solenoid body filter assembly by pushing it straight down on to the alignment tabs.





7. NOTICE: Make sure not to pinch the Turbine Shaft Speed (TSS), Output Shaft Speed (OSS) or Transmission Range (TR) sensor wiring harnesses when installing the solenoid body. Damage to the wiring harness will occur.

NOTE: Install the different length bolts in the locations noted during disassembly.

Install the solenoid body and the 11 bolts.

1. 42 mm (1.65 in) bolt

2. 63 mm (2.48 in) bolts

3. 80 mm (3.14 in) bolts

4. 95 mm (3.74 in) bolts





8. Tighten the solenoid body bolts in the sequence shown.
- Tighten to 12 Nm (106 lb-in).





9. Route the OSS sensor wiring harness and connect the electrical connector.





10. Connect the TR sensor electrical connector.

1. Connect the electrical connector.

2. Slide the locking tab over.





11. Connect the TSS sensor electrical connector.





12. Inspect the transaxle side cover seal for damage and install new if necessary.





13. NOTICE: Inspect the 20-pin solenoid body connector seal to make sure that the seal is on the inside of the main control cover or a transmission fluid leak will occur.

NOTE: Install the studbolts in the locations noted during disassembly.

Install the main control cover and loosely install the 14 bolts.

1. Bolt location

2. Studbolt location





14. Tighten the main control cover bolts in the sequence shown.
- Tighten to 12 Nm (106 lb-in).





15. Position the transmission fluid cooler thermal bypass valve and transmission fluid cooler tube assembly in place and install the 2 nuts.
- Tighten to 9 Nm (80 lb-in).





16. Connect the transaxle electrical connector and install the wiring harness fastener on the main control cover stud.





17. Inspect the transmission fluid cooler tube backing ring and seal for damage and install a new backing ring or seal if necessary. Lubricate the transmission fluid cooler tube seal with clean transmission fluid and install the backing ring and seal on the transmission fluid cooler tube.









18. Position the transmission fluid cooler tube in place and install a new bolt.
- Tighten to 9 Nm (80 lb-in).





19. Tighten the transmission fluid cooler tube fitting.
- Tighten to 25 Nm (18 lb-ft).





20. NOTICE: Make sure that when installing the manual control lever it is fully seated onto the manual control lever shaft or damage to the manual control lever shaft will occur and the lever will come loose.

NOTICE: Make sure to hold the manual control lever while tightening the manual control lever nut or damage to the manual control lever and park components will occur.

Install the manual control lever and the nut.

- Tighten to 18 Nm (159 lb-in).





21. NOTE: Coolant hoses removed for clarity.

Install the transmission fluid filler tube and the nut.

- Tighten to 11 Nm (97 lb-in).





22. NOTE: Coolant hoses removed for clarity.

Install the transmission fluid level indicator.





23. Route the coolant hoses to their position on the transmission fluid filler tube.





24. Place the manual control lever in DRIVE.

1. Rotate the manual control lever clockwise until it stops.

2. Rotate the manual control lever counterclockwise one detent until it stops.





25. Unlock the selector lever cable adjuster by sliding the locking tab over.





26. Slide the cable end forward or backward to align it with the manual control lever.





27. With the adjuster locking tab released, connect the selector lever cable end to the manual control lever.





28. Slide the release tab back to lock the adjuster.





29. Position the ACL assembly in place and install the 2 ACL assembly bracket bolts.
- Tighten to 11 Nm (97 lb-in).





30. Tighten the ACL outlet pipe clamp at the TB.
- Tighten to 5 Nm (44 lb-in).





31. Connect the engine breather to the ACL assembly.





32. Connect the MAF sensor electrical connector.





33. Fill with clean transmission fluid to the correct level.