Curiosii for ever!
: Car repair manuals for everyone.
Home
>>
Ford Truck
>>
2002
>>
Excursion 2WD V10-6.8L
>>
Repair and Diagnosis
>>
Diagrams
>>
Electrical Diagrams
>>
Keyless Entry
Keyless Entry
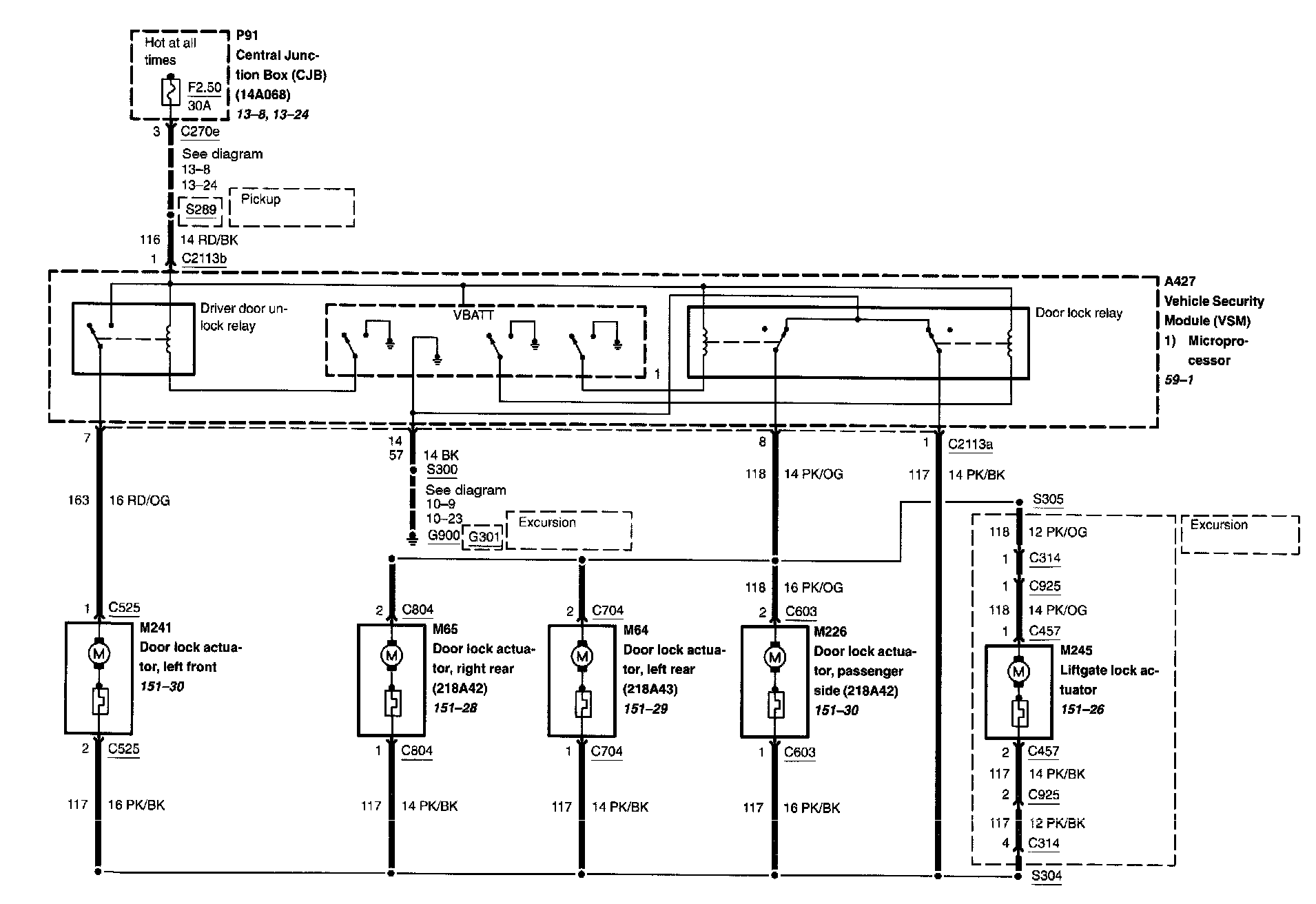
Diagram 117-1:
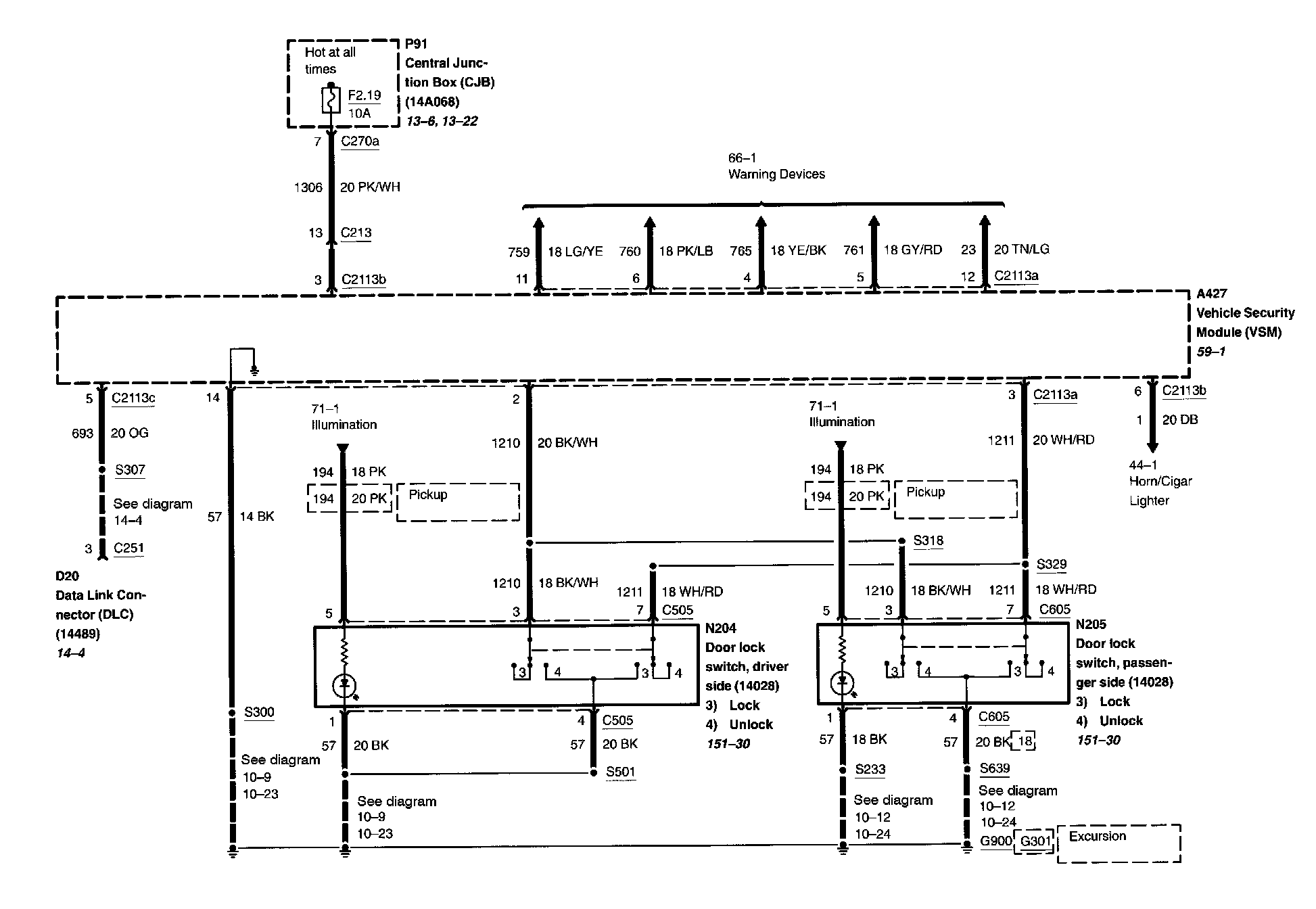
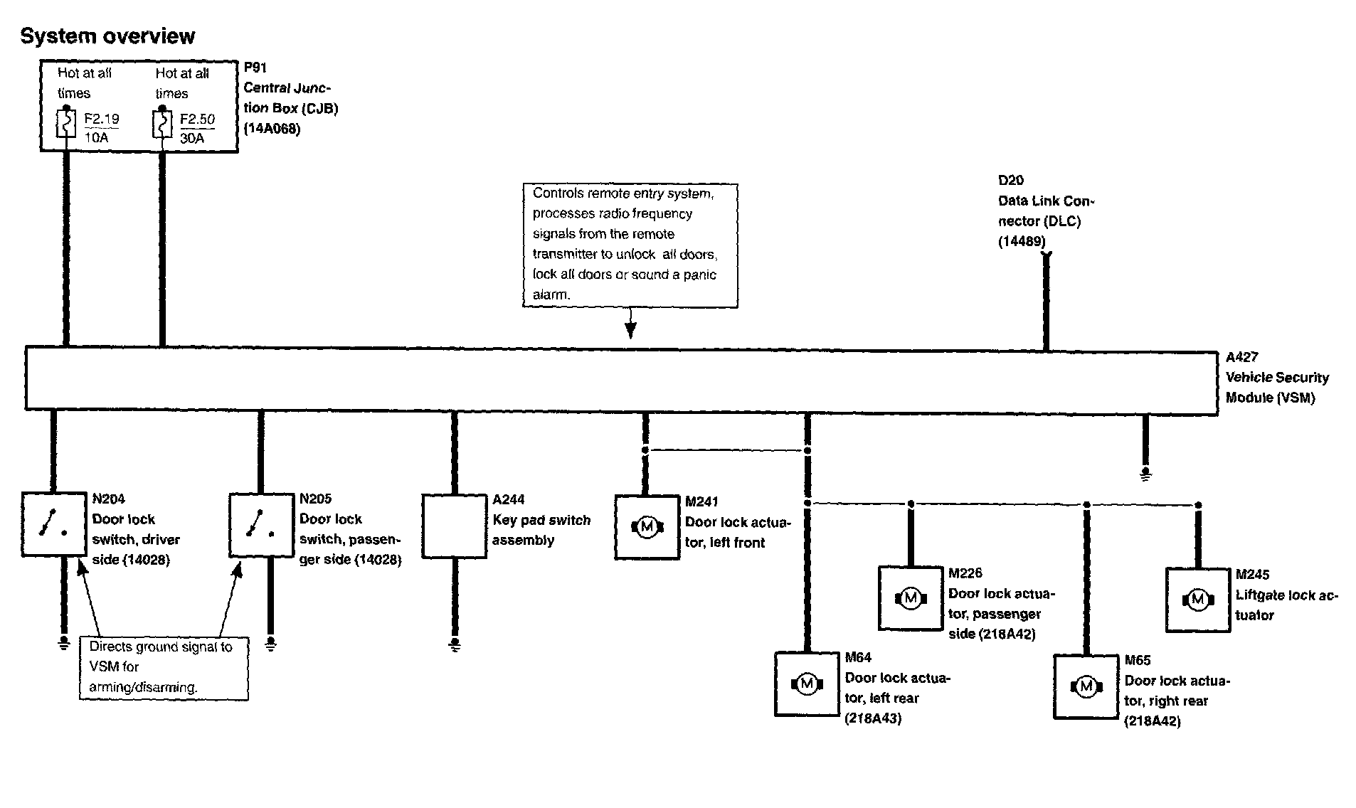
Diagram 117-2:
Diagram 117-3:
Diagram 117-4: