Curiosii for ever!
: Car repair manuals for everyone.
Home
>>
Fiat
>>
2012
>>
500 L4-1.4L
>>
Repair and Diagnosis
>>
Body and Frame
>>
Sound Proofing / Insulation
>>
Locations
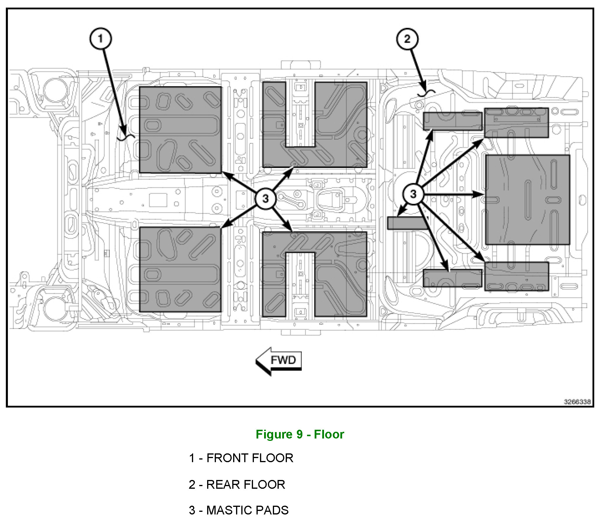
Sound Proofing / Insulation: Locations
SOUND DEADENER LOCATIONS