Curiosii for ever!: Car repair manuals for everyone.

Cruise Control - Manual Update

88amcjeep05

Models

1988 Eagle Premier


Subject

Cruise Control System Revisions


Index

ELECTRICAL


Date


June 6, 1988

No.

08-52-88

(C08-55)

P-2250
This bulletin is intended to update the 1988 Premier cruise control system information published in the Premier Service Repair Manual (M.R. 287) and the 1988 Premier Electrical Troubleshooting Manual.


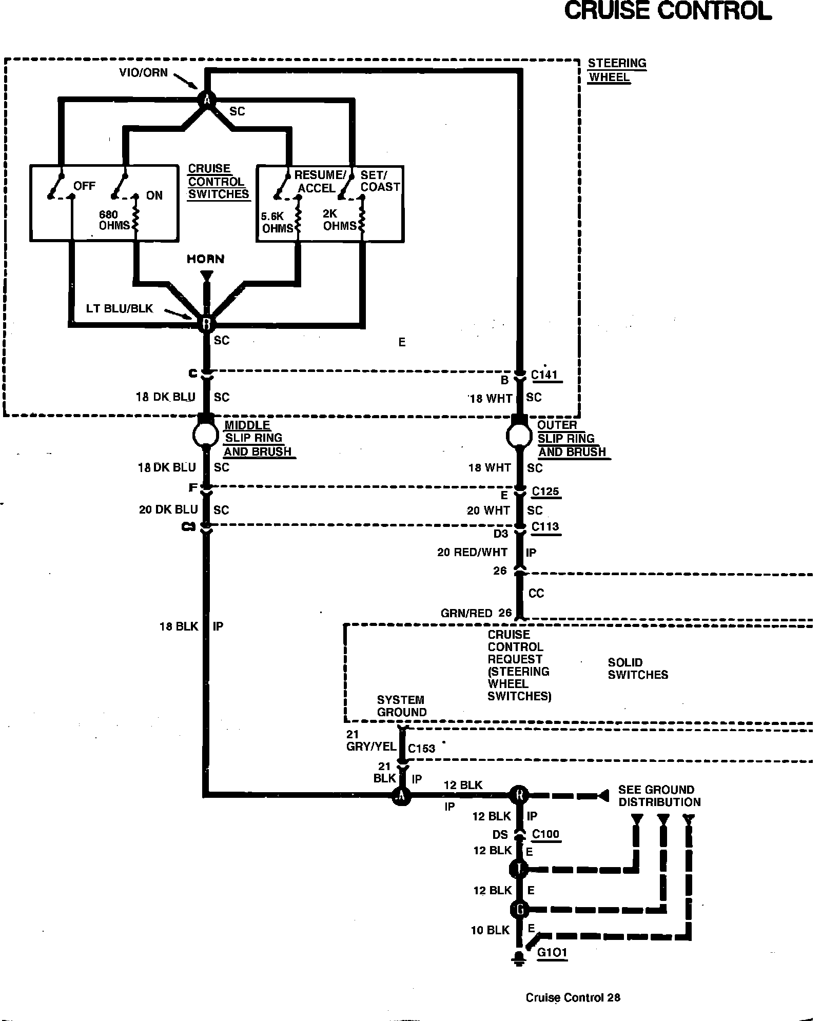
GENERAL SYSTEM OPERATION

Cruise control operation is limited to speeds above 25 to 30 MPH. At any speed above 25 to 30 MPH the system will maintain a selected road speed within 3 MPH on a level road (grades less than 3%). A change greater than 3 MPH may be experienced when driving on unusually hilly terrain, pulling a trailer, at high altitudes or if engine performance is poor.

To activate the system press the ON switch. Depressing the ON switch will activate the speed control module but will not engage the speed control. Accelerate the vehicle to the desired speed above 25-30 MPH and press the SET/COAST or the RESUME/ACCEL switch. The speed control will be activated and vehicle speed will be maintained.

If a lower speed is desired while cruising at a selected speed, depress and hold the SET/COAST switch until the automobile decelerates to the desired speed. When the switch is released, the new selected speed will be maintained as long as that selected speed is above 25-30 MPH.

If a higher speed is desired, accelerate to the desired speed and press (for less than .25 seconds) either the SET/COAST or the RESUME/ACCEL switch and release. Another way of achieving an increased cruising speed would be to press and hold the RESUME/ACCEL switch (for longer than .25 seconds) causing the vehicle to accelerate. When the RESUME/ACCEL switch is released a new vehicle speed will be set. A "Tap-up" feature to obtain small incremental increases in set speed does not exist.
The driver may regain normal control by pressing the OFF switch, by pressing the brake pedal (for longer than 0.5 seconds) or by shifting to Neutral. If either the brake or shifting method is used to regain control, the previously selected road speed will be maintained in memory and may be regained by pressing (for less than .25 seconds) the RESUME/ACCEL switch. The memory may be erased by pressing the OFF switch or by turning the ignition off. Neither the SET or RESUME switches will activate the system after the OFF switch has been pressed.

The cruise control system has several safety features in addition to the OFF switch and brake switch. The maximum acceleration rate during a RESUME or ACCEL command is 1.5 MPH per second. The system will disengage if the vehicle speed drops below 25-30 MPH. If the vehicle accelerates or decelerates more than 10 MPH per second, the speed stored in the memory will be reduced by 10 MPH and the system will remain inactive until the vehicle speed is within 4 MPH of the reduced set speed. This may happen as a result of driving on ice. Accelerating on the downslope of a steep hill or driving through a deep puddle of water.

The cruise light will illuminate whenever the cruise control system is engaged and is controlling the vehicle speed. The light will turn off when; the OFF switch is pressed, the brake is pressed (for longer than 0.5 seconds), the transmission is shifted to Neutral, if the driver accelerates the vehicle more than 4 MPH above the set speed with the accelerator pedal, or if the vehicle speed drops more than 4 MPH below the set speed (climbing a hill). The cruise light will turn on when the vehicle speed returns to within 4 MPH of the set speed.

CRUISE CONTROL SYSTEM TEST & REPAIR

1. Verify an adequate and consistent vacuum to the cruise control servo.

2. Verify that the cruise control cable is attached to the throttle body.

3. Verify that the cruise control cable is attached to the servo by measuring the free play (5/16" to 9/16") in the cable at the throttle body mounting bracket. If greater than 9/16", remove cable housing from servo and correct.

4. Verify speed sensor module operation by observing proper speedometer operation.

5. Proceed to the attached circuit check.


POLICY: For Information Only.









Cruise Control Module Voltage Test

1. CIRCUIT CHECK: DISCONNECT C572 FROM CRUISE CONTROL MODULE, PUT IGNITION SWITCH IN ON POSITION.

NOTE: Make The Following Measurements At Connector C572









Cruise Control Module Resistance Test

2. CIRCUIT CHECK: REMOVE NEGATIVE BATTERY TERMINAL
NOTE: Make The Following Measurements at connector C572