Curiosii for ever!: Car repair manuals for everyone.

Ground Distribution

8W-15-2:




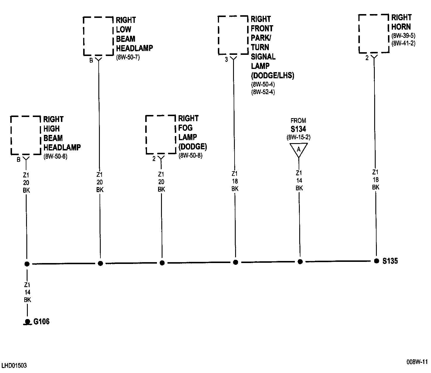
Left Fog Lamp
Left Front Park/Turn Signal Lamp
Left High Beam Headlamp
Left Horn
Left Low Beam Headlamp
Right Fog Lamp
Right Front Park/Turn Signal Lamp


8W-15-3:




G106
Right Fog Lamp
Right Front Park/Turn Signal Lamp
Right High Beam Headlamp
Right Horn
Right Low Beam Headlamp


8W-15-4:




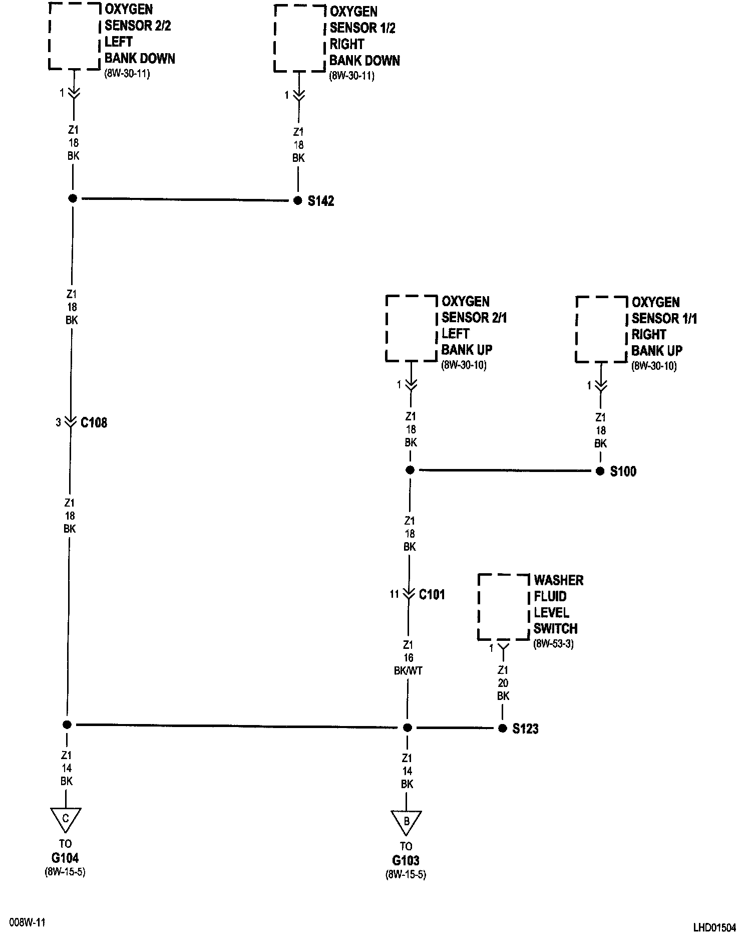
Oxygen Sensor 111 Right Bank Up
Oxygen Sensor 1/2 Right Bank Down
Oxygen Sensor 2/1 Left Bank Up
Oxygen Sensor 2/2 Left Bank Down
Washer Fluid Level Switch


8W-15-5:




A/C Compressor Clutch
Brake Pressure Switch
Controller Anti-Lock Brake
G100
G101
G103
G104
Transmission Control Relay
Vehicle Speed Control Servo
Windshield Washer Pump Motor
Windshield Wiper Motor
Wiper On/Off Relay


8W-15-6:




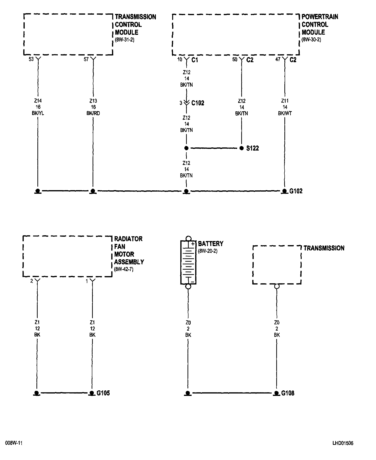
Battery
G102
G105
G108
Powertrain Control Module
Radiator Fan Motor Assembly
Transmission Control Module


8W-15-7:




Ash Receiver Lamp
Automatic Temperature Control Head
Blower Motor Power Module
Body Control Module
Cigar Lighter
Combination Flasher
Data Link Connector
G200
Glove Box Lamp
Headlamp Switch
Instrument Cluster
Junction Block
Manual Temperature Control Head
PRNDL Illumination
Turn Signal/Hazard Switch


8W-15-8:




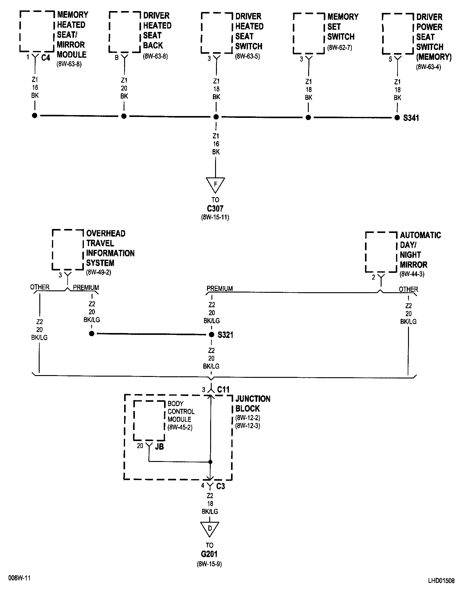
Automatic Day/Night Mirror
Body Control Module
Driver Heated Seat Back
Driver Heated Seat Switch
Driver Power Seat Switch
Junction Block
Memory Heated Seat/Mirror Module
Memory Set Switch


8W-15-9:




Analog Clock
Automatic Temperature Control Head
Brake Lamp Switch
Data Link Connector
G201
Ignition Switch
Instrument Cluster
Occupant Restraint Controller
Radio
Seat Belt Switch
Sentry Key Immobilizer Module
Traction Control Switch


8W-15-10:




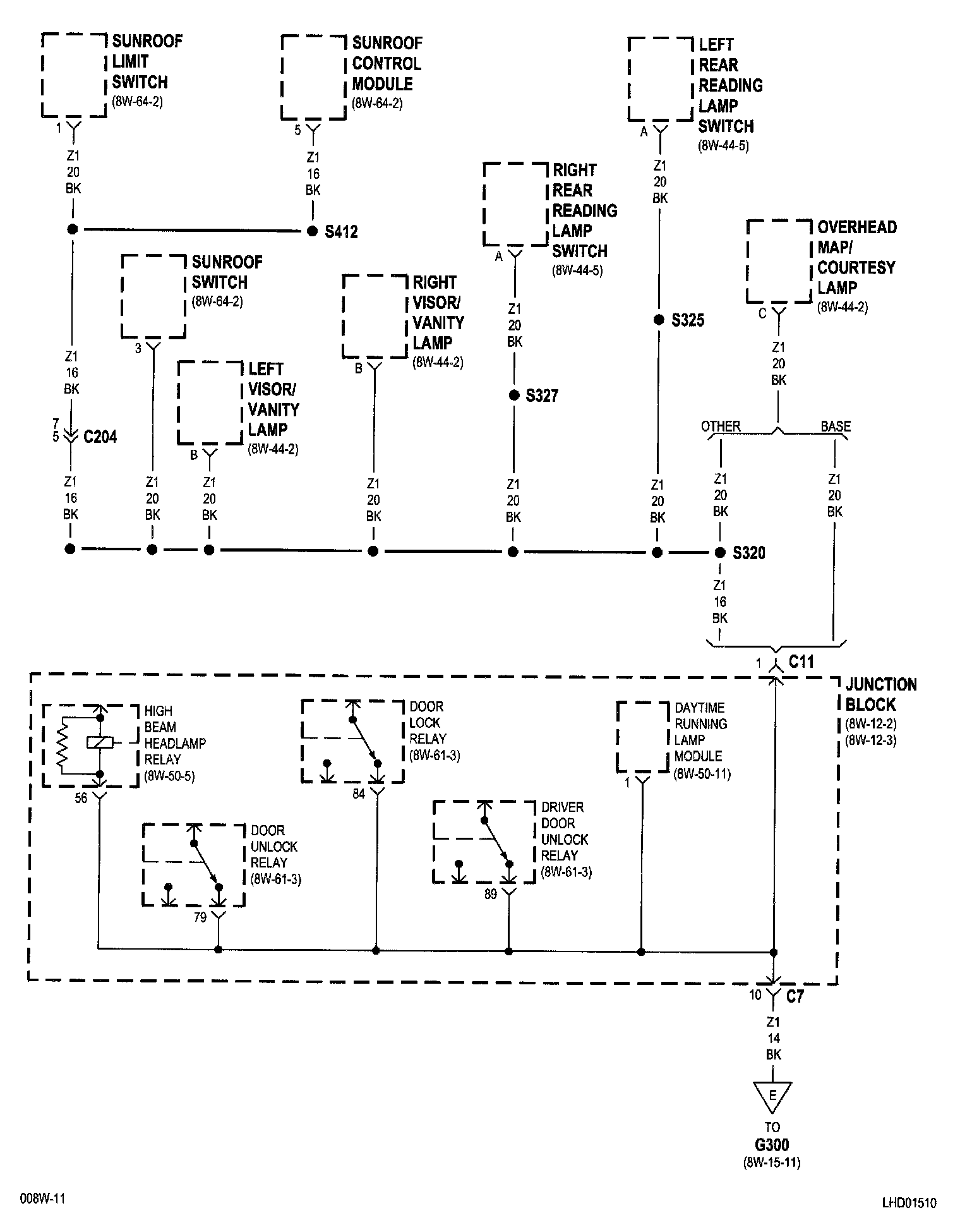
Daytime Running Lamp Module
Door Lock Relay
Door Unlock Relay
Driver Door Unlock Relay
High Beam Headlamp Relay
Junction Block
Left Rear Reading Lamp Switch
Left Visor/Vanity Lamp
Overhead Map/Courtesy Lamp
Overhead Travel Information System
Right Rear Reading Lamp Switch
Right Visor/Vanity Lamp
Sunroof Control Module
Sunroof Limit Switch
Sunroof Switch


8W-15-11:




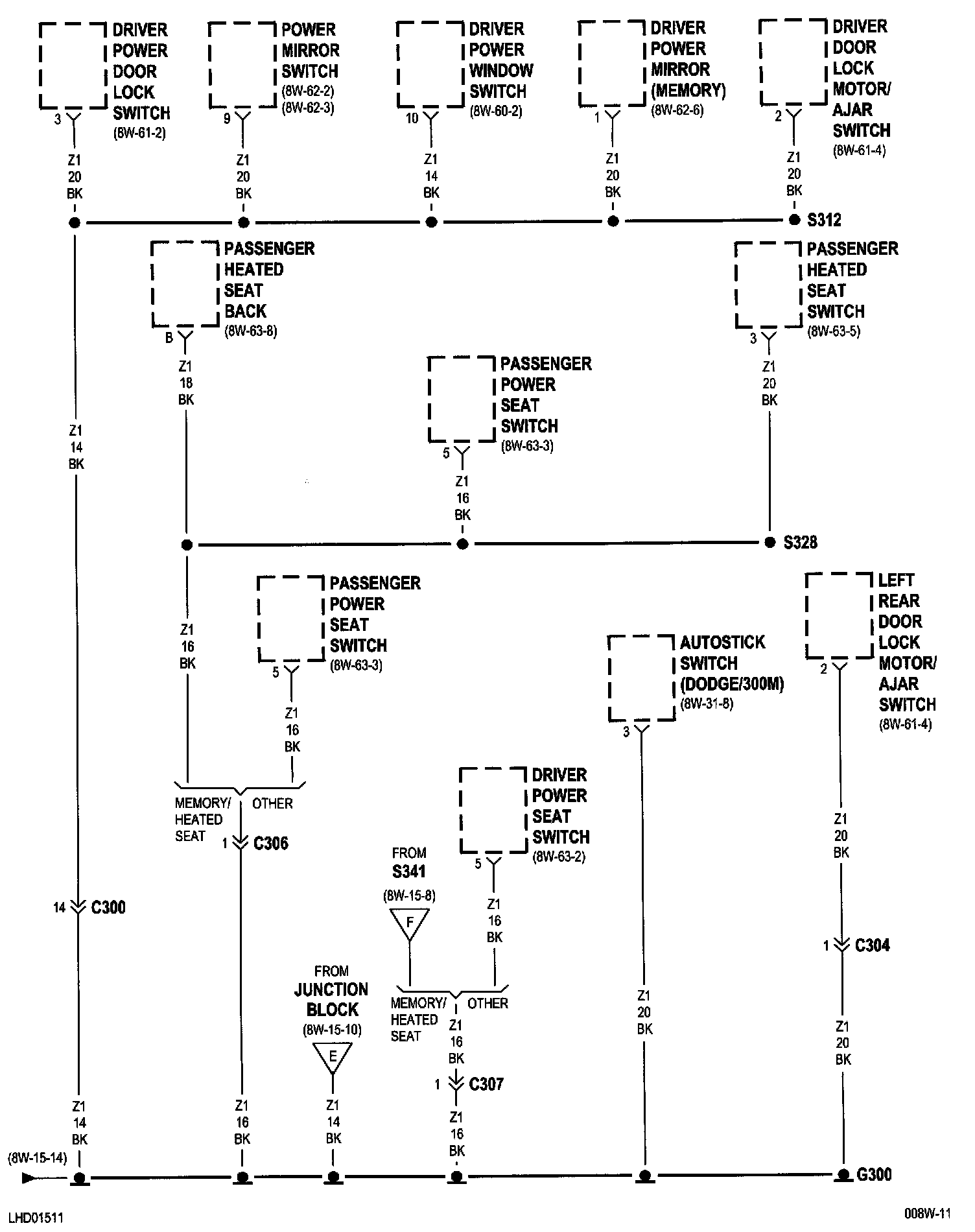
Autostick Switch
Driver Door Lock Motor/Ajar Switch
Driver Power Door Lock Switch
Driver Power Mirror
Driver Power Seat Switch
Driver Power Window Switch
G300
Left Rear Door Lock Motor/Ajar Switch
Passenger Heated Seat Back
Passenger Heated Seat Switch
Passenger Power Seat Switch
Power Amplifier
Power Mirror Switch


8W-15-12:




Right Back-Up Lamp
Right Rear Side Marker Lamp
Right Rear Turn Signal Lamp
Right Tail Lamp
Right Tail/Stop Lamp
Right Tail/Stop Lamp No.1
Right Tail/Stop Lamp No.2
Right Tail/Turn Signal Lamp


8W-15-13:




Center High Mounted Stop Lamp
Center High Mounted Stop Lamp No.1
Center High Mounted Stop Lamp No.2
Decklid Release Solenoid/Ajar Switch
G400
Trunk Knock Out Switch


8W-15-14:




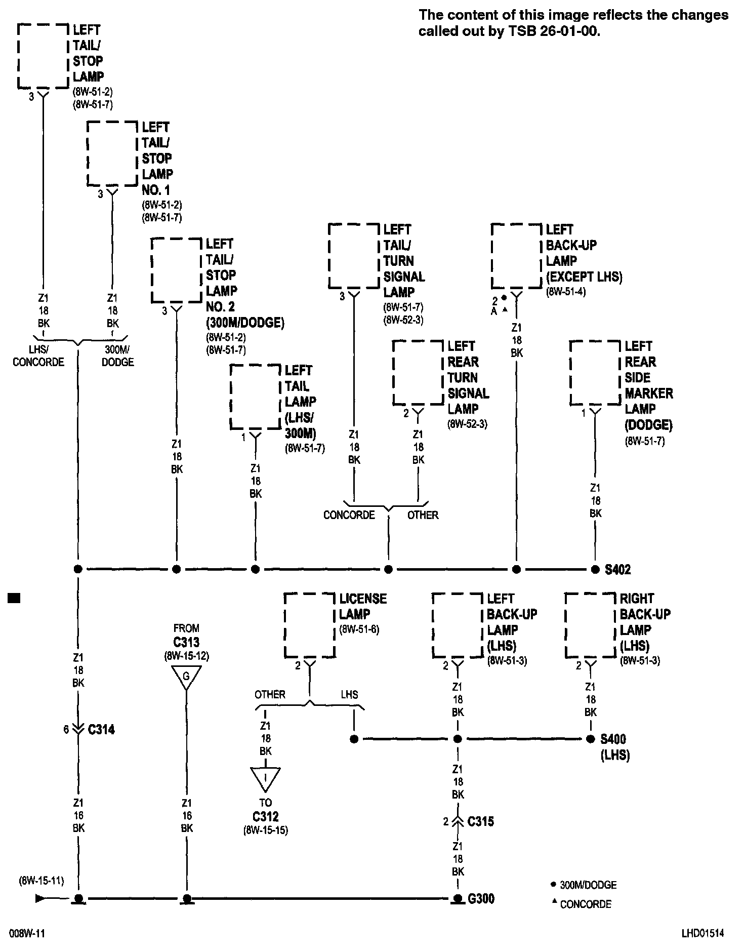
G300
Loft Back-Up Lamp
Left Rear Side Marker Lamp
Left Rear Turn Signal Lamp
Left Tail Lamp
Left Tail/Stop Lamp
Left Tail/Stop Lamp No.1
Left Tail/Stop Lamp No.2
Left Tail/Turn Signal Lamp
License Lamp


8W-15-15:




Center High Mounted Stop Lamp No.1
Center High Mounted Stop Lamp No.2
Fuel Pump Module
G301
G303
Passenger Door Lock Motor/Ajar Switch
Passenger Power Door Lock Switch
Passenger Power Mirror
Right Rear Door Lock Motor/Ajar Switch


NOTE: To view sheets referred to in these diagrams, see Complete Body and Chassis Diagrams.
Electrical Diagrams