Curiosii for ever!: Car repair manuals for everyone.

Transmission Control Systems

ELC 4-Speed Automatic Transaxle (Part 1 Of 6):




Combination Meter
Dedicated Fuse
EATX-ECM
J/B
J/C (1, 3)
Overdrive Switch

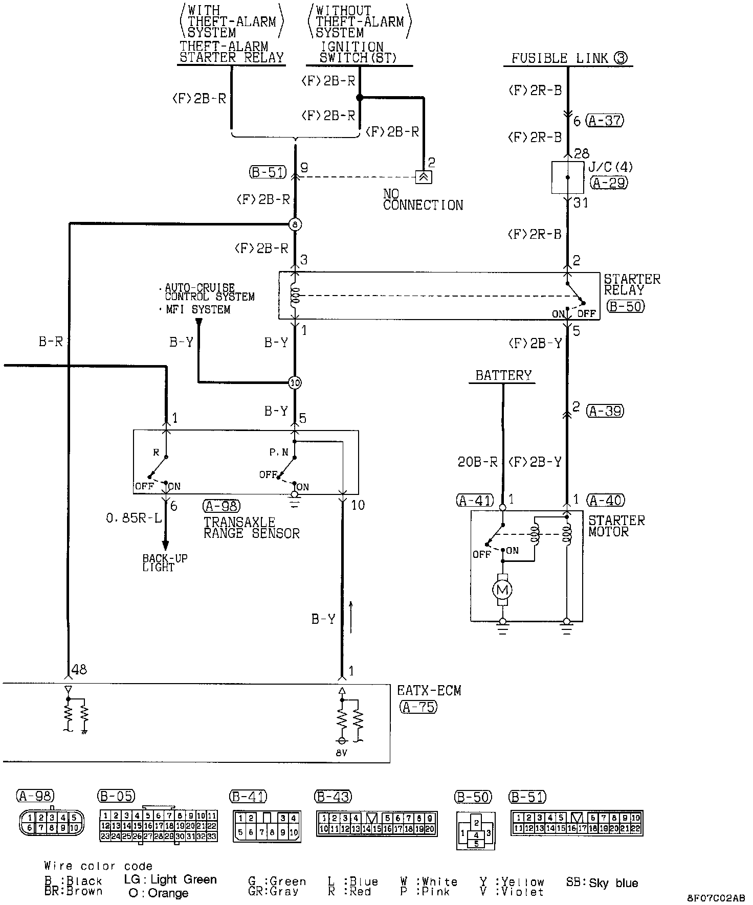
ELC 4-Speed Automatic Transaxle (Part 2 Of 6):




EATX-ECM
J/C (4)
Starter Motor
Starter Relay
Transaxle Range Sensor

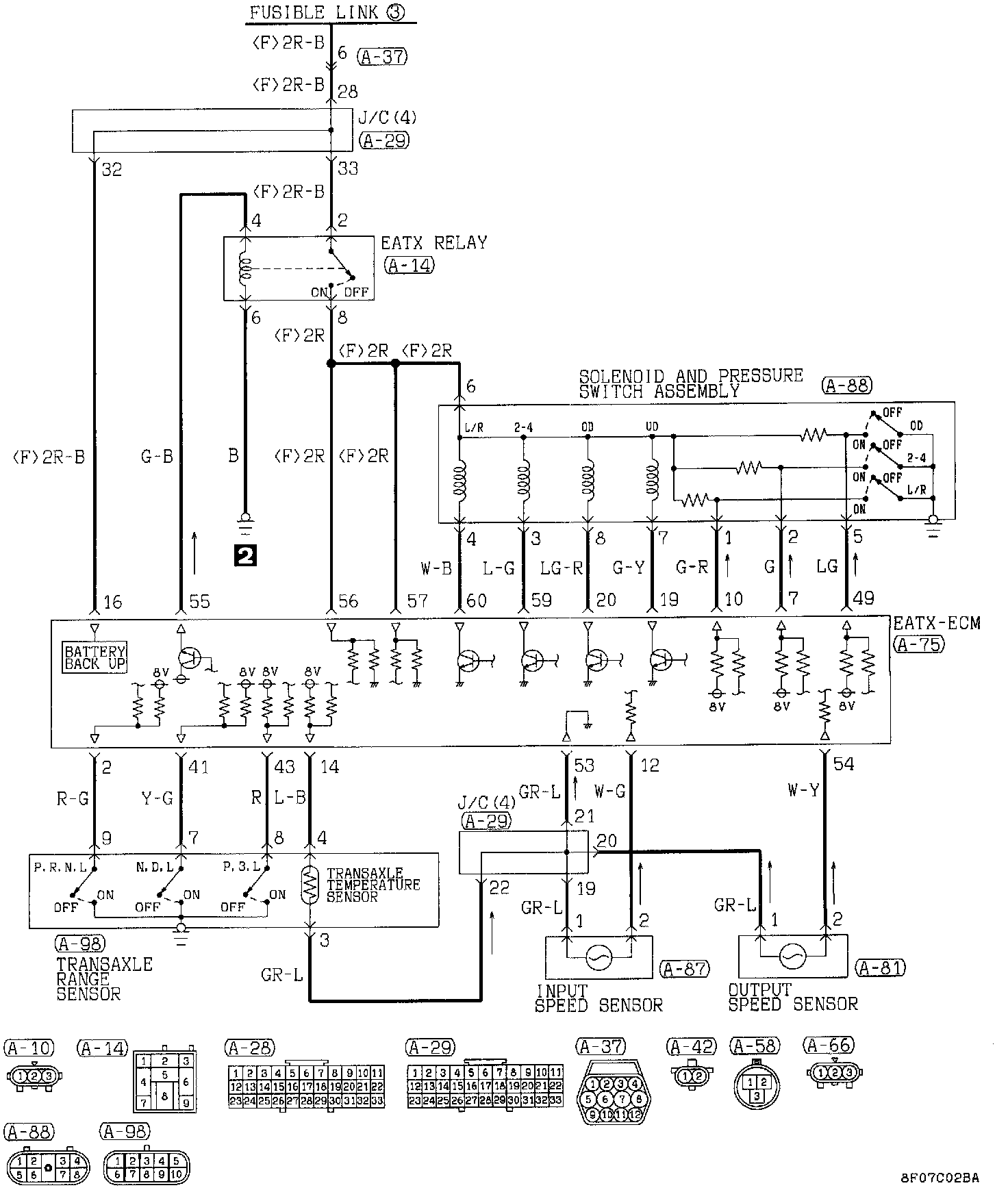
ELC 4-Speed Automatic Transaxle (Part 3 Of 6):




EATX-ECM
EATX Relay
Input Speed Sensor
J/C (4)
Output Speed Sensor
Solenoid And Pressure Switch Assembly
Transaxle Range Sensor

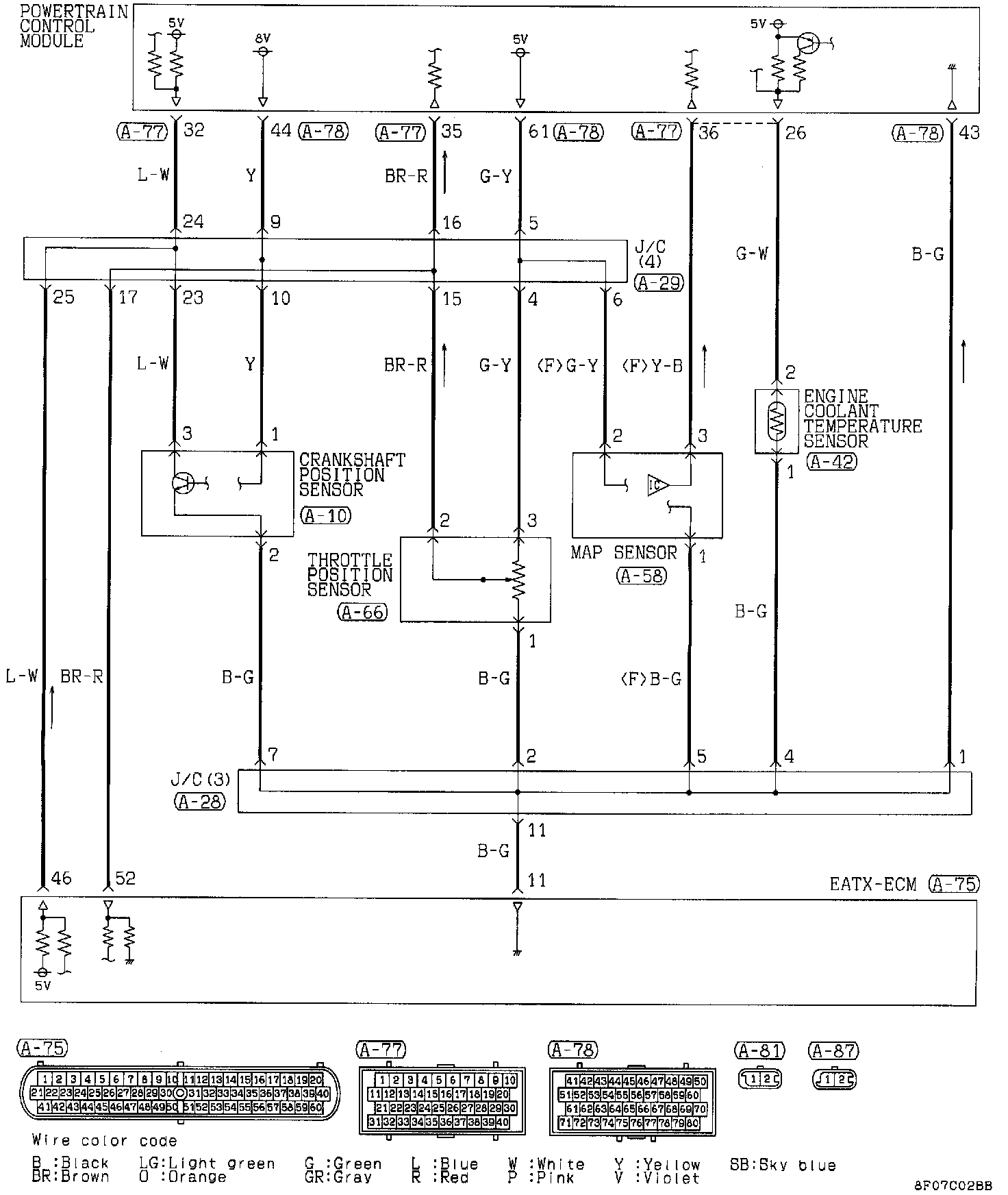
ELC 4-Speed Automatic Transaxle (Part 4 Of 6):




Crankshaft Position Sensor
Engine Coolant Temperature Sensor
EATX-ECM
J/C (3, 4)
MAP Sensor
Powertrain Control Module
Throttle Position Sensor

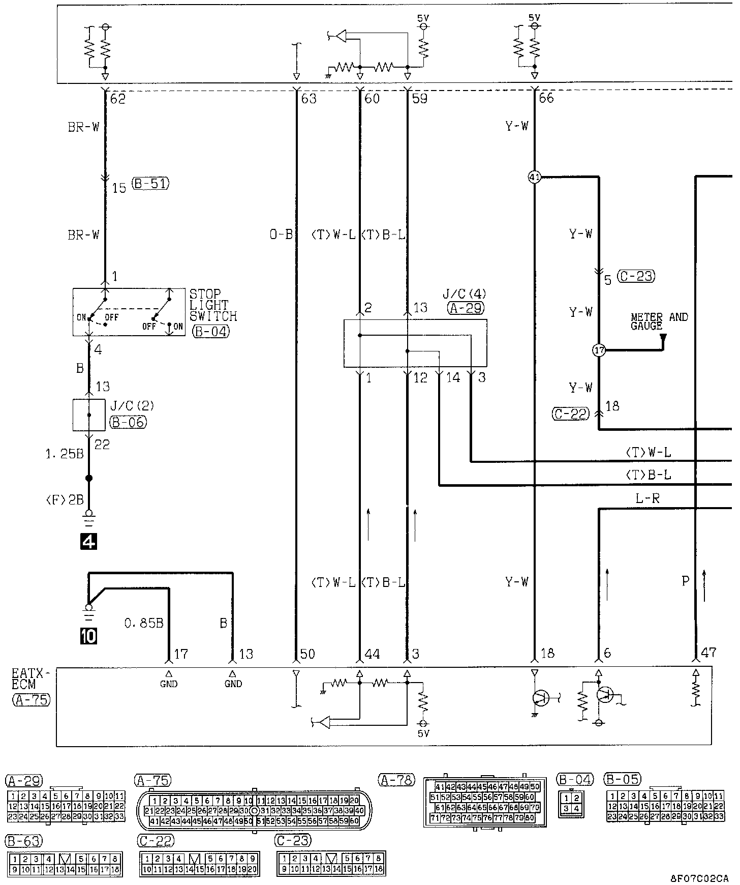
ELC 4-Speed Automatic Transaxle (Part 5 Of 6):




EATX-ECM
J/C (2, 4)
Powertrain Control Module
Stop Light Switch

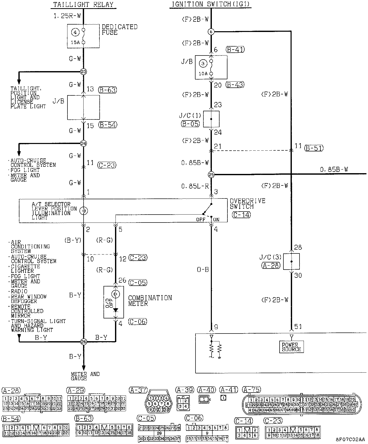
ELC 4-Speed Automatic Transaxle (Part 6 Of 6):




Dedicated Fuse
Data link Connector
J/B
J/C (1, 2)
Powertrain Control Module