Curiosii for ever!
: Car repair manuals for everyone.
Home
>>
Dodge
>>
1987
>>
600 L4-153 2.5L SOHC
>>
Repair and Diagnosis
>>
Diagrams
>>
Electrical Diagrams
>>
Accessory Delay Module
Accessory Delay Module
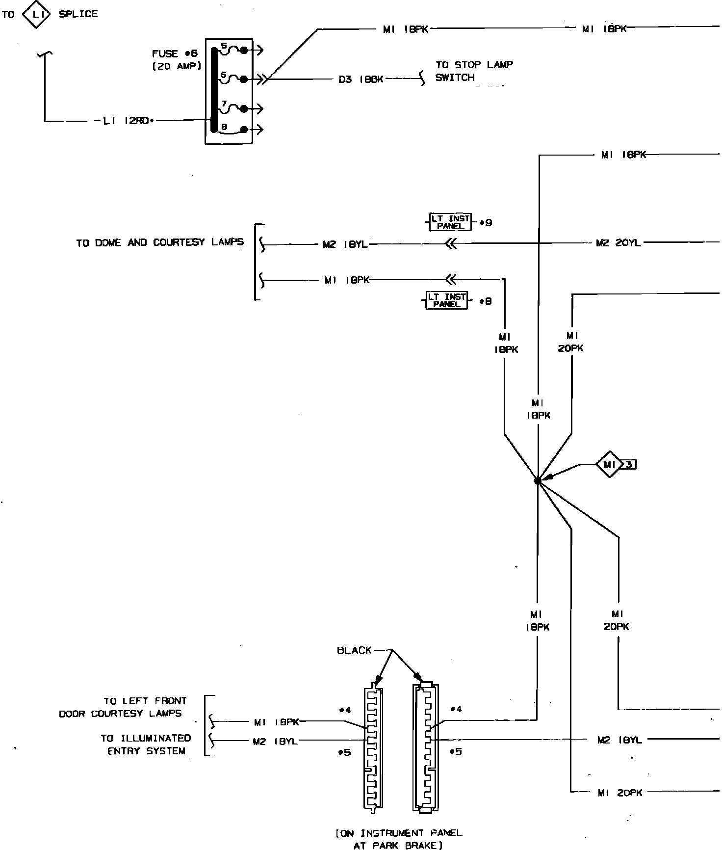
Fig. 66 Time Delay Relay System Wiring Circuit (Part 1 of 2):
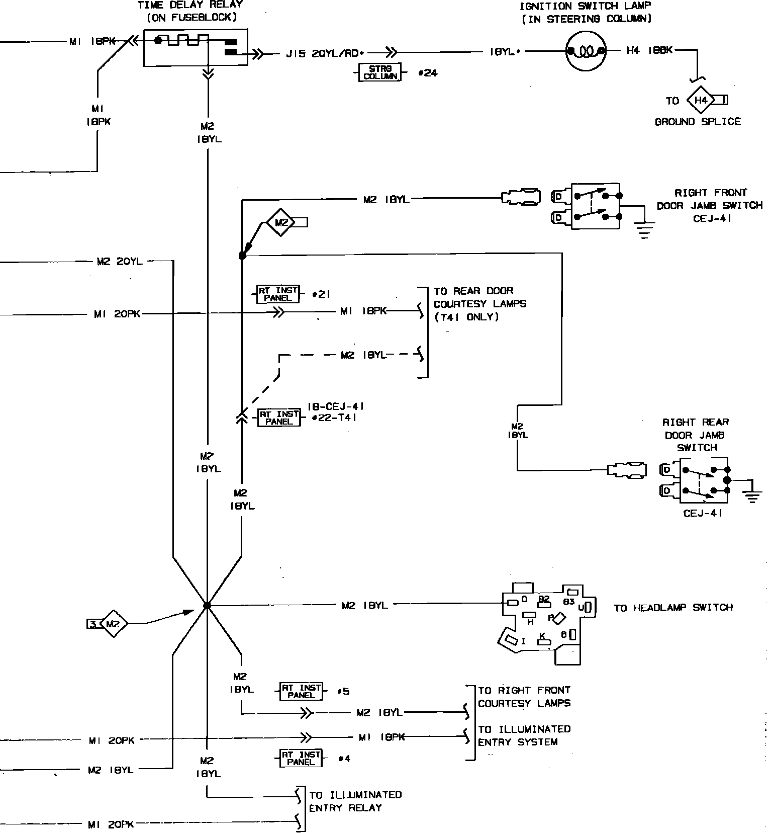
Fig. 66 Time Delay Relay System Wiring Circuit (Part 2 of 2):