Curiosii for ever!: Car repair manuals for everyone.

Both Power Windows Inoperative







*BOTH POWER WINDOWS INOPERATIVE









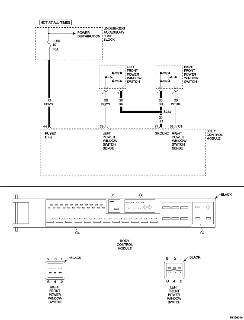
For a complete Power Windows Circuit Diagram, Schematics and Diagrams.

Diagnostic Test

1. MEASURE POWER WINDOWS FUSED B(+) CIRCUIT
NOTE: Inspect Fuse 19 located in the Underhood Accessory Fuse Block. If the fuse is open, repair the cause of the open fuse before continuing.





Turn the ignition off.
Disconnect the Body Control Module (BCM) harness connector.

NOTE: Check connectors - Clean/repair as necessary.

Turn the ignition on.
Measure the voltage at the BCM C4 harness connector Fused B(+) circuit.
Is the voltage above 10 volts?

Yes

- Go to 2

No

- Repair the BCM Fused B(+) circuit for an open.
- Perform BODY VERIFICATION TEST. Body Verification Test

2. MEASURE THE GROUND CIRCUIT RESISTANCE




Turn the ignition off.
Disconnect the Left Front Power Window Switch harness connector.

NOTE: Check connectors - Clean/repair as necessary.

Measure the resistance of the Ground circuit from the Left Front Power Window Switch harness connector to the BCM C4 harness connector.
Is the resistance below 5.0 ohms?

Yes

- Replace the Body Control Module. Body Control Module - Removal.
- Perform BODY VERIFICATION TEST. Body Verification Test

No

- Repair the Ground circuit for an open.
- Perform BODY VERIFICATION TEST. Body Verification Test