Curiosii for ever!: Car repair manuals for everyone.

Inspection Procedure 31

INSPECTION PROCEDURE 31: IGNITION SWITCH-ST SYSTEM

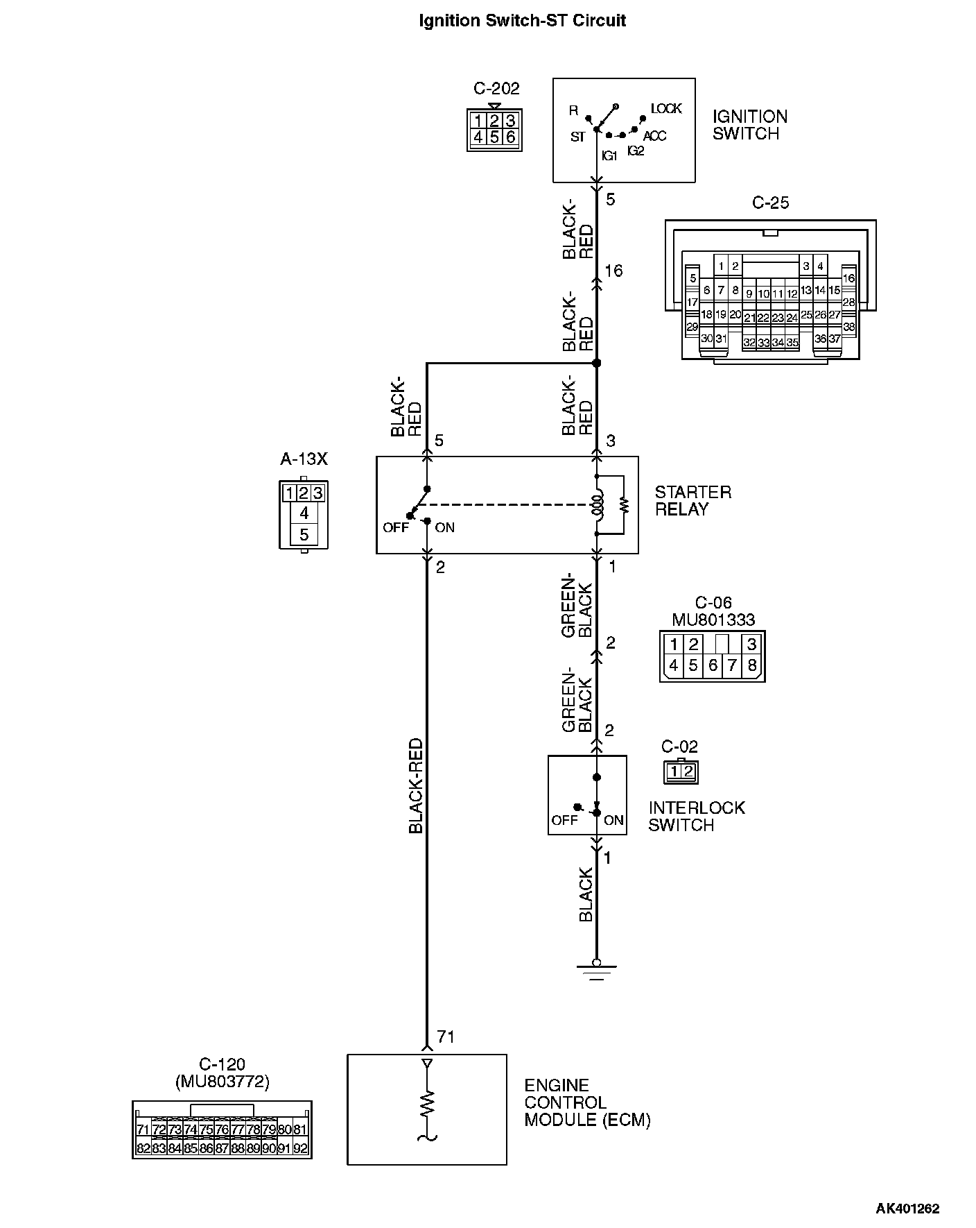
Ignition Switch - ST Circuit:




Connectors:




CIRCUIT OPERATION
- The battery positive voltage is applied to the ECM (terminal No. 71) via the starter relay during engine cranking. With this, the ECM detects that the engine is being cranked.

TROUBLESHOOTING HINTS (The most likely causes for this case: )
- Malfunction of the ignition switch.
- Malfunction of the starter relay.
- Improper connector contact, open circuit or short-circuited harness wire.
- Malfunction of the ECM.

DIAGNOSIS




STEP 1. Check connector A-13X at starter relay for damage.

Q: Is the connector in good condition?

YES: Go to Step 2.
NO: Repair or replace it. Refer to Harness Connector Inspection.Then confirm that the malfunction symptom is eliminated.

STEP 2. Check the starter relay. Refer to Starting system On-vehicle Service - Starter relay check.

Q: Are there any abnormalities?

YES: Go to Step 3.
NO: Repair or replace it. Then confirm that the malfunction symptom is eliminated.







STEP 3. Measure the power supply voltage at starter re connector A-13X.

1. Disconnect the connector A-13X and measure at the harness side.
2. Turn the ignition switch to the "START" position.
3. Measure the voltage between terminals No. 3, No. 5 an ground.
- Voltage should be battery positive voltage.
4. Turn the ignition switch to the "LOCK" (OFF) position.

Q: Is battery positive voltage (approximately 12 volts) present?

YES: Go to Step 4.
NO: Check connector C-25 at intermediate connector damage, and repair or replace as required. Refer Harness Connector Inspection. If intermediate connector is in good condition, repair harness wire between ignition switch connector C-202 (terminal No. 5) and starter relay connector A-13X (terminals No. 3, No. 5) because open circuit. Then confirm that the malfunction symptom is eliminated.




STEP 4. Check connector C-120 at ECM for damage.

Q: Is the connector in good condition?

YES: Go to Step 5.
NO: Repair or replace it. Refer to Harness Connector Inspection. Then confirm that the malfunction symptom is eliminated.







STEP 5. Measure the power supply voltage at ECM connector C-120.

1. Disconnect the connector C-120 and measure at the harness side.
2. Turn the ignition switch to the "START" position.
3. Measure the voltage between terminal No. 71 and ground.
- Voltage should be battery positive voltage.
4. Turn the ignition switch to the "LOCK" (OFF) position.

Q: Is battery positive voltage (approximately 12 volts) present?

YES: Go to Step 6.
NO: Repair harness wire between starter relay connector A-13X (terminal No. 2) and ECM connector C-120 (terminal No. 71) because of open circuit. Then confirm that the malfunction symptom is eliminated.




STEP 6. Check connector C-02 at interlock switch for damage.

Q: Is the connector in good condition?

YES: Go to Step 7.
NO: Repair or replace it. Refer to Harness Connector Inspection. Then confirm that the malfunction symptom is eliminated.

STEP 7. Check the interlock switch. Refer to On-vehicle Service Interlock switch check and adjustment

Q: Are there any abnormalities?

YES: Go to Step 8.
NO: Repair or replace it. Then confirm that the malfunction symptom is eliminated.







STEP 8. Measure the power supply voltage at interlock switch connector C-02.

1. Disconnect the connector C-02 and measure at the harness side.
2. Turn the ignition switch to the "START" position.
3. Measure the voltage between terminal No. 2 and ground.
- Voltage should be battery positive voltage.
4. Turn the ignition switch to the "LOCK" (OFF) position.

Q: Is battery positive voltage (approximately 12 volts) present?

YES: Go to Step 9.
NO: Check connector C-06 at intermediate connector for damage, and repair or replace as required. Refer to Harness Connector Inspection. If intermediate connectors is in good condition, repair harness wire between starter relay connector A-13X (terminal No. 1) and interlock switch connector C-02 (terminal No. 2) because of open circuit. Then confirm that the malfunction symptom is eliminated.







STEP 9. Check for continuity at interlock switch harness side connector C-02.

1. Disconnect the connector C-02 and measure at the harness side.
2. Check for the continuity between terminal No. 1 and ground.
- Should be less than 2 ohms.

Q: Does continuity exist?

YES: Replace the ECM. Then confirm that the malfunction symptom is eliminated.
NO: Repair harness wire between interlock switch connector C-02 (terminal No. 1) and ground because of open circuit or harness damage. Then confirm that the malfunction symptom is eliminated.