Curiosii for ever!: Car repair manuals for everyone.

Inspection Procedure 30

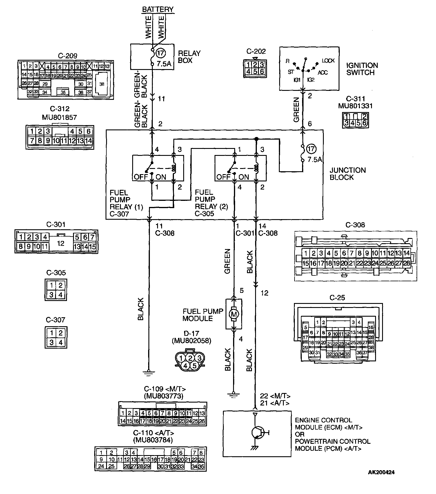
INSPECTION PROCEDURE 30: Fuel pump system

Fuel Pump Circuit:




Connectors:




Connectors:





CIRCUIT OPERATION
- Battery positive voltage is applied to the fuel pump relay 1 (terminal No. 3) from the ignition switch-IG.
Ground is provided through terminal No. 2 to chassis ground.
- When the ignition switch is turned to the "ON" position, the battery positive voltage is applied to the fuel pump relay 2 (terminal No. 2) from the fuel pump relay 1 (terminal No. 1).
- A battery positive voltage is applied on the fuel pump relay 2 (terminal No. 3) from the ignition switch-IG.
- During cranking & while the engine is running, the ECM or PCM turns the power transistor in the ECM or PCM ON to ground the fuel pump relay 2 coil. With this, the fuel pump relay turns ON, and the battery positive voltage is supplied to the fuel pump from the fuel pump relay 2 (terminal No. 4).

TROUBLESHOOTING HINTS (The most likely causes for this code to be set are:)
- Malfunction of the fuel pump relay.
- Malfunction of the fuel pump.
- Improper connector contact, open or short-circuited harness wire.
- Malfunction of the ECM or PCM .

DIAGNOSIS

Required Special Tool:
- MB991502: Scan Tool (MUT-II)





STEP 1. Using scan tool MB991502, check actuator test item 07:
Fuel Pump.

CAUTION
To prevent damage to scan tool8Wl MB991502, always turn the ignition switch to the "LOCK" (OFF) position before connecting or disconnecting scan tool MB991502.

1. Connect scan tool MB991502 to the data link connector.
2. Turn the ignition switch to the "ON" position.
3. Set scan tool MB991502 to the actuator test mode for item 07, Fuel Pump.
- An operation sound of the fuel pump should be heard.
4. Turn the ignition switch to the "LOCK" (OFF) position.

Q: Is the fuel pump operating properly?

YES: That this malfunction is intermittent. Refer to INTRODUCTION, How to Use Troubleshooting/Inspection Service Points.
NO: Go to Step 2.





STEP 2. Check connector C-307 at fuel pump relay 1 and connector C-305 at fuel pump relay 2 for damage.

Q: Is the connector in good condition?

YES: Go to Step 3.
NO: Repair or replace it. Refer to Harness Connector Inspection. Then confirm that the malfunction symptom is eliminated.











STEP 3. Check the fuel pump relay 1 and 2.

1. Remove the fuel pump relay.
2. Check for continuity between the fuel pump relay terminals No.2 and No.3.
- There should be continuity. (approximately 70 ohms)
3. Use jumper wires to connect fuel pump relay terminal No.3 to the positive battery terminal and terminal No.2 to the negative battery terminal.
4. Check for continuity between the fuel pump relay terminals No.1 and No.4 while connecting and disconnecting the jumper wire at the negative battery terminal.
- Should be less than 2 ohms. (Negative battery terminal connected)
- Should be open loop. (Negative battery terminal disconnected)
5. Install the fuel pump relay.

Q: Is the resistance normal?

YES: Go to Step 4.
NO: Replace the fuel pump relay. Then confirm that the malfunction symptom is eliminated.








STEP 4. Measure the power supply voltage at fuel pump relay 1 harness side connector C-307.

1. Disconnect the connector C-307 and measure at the harness side.
2. Measure the voltage between terminal No.4 and ground.
- Voltage should be battery positive voltage.

Q: Is battery positive voltage (approximately 12 volts) present?

YES: Go to Step 5.
NO: Check harness connectors C-209 and C-312 at intermediate connector for damage, and repair or replace as required. Refer to, Harness Connector Inspection. If intermediate connectors are in good condition, repair harness wire between relay box (fuse 24) and fuel pump relay 1 connector C-307 (terminal No.4) because of open circuit. Then confirm that the malfunction symptom is eliminated.








STEP 5. Measure the power supply voltage at fuel pump relay 1 harness side connector C-307.

1. Disconnect the connector C-307 and measure at the harness side.
2. Turn the ignition switch to the "ON" position.
3. Measure the voltage between terminal No.3 and ground.
- Voltage should be battery positive voltage.
4. Turn the ignition switch to the "LOCK" (OFF) position.

Q: Is battery positive voltage (approximately 12 volts) present?

YES: Go to Step 6.
NO: Check harness connector C-311 at intermediate connector for damage and repair or replace as required. Refer to, Harness Connector Inspection. If intermediate connector is in good condition, repair harness wire between ignition switch connector C-202 (terminal No.2) and fuel pump relay 1 connector C-307 (terminal No.3) because of open circuit. Then confirm that the malfunction symptom is eliminated.








STEP 6. Check for continuity at fuel pump relay 1 harness side connector C-307.

1. Disconnect {he connect6r C-307 and measure at the harness side.
2. Check for the continuity between terminal No.2 and ground.
- Should be less than 2 ohms.

Q: Does continuity exist?

YES: Go to Step 7.
NO: Check harness connector C-308 at intermediate connector for damage, and repair or replace as required. Refer to, Harness Connector Inspection. If intermediate connectors are in good condition, repair harness wire between fuel pump relay 1 connector C-307 (terminal No.2) and ground because of open circuit. Then confirm that the malfunction symptom is eliminated.








STEP 7. Measure the power supply voltage at fuel pump relay 2 harness side connector C-305.

1. Disconnect the connector C-305 and measure at the harness side.
2. Turn the ignition switch to the "ON" position.
3. Measure the voltage between terminal No.1 and ground.
- Voltage should be battery positive voltage.

Q: Is battery positive voltage (approximately 12 volts) present?

YES: Go to Step 8.
NO: Repair harness wire between fuel pump relay 1 connector C-307 (terminal No.1) and fuel pump relay 2 connector C-305 (terminal No.1) because of open circuit. Then confirm that the malfunction symptom is eliminated.








STEP 8. Measure the power supply voltage at fuel pump relay 2 harness side connector C-305.

1. Disconnect the connector C-305 and measure at the harness side.
2. Turn the ignition switch to the "ON" position.
3. Measure the voltage between terminal No.3 and ground.
- Voltage should be battery positive voltage.
4. Turn the ignition switch to the "LOCK" (OFF) position.

Q: Is battery positive voltage (approximately 12 volts) present?

YES: Go to Step 9.
NO: Check harness connector C-311 at intermediate connector for damage, and repair or replace as required. Refer to, Harness Connector Inspection. If intermediate connector is in good condition, repair harness wire between ignition switch connector C-202 (terminal No.2) and fuel pump relay 2 connector C-305 (terminal No.3) because of open circuit. Then confirm that the malfunction symptom is eliminated.





STEP 9. Check connector D-17 at fuel pump for damage.

Q: Is the connector in good condition?

YES: Go to Step 10.
NO: Repair or replace it. Refer to Harness Connector Inspection. Then confirm that the malfunction symptom is eliminated.








STEP 10. Check the fuel pump operation.

1. Disconnect fuel pump connector D-17.
2. Use jumper wires to connect fuel pump connector terminal No.5 to the positive battery terminal and terminal No.4 to the negative battery terminal.
- An operating sound of the fuel pump should be heard.

Q: Is the fuel pump operating properly?

YES: Go to Step 11.
NO: Replace the fuel pump. Then confirm that the malfunction symptom is eliminated.








STEP 11. Check for continuity at fuel pump harness side connector D-17.
1. Disconnect the connector D-17 and measure at the harness side.
2. Check for the continuity between terminal No.4 and ground.
- Should be less than 2 ohms.

Q: Does continuity exist?

YES: Go to Step 12.
NO: Repair harness wire damage between fuel pump connector D-17 (terminal No.4) and ground because of open circuit or harness damage. Then confirm that the malfunction symptom is eliminated.





STEP 12. Check for open circuit and short circuit to ground and harness damage between fuel pump relay 2 connector C-305 (terminal No.4) and fuel pump connector D-17 (terminal No.5).

NOTE: Check harness after checking intermediate connector C-301. If intermediate connectors are damaged, repair or replace them. After to Harness Connector Inspection. Then check that the malfunction is eliminated.

Q: Is the harness wire in good condition?

YES: Go to Step 13.
NO: Repair it. Then confirm that the malfunction symptom is eliminated.





STEP 13. Check connector C-109 at ECM or connector C-110 at PCM for damage.

Q: Is the connector in good condition?

YES: Go to Step 14.
NO: Repair or replace it. Refer to Harness Connector Inspection. Then confirm that the malfunction symptom is eliminated.

Connectors:











STEP 14. Measure the power supply voltage at ECM connector C-109 or PCM connector C-110
.

1. Disconnect the connector C-109 or C-110
and measure at the harness side.
2. Turn the
ignition switch to the "ON" position.
3. Measure the voltage between terminal No.22 or No. 21 and ground.
- Voltage should be battery positive voltage.
4. Turn the
ignition switch to the "LOCK" (OFF) position.

Q: Is battery positive voltage (approximately 12 volts) present?

YES: Replace the ECM or PCM. Then confirm that the malfunction symptom is eliminated.
NO: Check harness connectors C-25 and C-308 at intermediate connector for damage, and repair or replace as required. Refer to, Harness Connector Inspection. If intermediate connectors are in good condition, repair harness wire between fuel pump relay 2 connector C-305 (terminal No.2) and ECM connector C-109 (terminal No.22) or PCM connector C-110 (terminal No.21) because of open circuit. Then confirm that the malfunction symptom is eliminated.