Curiosii for ever!: Car repair manuals for everyone.

DTC 12








Connectors:






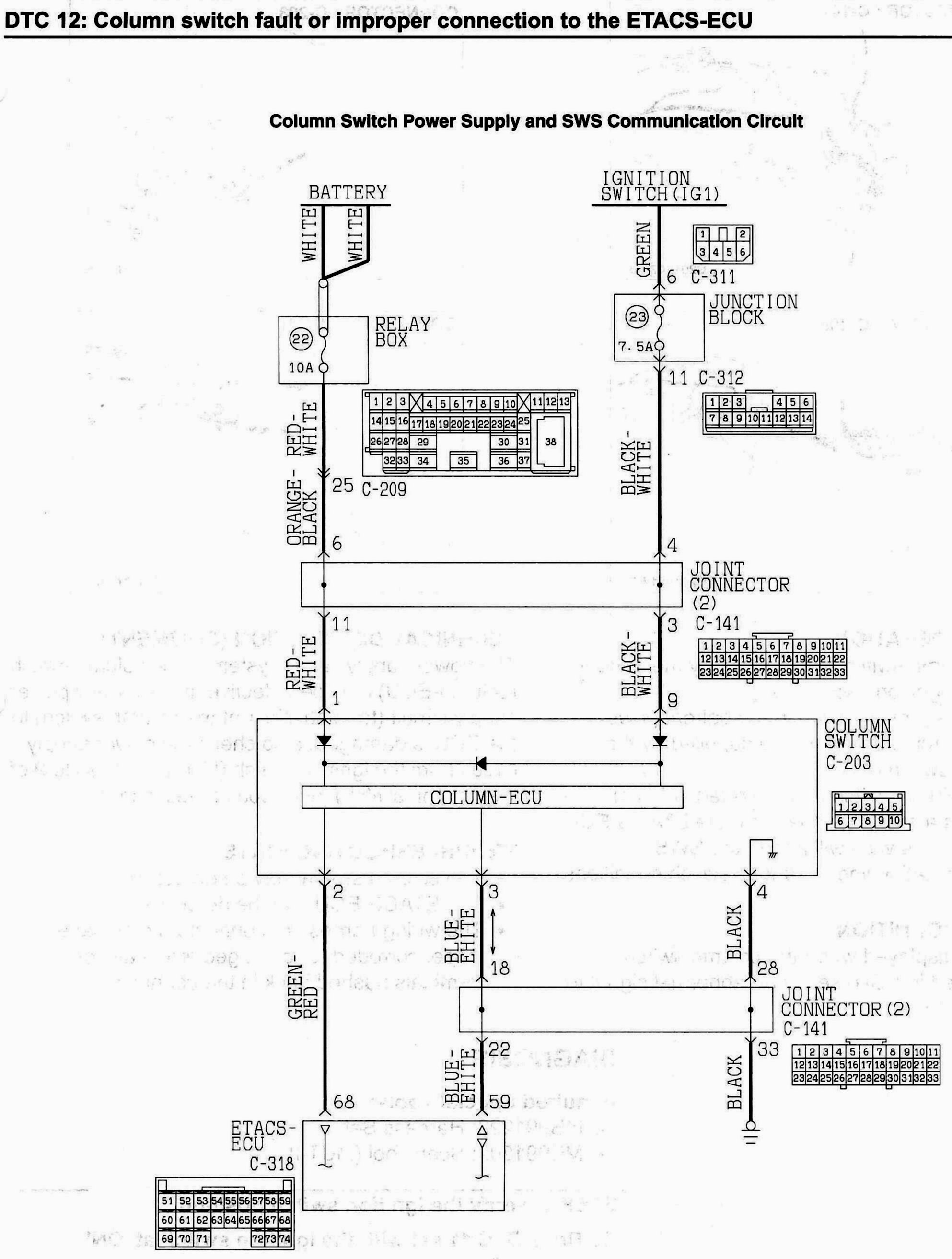
DTC 12: Column switch fault or improper connection to the ETACS-ECU

CIRCUIT OPERATION
- The column switch is energized by the battery and the ignition switch (IG1).
- If there is a malfunction in the battery power supply circuit, power will be supplied by the ignition switch (IG1).
- If the column switch (incorporated in ECU) receives a request signal from the ETACS-ECU, the column switch will inform the SWS communication line of various switch conditions.

TECHNICAL DESCRIPTION (COMMENT)
The power supply circuit system of the column switch (column-ECU) may be defective. If the battery power supply circuit (terminal No.1 of the column switch) to the ECU is damaged, also check the power supply circuit from the ignition switch (IG1) (terminal No.9 of the column switch), and repair if necessary.

TROUBLESHOOTING HINTS
- The column switch may be defective
- The ETACS-ECU may be defective
- The wiring harness or connectors may have loose, corroded, or damaged terminals, or terminals pushed back in the connector

DTC SET CONDITION
DTC 12 is displayed when the column switch (incorporated in ECU) sends an abnormal signal to the ETACS-ECU.

DIAGNOSIS
Required Special Tools:
- MB991223: Harness Set
- MB991502: Scan Tool (MUT-II)

STEP 1. Verify the ignition switch position.

Q: Does DTC 11 set with the ignition switch at 'ON' position?

YES : Go to Step 5.

NO : GotoStep2.

STEP 2. Check the battery power supply circuit to the column switch. Test at column switch connector C-203.




1. Disconnect column switch connector C-203 and measure the voltage available at the wiring harness side.




2. Measure the voltage between terminal 1 and ground.
- The voltage should equal approximately 12 volts (battery positive voltage).

Q: Is the measured voltage approximately 12 volts (battery positive voltage)?

YES : Go to Step 8.

NO : Go to Step 3.




STEP 3. Check the column switch connector C-203 for loose, corroded or damaged terminals, or terminals pushed back in the connector.

Q: Is column switch connector C-203 in good condition?

YES : Go to Step 4.

NO : Repair or replace the damaged component(s). Refer to Harness Connector Inspection. Confirm the DTC 12 is not displayed.










STEP 4. Check the wiring harness between column switch connector C-203 (terminal 1) and battery.

NOTE: Also check joint connector C-141 and intermediate connector C-209 for loose, corroded, or damaged terminals, or terminals pushed back in the connector. If joint connector C-141 or intermediate connector C-209 is damaged, repair or replace the damaged components) as described in Harness Connector Inspection. Diagrams

Q: Are the wiring harness between column switch connector C-203 (terminal 1) and battery in good condition?

YES : No action is necessary and testing is complete.

NO : The wiring harness may be damaged or the connector(s) may have loose, corroded or damaged terminals, or terminals pushed back in the connector. Repair the wiring harness as necessary. Confirm the DTC 12 is not displayed. Diagrams

STEP 5. Check the ground circuit to the column switch. Test at column switch connector C-203.




1. Disconnect column switch connector C-203 and measure the resistance available at the wiring harness side of the connector.




2. Measure the resistance between terminal 4 and ground.
- The resistance should equal 2 ohms or less.

Q: Is the measured resistance 2 ohms or less?

YES : Go to Step 8.

NO : Go to Step 6.




STEP 6. Check the column switch connector C-203 for loose, corroded or damaged terminals, or terminals pushed back in the connector.

Q: Is column switch connector C-203 in good condition?

YES : Go to Step 7.

NO : Repair or replace the damaged components). Refer to Harness Connector Inspection. Confirm the DTC 12 is not displayed. Diagrams







STEP 7. Check the wiring harness between column switch connector C-203 (terminal 4) and ground.

NOTE: Also check joint connector C-141 for loose, corroded, or damaged terminals, or terminals pushed back in the connector. If joint
connector C-141 is damaged, repair or replace the damaged components) as described in Harness Connector Inspection. Diagrams

Q: Are the wiring harness between column switch connector C-203 (terminal 4) and ground in good condition.

YES : No action is necessary and testing is complete.

NO : The wiring harness may be damaged or the connector(s) may have loose, corroded or damaged terminals, or terminals pushed back in the connector. Repair the wiring harness as necessary. Confirm the DTC 12 is not displayed.







STEP 8. Check the column switch connector C-203 and ETACS-ECU connector C-318 for loose, corroded or damaged terminals, or terminals
pushed back in the connector.


Q: Are column switch connector C-203 and ETACS-ECU connector C-318 in good condition?

YES : Go to Step 9.

NO : Repair or replace the damaged component(s). Refer to Harness Connector Inspection . Confirm the DTC 12 is not displayed. Diagrams










STEP 9. Check the wiring harness between column switch connector C-203 (terminal 3) and ETACS-ECU (terminal 59) connector C-318.

NOTE: Also check joint connector C-141 for loose, corroded, or damaged terminals, or terminals pushed back in the connector. If joint
connector C-141 is damaged, repair or replace the damaged components) as described in Harness Connector Inspection. Diagrams

Q: Are the wiring harness between column switch connector C-203 (terminal 3) and ETACS-ECU connector C-318 (terminal 59) in good condition?

YES : Go to Step 10.

NO : The wiring harness may be damaged or the connector(s) may have loose, corroded or damaged terminals, or terminals pushed back in the connector. Repair the wiring harness as necessary. Confirm the DTC 12 is not displayed.

STEP 10. Replacement of ECU.
1. Replace the column switch.
2. Confirm the DTC 12 is not displayed.

Q: Does DTC 12 set?

YES : Replace the ETACS-ECU. Confirm the DTC 12 is not displayed.

NO : No action is necessary and testing is complete.