Curiosii for ever!: Car repair manuals for everyone.

Inspection Procedure 2

Scan Tool Communication with ECM or PCM Is Not Possible.









CIRCUIT OPERATION
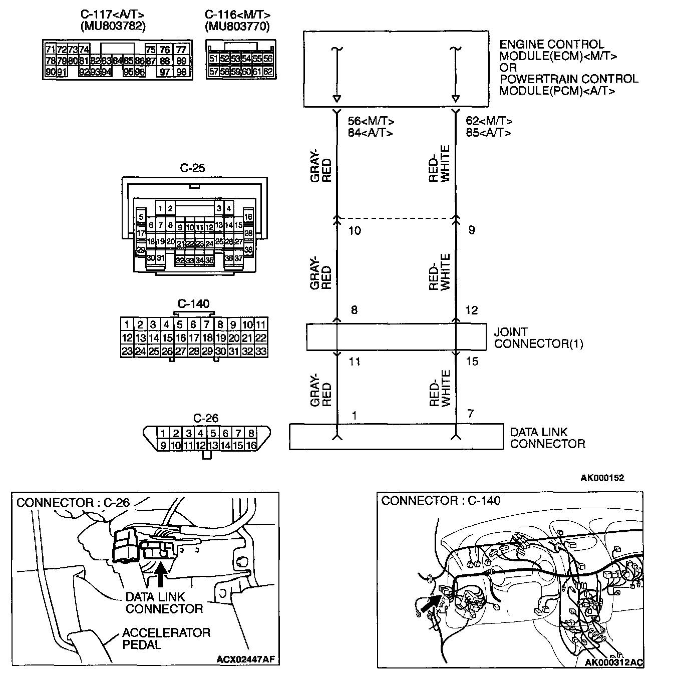
- A diagnostic output is made from the ECM (terminal 62) or PCM (terminal 85) to the diagnostic output terminal (terminal 7) of the data link connector.
- When diagnostic test mode control terminal (terminal 1) of the data link connector is grounded, the ECM (terminal 56) PCM (terminal 84) changes to the diagnostic test mode.

COMMENT
- No power supply to ECM or PCM
.
- Defective ground circuit of ECM or PCM
.
- Defective ECM or PCM
.
- Improper communication line between ECM or PCM
and scan tool.

TROUBLESHOOTING HINTS (The most likely causes for this case:)
- Malfunction of ECM or PCM
power supply circuit.
- Malfunction of the ECM or PCM
.
- Open circuit between ECM or PCM
and data link connector.

DIAGNOSIS




STEP 1. Check connector C-116 at ECM or connector C-117 at PCM for damage.

Q: Is the connector in good condition?

YES: Go to Step 2.

NO: Repair or replace it. Refer to Harness Connector Inspection. Then confirm that the malfunction symptom is eliminated.







STEP 2. Check for open circuit, short circuit to ground and harness damage between
data link connector C-26 terminal 1 and ECM connector C-116 terminal 56 or PCM connector C-117 terminal 84 .

NOTE: Check harness after checking intermediate connectors C-140 and C-25. If intermediate connectors are damaged, repair or replace them. Refer to Harness Connector Inspection. Then check that the malfunction is eliminated.

Q: Is the harness wire in good condition?

YES: Go to Step 3.

NO: Repair it. Then confirm that the malfunction symptom is eliminated.







STEP 3. Check for open circuit, short circuit to ground and harness damage between
data link connector C-26 terminal 7 and ECM connector C-116 terminal 62 or PCM connector C-117 terminal 85 .

NOTE: Check harness after checking intermediate connectors C-140 and C-25. If intermediate connectors are damaged, repair or replace them. Refer to Harness Connector Inspection. Then check that the malfunction is eliminated.

Q: Is the harness wire in good condition?

YES: Refer to INSPECTION PROCEDURE 29 - Power Supply System and
Ignition Switch-IG System.

NO: Repair it. Then confirm that the malfunction symptom is eliminated.