Curiosii for ever!: Car repair manuals for everyone.

DTC 12

Column switch fault or improper connection to the ETACS-ECU

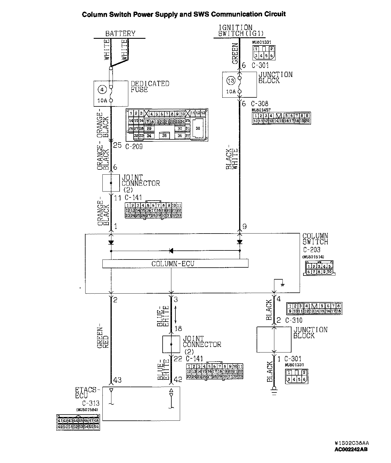
Column Switch Power Supply And SWS Communication Circuit:




Connectors:






CIRCUIT OPERATION
- The column switch (incorporated in ECU) is energized by the battery and the ignition switch (IG1). If one of the harness wires has an open circuit, power will be supplied by the other active harness wire.
- If the column switch (incorporated in ECU) receives a request signal from the ETACS-ECU, the column switch will inform the SWS communication line of various switch conditions.

DTC SET CONDITION
DTC 12 is displayed when the column switch (incorporated in ECU) sends an abnormal signal to the ETACS-ECU.

TROUBLESHOOTING HINTS
- Malfunction of the column switch
- Malfunction of the ETACS-ECU
- Damaged harness wires or connectors

DIAGNOSIS

Required Special Tools:
- MB991223: Harness Set
- MB991502: Scan Tool (MUT-II)

STEP 1. Check the ignition switch position.

Q: Does DTC 11 set with the ignition switch at "ON" position?

YES: Go to Step 5.
NO: Go to Step 2.

STEP 2. Check the column switch power supply circuit (battery circuit) at the column switch connector C-203 by backprobing.

1. Do not disconnect the column switch connector C-203.




2. Measure the voltage between terminal 1 and ground by backprobing.

Q: Is the voltage approximately 12 volts (battery positive voltage)?

YES:
Go to Step 8.
NO: Go to Step 3.




STEP 3. Check the column switch connector C-203 for damage.

Q: Is column switch connector C-203 in good condition?

YES:
Go to Step 4.
NO: Repair or replace it. Refer to Harness Connector Inspection. Confirm the DTC 12 is not displayed.







STEP 4. Check the harness wires between column switch connector C-203 and battery.

NOTE: After checking joint connectors C-141 and intermeditate connector C-209, check the wires. If joint connector C-141 and intermediate connector C-209 are damaged, repair or replace them. Refer to Harness Connector Inspection.

Q: Are the harness wires between column switch connector C-203 and battery in good condition?

YES:
There is no action to be taken.
NO: Repair them. Confirm the DTC 12 is not displayed.

STEP 5. Check the column switch ground circuit at the column switch connector C-203.
1. Disconnect the column switch connector C-203 and measure at the harness side.




2. Measure the resistance between terminal 4 and ground.

Q: Is the resistance less than 2 ohm?

YES:
Go to Step 8.
NO: Go to Step 6.




STEP 6. Check column switch connector C-203 for damage.

Q: Is column switch connector C-203 in good condition?

YES:
Go to Step 7.
NO: Repair or replace it. Refer to Harness Connector Inspection. Confirm the DTC 12 is not displayed.







STEP 7. Check the harness wires between column switch connector D-203 and ground.

NOTE: After checking junction block connectors C-310 and C301, check the wires. If junction block connectors C-310 and C301 are damaged, repair or replace them. Refer to Harness Connector Inspection.

Q: Are the harness wires between column switch connector C-203 and ground in good condition?

YES:
There is no action to be taken.
NO: Repair them. Confirm the DTC 12 is not displayed.







STEP 8. Check the column switch connector C-203 and ETACS-ECU connector C-313 for damage.

Q: Are column switch connector C-203 and ETACS-ECU connector C-313 in good condition?

YES:
Go to Step 9.
NO: Repair or replace them. Refer to Harness Connector Inspection. Confirm the DTC 12 is not displayed.







STEP 9. Check the harness wires between column switch connector C-203 and ETACS-ECU connector C-313.

NOTE: After checking joint connector C-141, check the wires. If joint connector C-141 is damaged, repair or replace it. Refer to Harness Connector Inspection.

Q: Are the harness wires between column switch connector C-203 and ETACS-ECU connector C-313 in good condition?

YES:
Go to Step 10.
NO: Repair them. Confirm the DTC 12 is not displayed.

STEP 10. Replacement of ECU.
1. Replace the column switch.
2. Confirm the DTC 12 is not displayed.

Q: Does DTC 12 set?

YES:
Replace the ETACS-ECU. Confirm the DTC 12 is not displayed.
NO: There is no action to taken.