Curiosii for ever!: Car repair manuals for everyone.

Trailer Connector/Provision Schematics




Trailer Connector/Provision Schematics

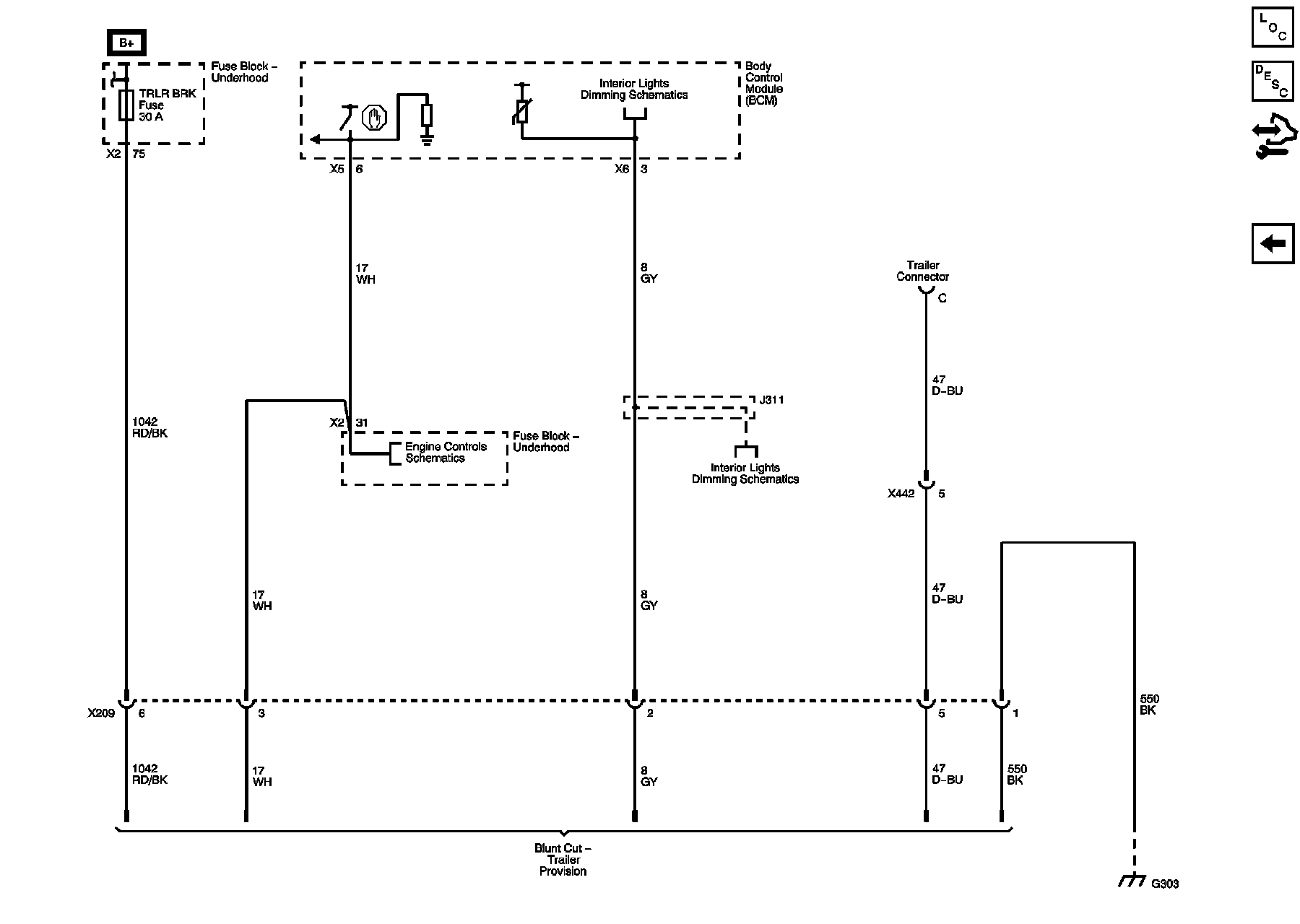
Trailer Connector (V92)





Master Electrical Component List
Exterior Lighting Systems Description and Operation
Control Module References
Trailer Brake Provisions (V92)
AFS, AUX POWER, CIGAR LIGHTER, FSCM, HTD MIR, RR DEFOG, RVC SNSR, TRLR BRK, and TRLR PWR Fuses
Electrical Center Identification Views
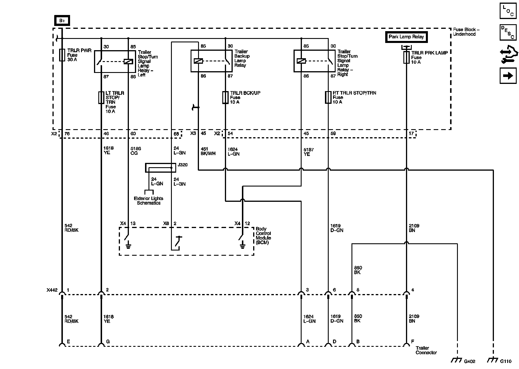
LT TRLR STOP/TRN, TRLR BCK/UP, and RT TRLR STOP/TRN Fuses
Electrical Center Identification Views
LT TRLR STOP/TRN, TRLR BCK/UP, and RT TRLR STOP/TRN Fuses
Electrical Center Identification Views
LT TRLR STOP/TRN, TRLR BCK/UP, and RT TRLR STOP/TRN Fuses
Park Lamp Control and Right Park Lamps
RT PRK and TRLR PRK LAMP Fuses
Backup Lamps
G402 (1 of 2)
G105 and G110
G402 (1 of 2)

Trailer Brake Provisions (V92)





Master Electrical Component List
Exterior Lighting Systems Description and Operation
Control Module References
Trailer Connector (V92)
AFS, AUX POWER, CIGAR LIGHTER, FSCM, HTD MIR, RR DEFOG, RVC SNSR, TRLR BRK, and TRLR PWR Fuses
Controlled/Monitored Subsystem References
Lamp Dimming (1 of 2)
Lamp Dimming (1 of 2)
G303 (1 of 2)