Curiosii for ever!
: Car repair manuals for everyone.
Home
>>
Chevy Truck
>>
2013
>>
Traverse FWD V6-3.6L
>>
Repair and Diagnosis
>>
Diagrams
>>
Electrical Diagrams
>>
Body Control Systems
Body Control Systems
Body Control System Schematics
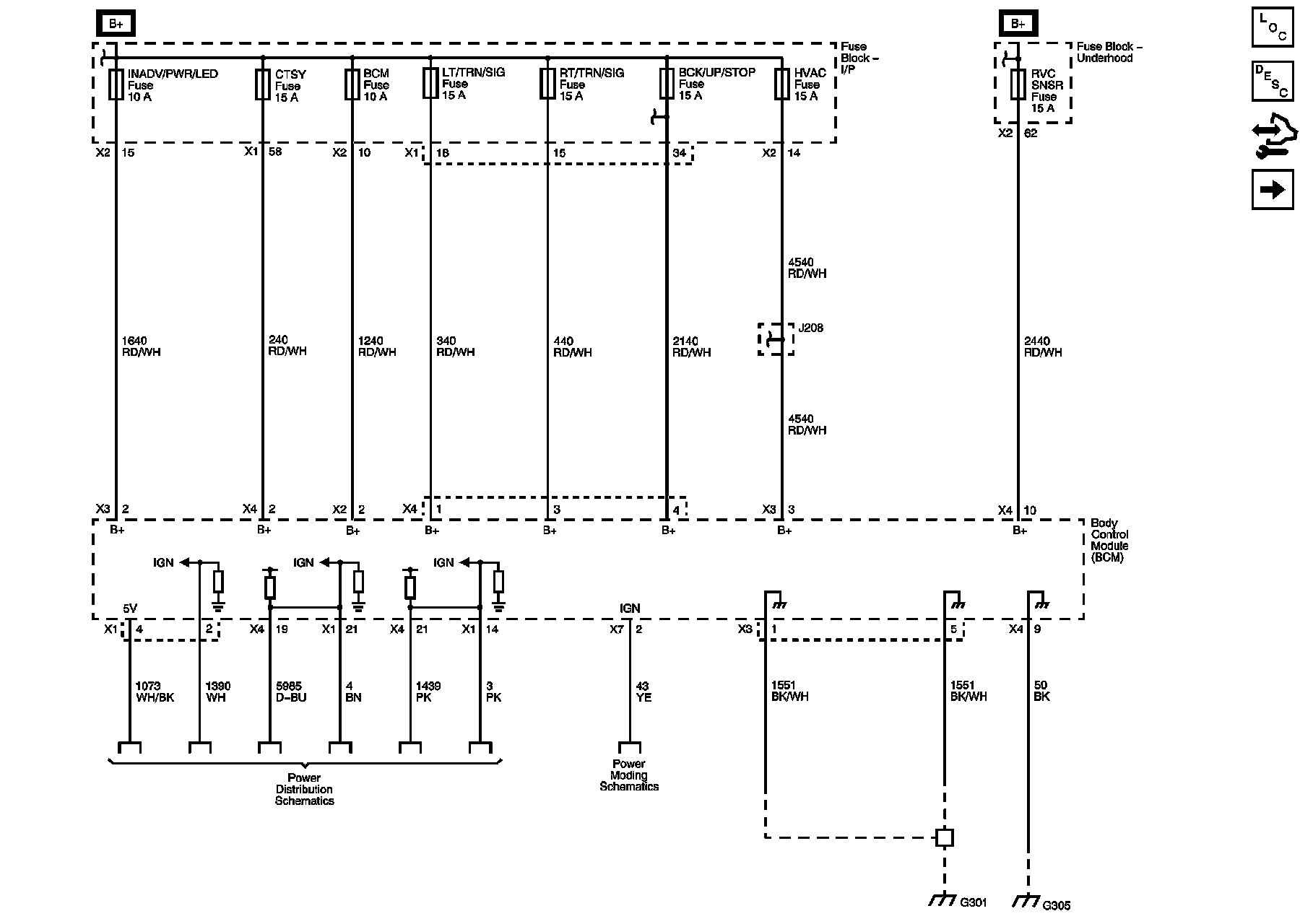
Power, Ground, and References to Power Distribution and Power Moding
Subsystem References (1 of 3)
Subsystem References (2 of 3)
Subsystem References (3 of 3)