Curiosii for ever!
: Car repair manuals for everyone.
Home
>>
Chevy Truck
>>
2011
>>
HHR L4-2.2L
>>
Repair and Diagnosis
>>
Diagrams
>>
Electrical Diagrams
>>
Locks
>>
System Diagram
>>
Release Systems Schematics
Release Systems Schematics
Release Systems Schematics
Liftgate
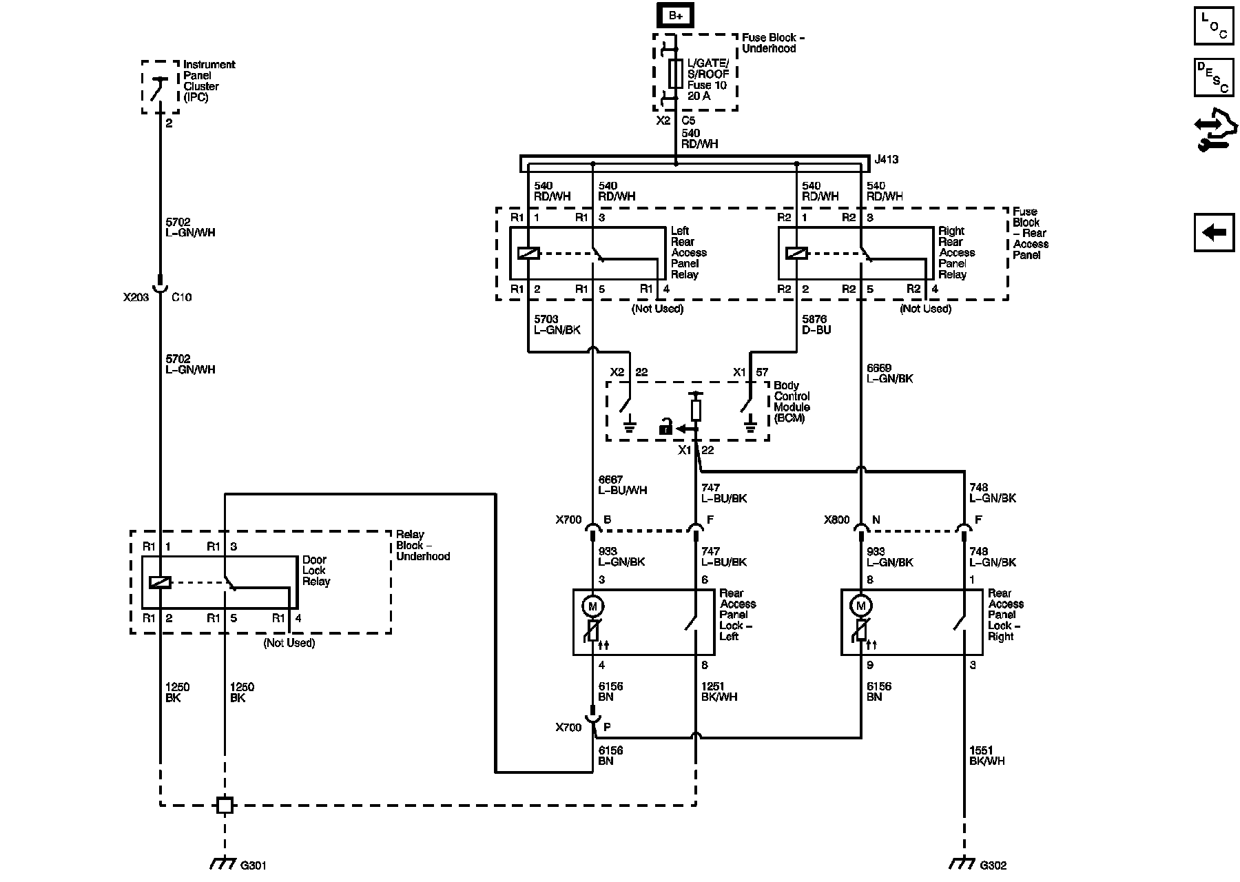
Rear Access Panel - Panel Van (1 of 2)
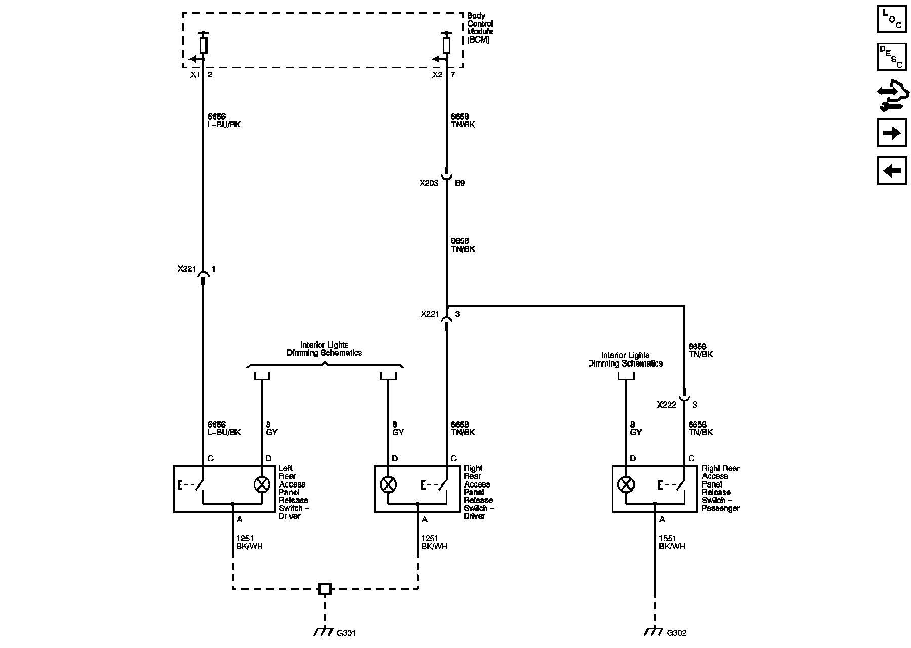
Rear Access Panel - Panel Van (2 of 2)