Curiosii for ever!
: Car repair manuals for everyone.
Home
>>
Chevy Truck
>>
2011
>>
Colorado 2WD V8-5.3L
>>
Repair and Diagnosis
>>
Diagrams
>>
Electrical Diagrams
>>
Body Control Systems
Body Control Systems
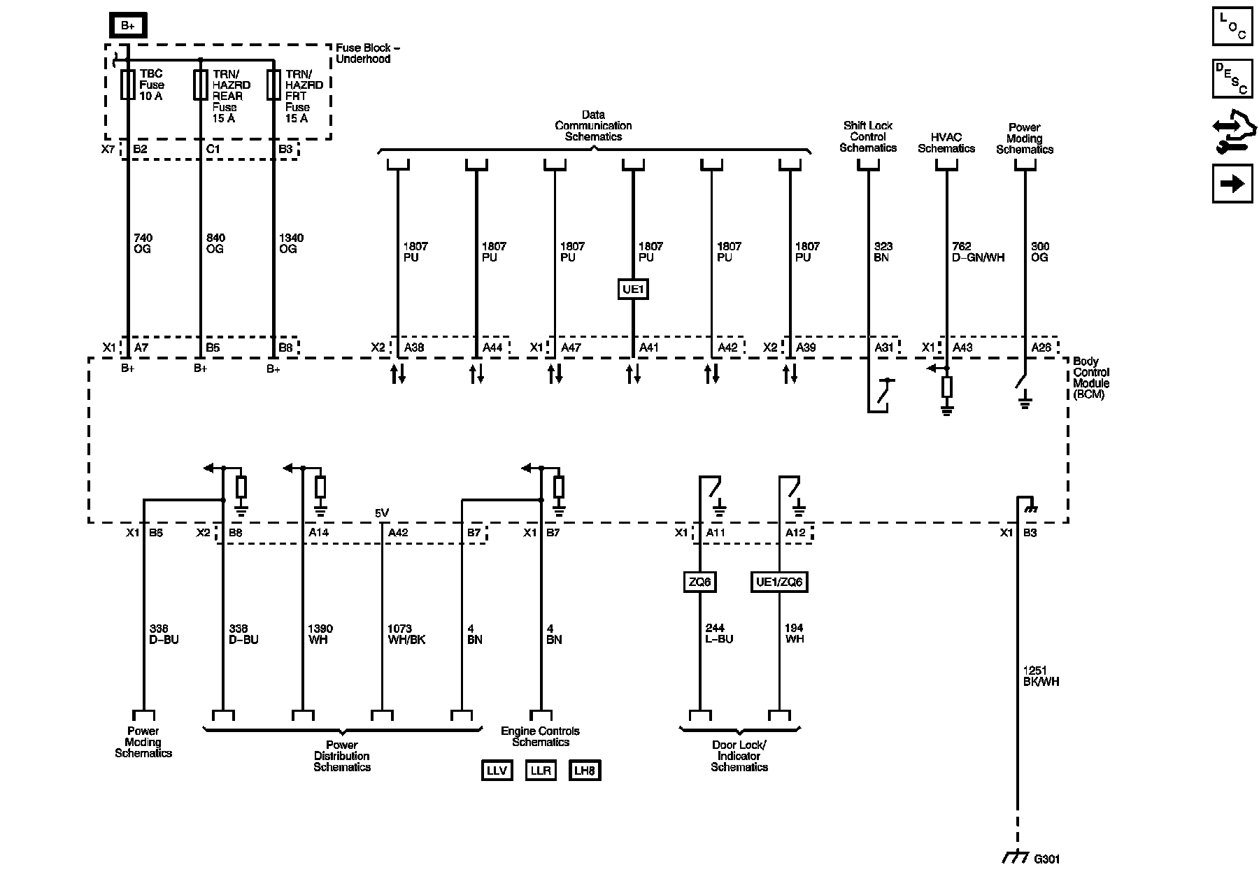
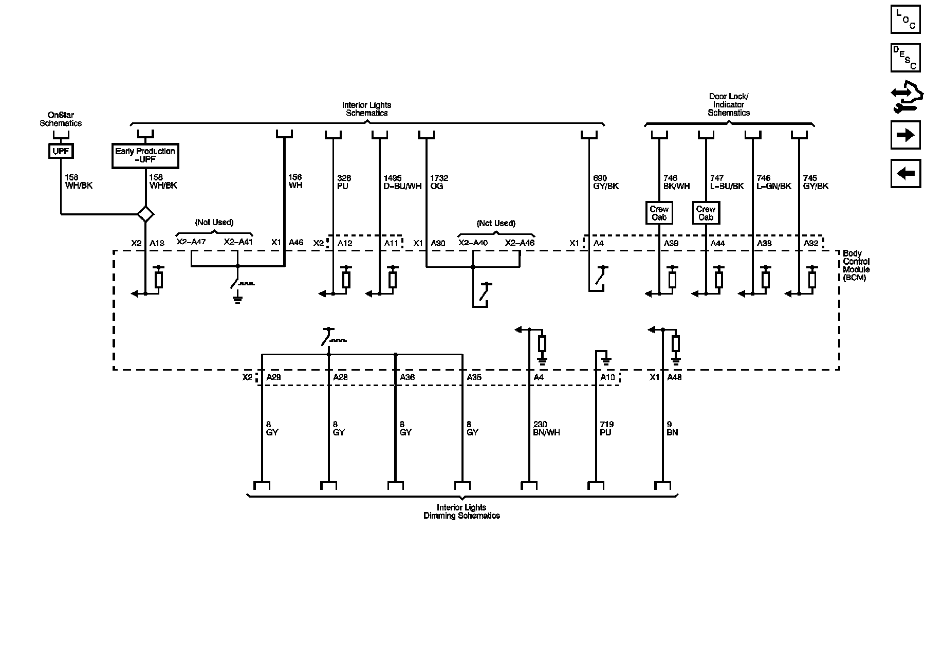
Body Control System Schematics
Power, Ground, and Subsystem References (1 of 4)
Subsystem References (2 of 4)
Subsystem References (3 of 4)
Subsystem References (4 of 4)