Curiosii for ever!: Car repair manuals for everyone.

System Diagram



Engine Controls Schematics

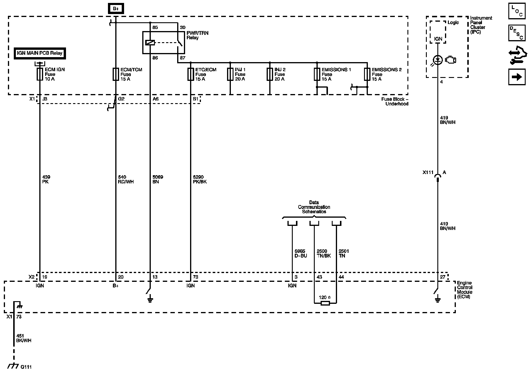
ECM Power, Ground, MIL, and Serial Data






5-Volt and Low Reference Bussing






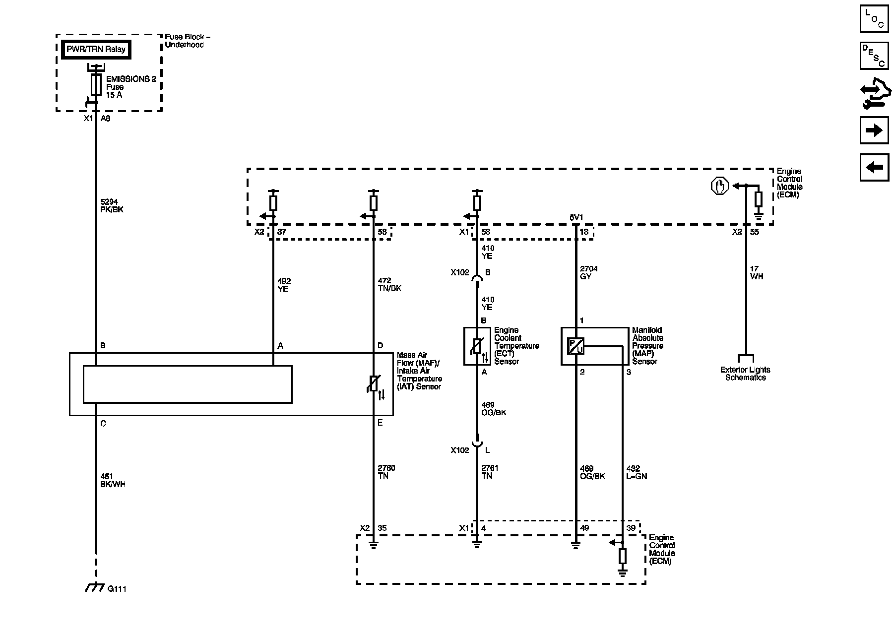
MAF/IAT, MAP, and ECT Sensors






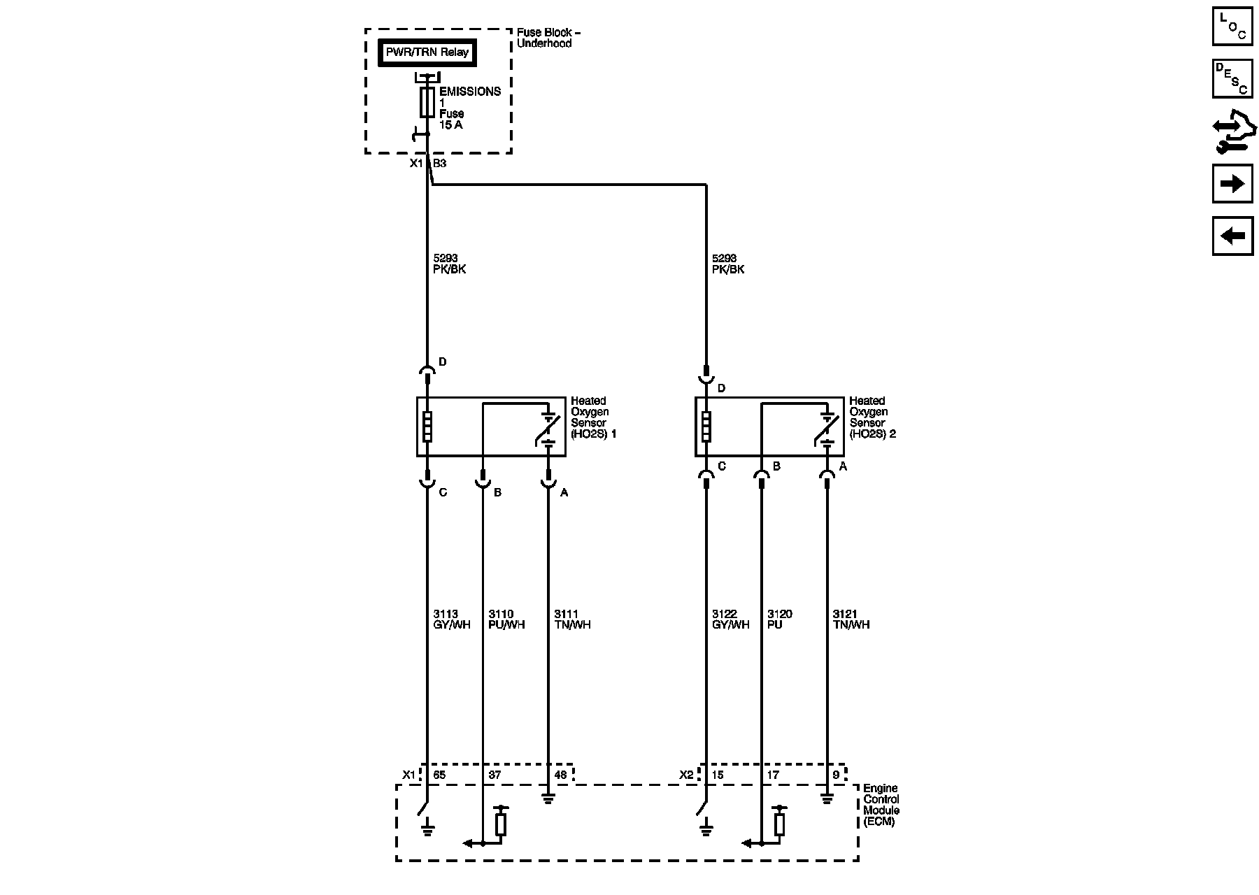
Heated Oxygen Sensors






Electronic Throttle Controls






Fuel Injectors and Fuel Pump Controls






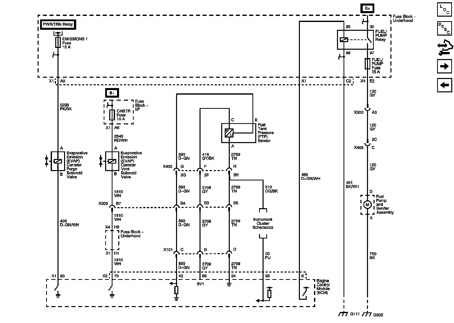
EVAP Solenoids, and FTP Sensor






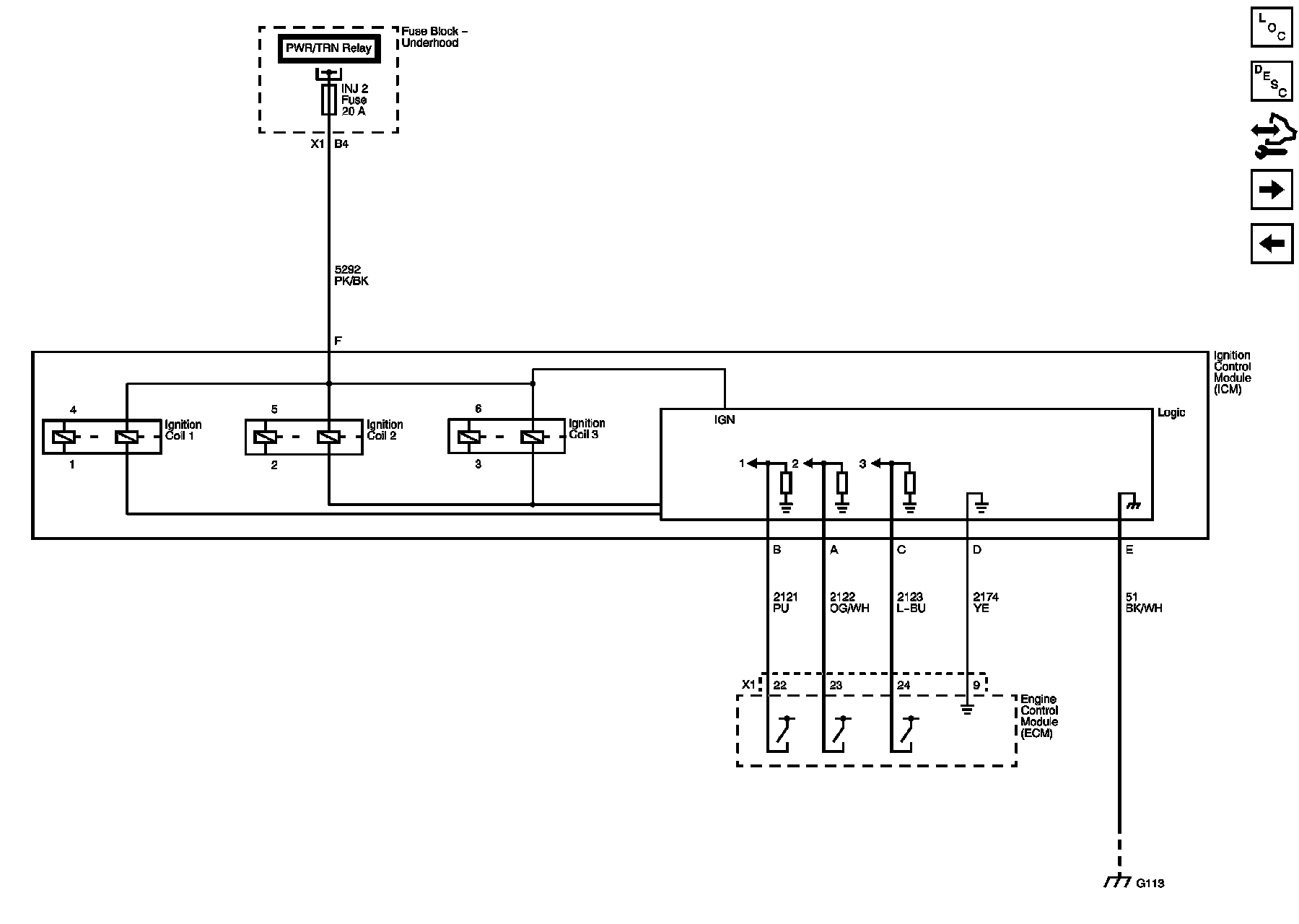
Ignition Control Module






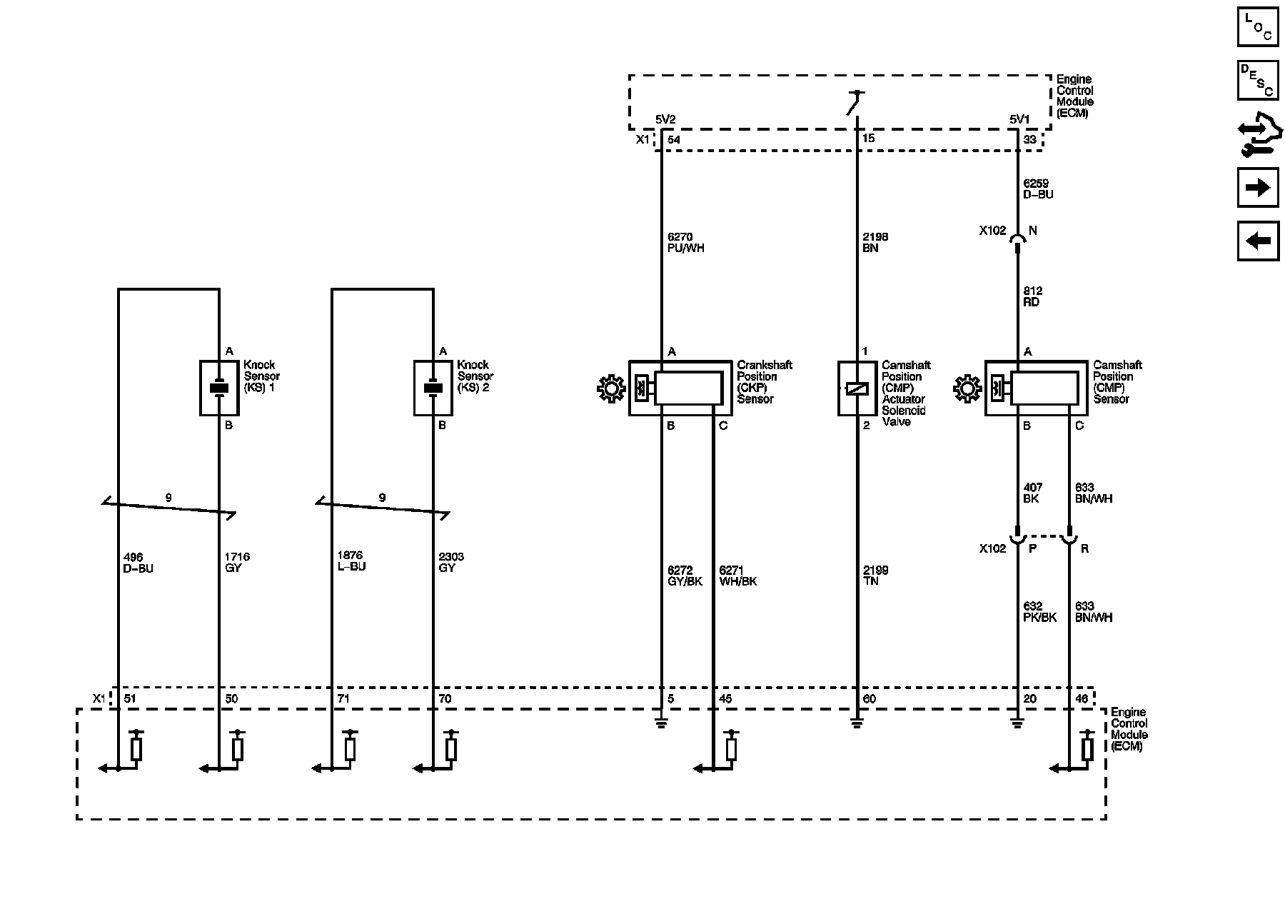
Camshaft, Crankshaft, Knock Sensors, and Camshaft Position Actuator Solenoid






Valve Lifter Oil Manifold (VLOM) Assembly, Brake Booster Vacuum Sensor, and Barometric Pressure (BARO) Sensor






Controlled/Monitored Subsystem References