Curiosii for ever!: Car repair manuals for everyone.

Electrical Diagrams



ENGINE CONTROLS SCHEMATICS

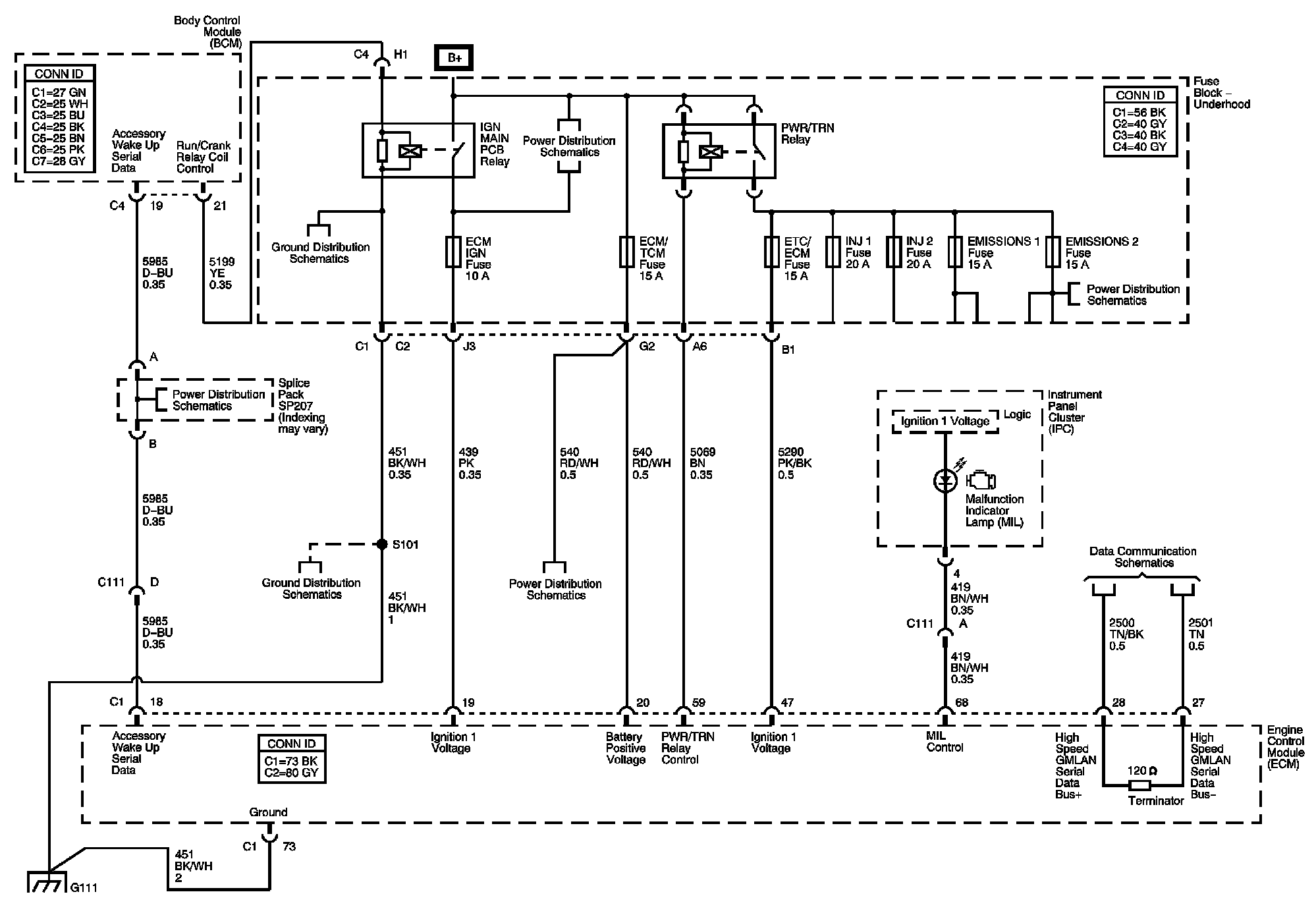
ECM Power, Ground, MIL, and Serial Data







5-Volt and Low Reference Bussing







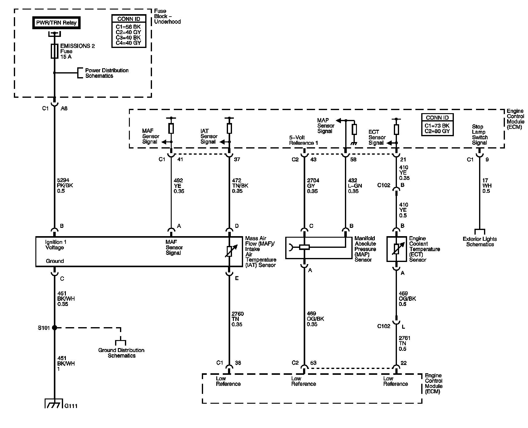
MAF/IAT, MAP, and ECT Sensors







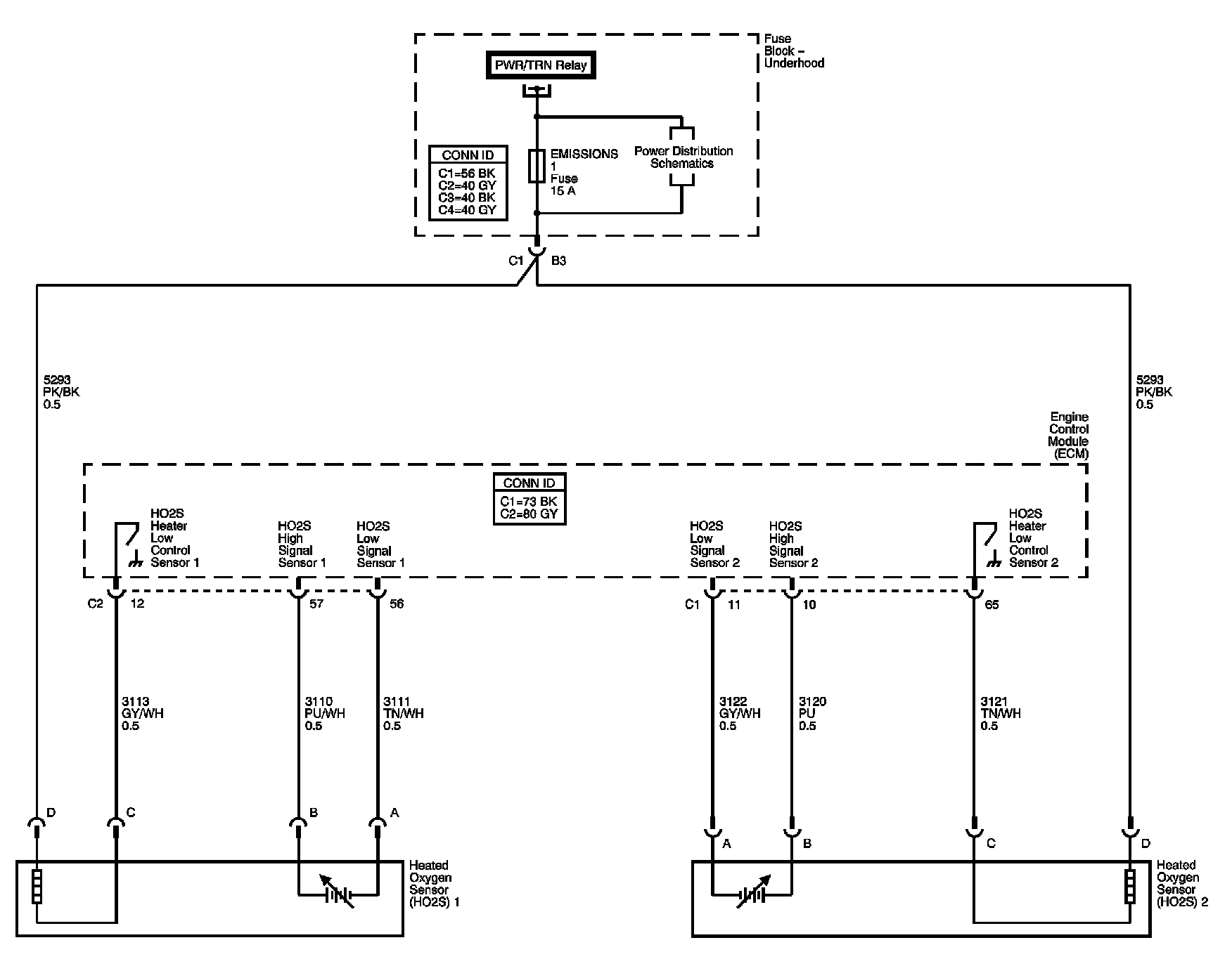
Heated Oxygen Sensors







Electronic Throttle Controls







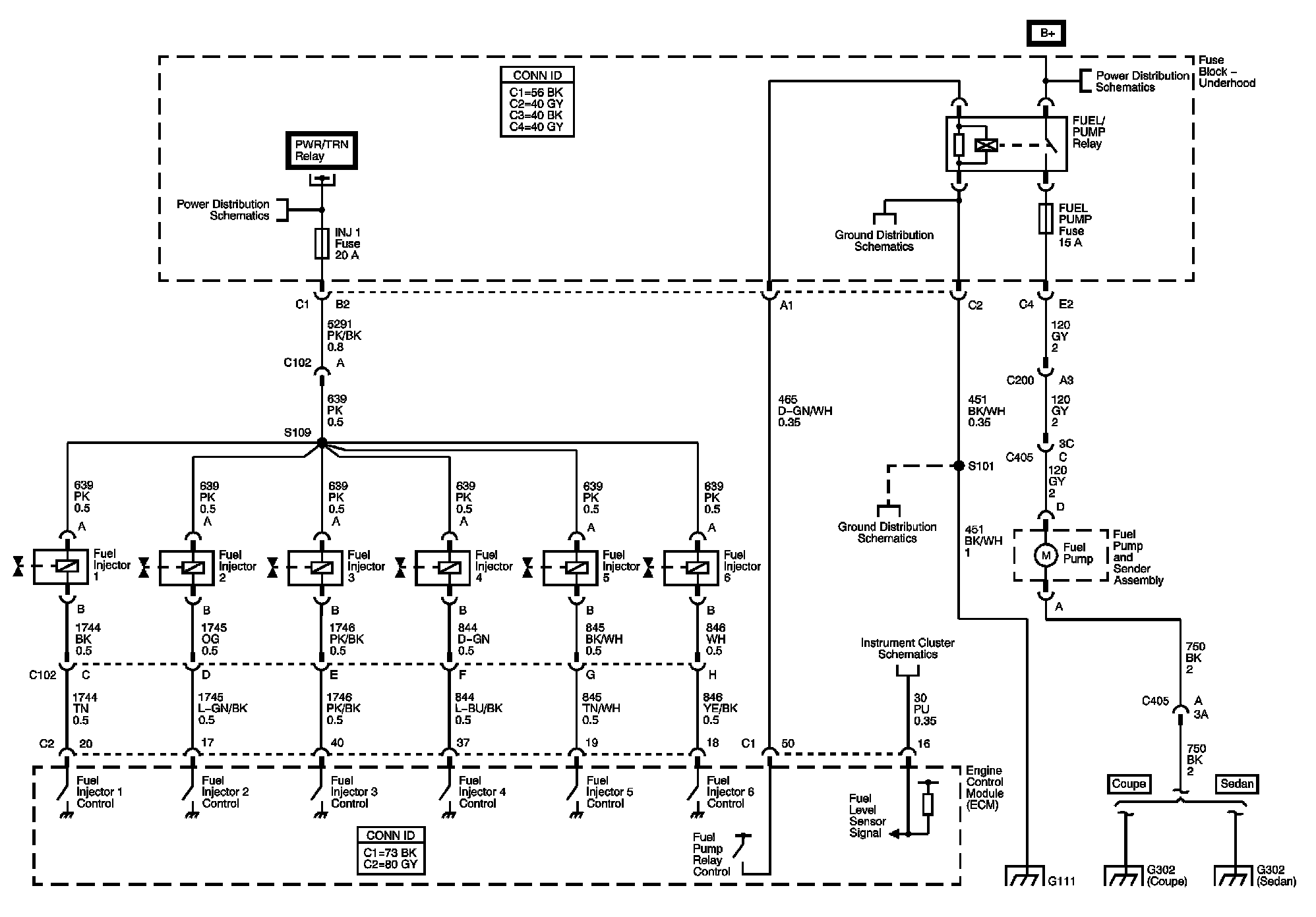
Fuel Injectors and Fuel Pump Controls







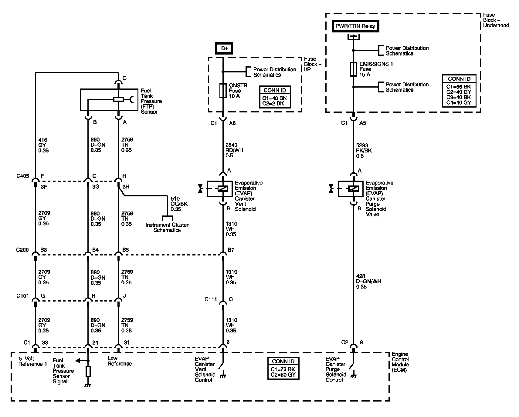
EVAP Solenoids, IMT Solenoid, and FTP Sensor







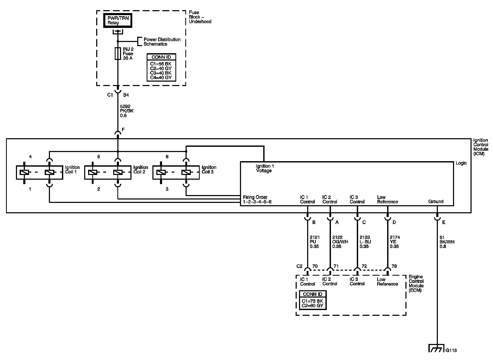
Ignition Control Module







Camshaft, Crankshaft, Knock Sensors, and Camshaft Position Actuator Solenoid







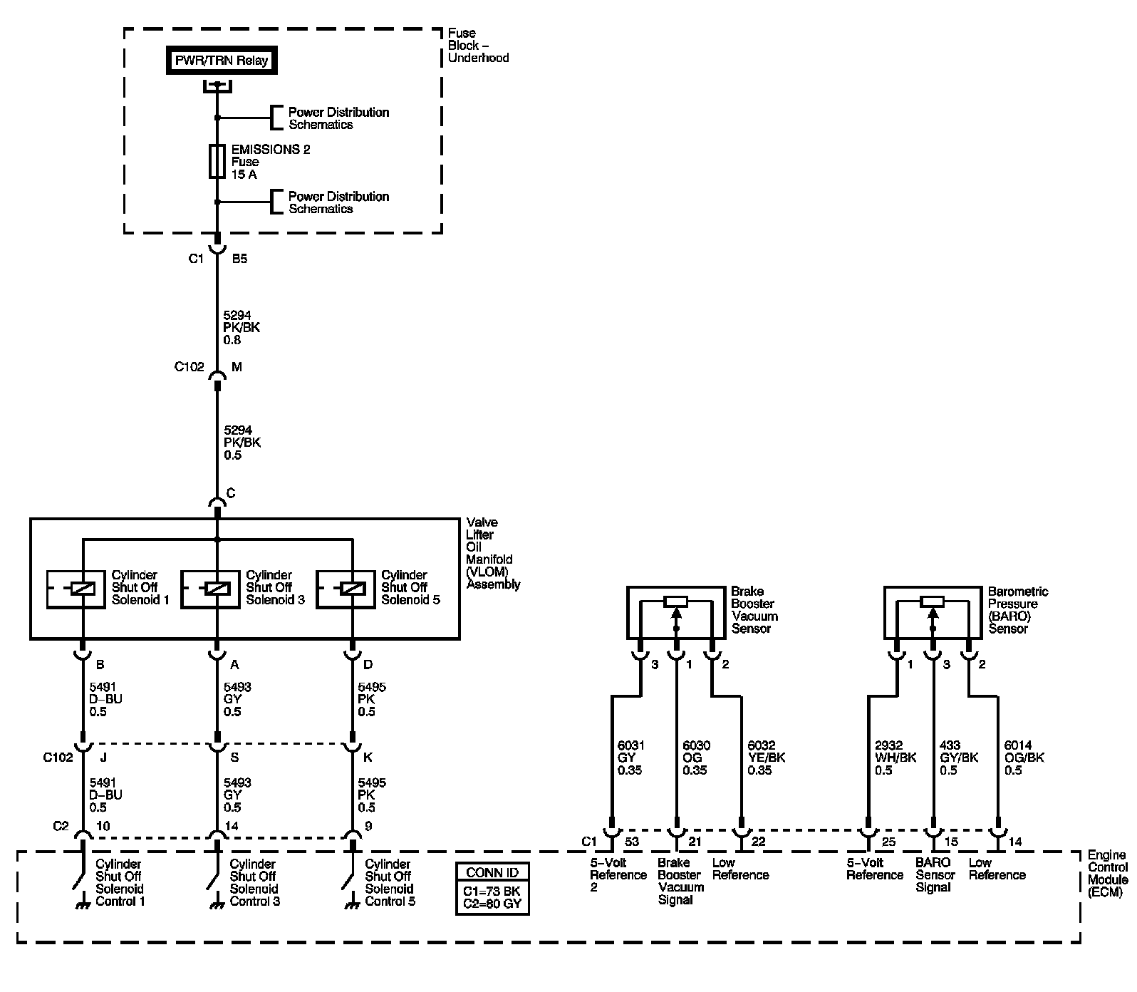
Valve Lifter Oil Manifold (VLOM) Assembly, Brake Booster Vacuum Sensor, and Barometric Pressure (BARO) Sensor







Controlled/Monitored Subsystem References







Locations: The locations for the Connectors, Grounds, Splices, and Grommets shown within these diagrams can be found via their numbers at Vehicle Locations. Locations