Curiosii for ever!
: Car repair manuals for everyone.
Home
>>
Chevrolet
>>
1992
>>
Lumina L4-151 2.5L
>>
Repair and Diagnosis
>>
Locations
>>
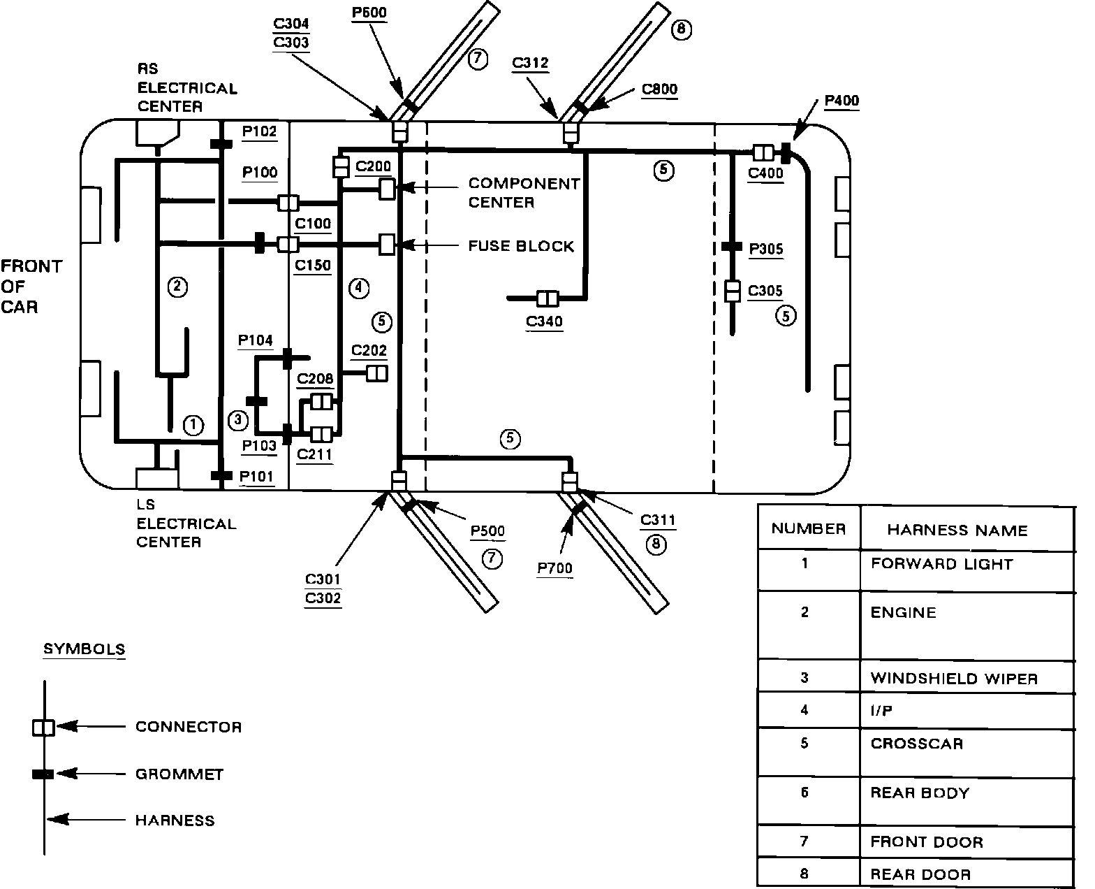
Harness Locations
Harness Locations
Harness Routing Views: