Curiosii for ever!
: Car repair manuals for everyone.
Home
>>
Chevrolet
>>
1991
>>
Beretta L4-134 2.2L
>>
Repair and Diagnosis
>>
Diagrams
>>
Electrical Diagrams
>>
Heating and Air Conditioning
>>
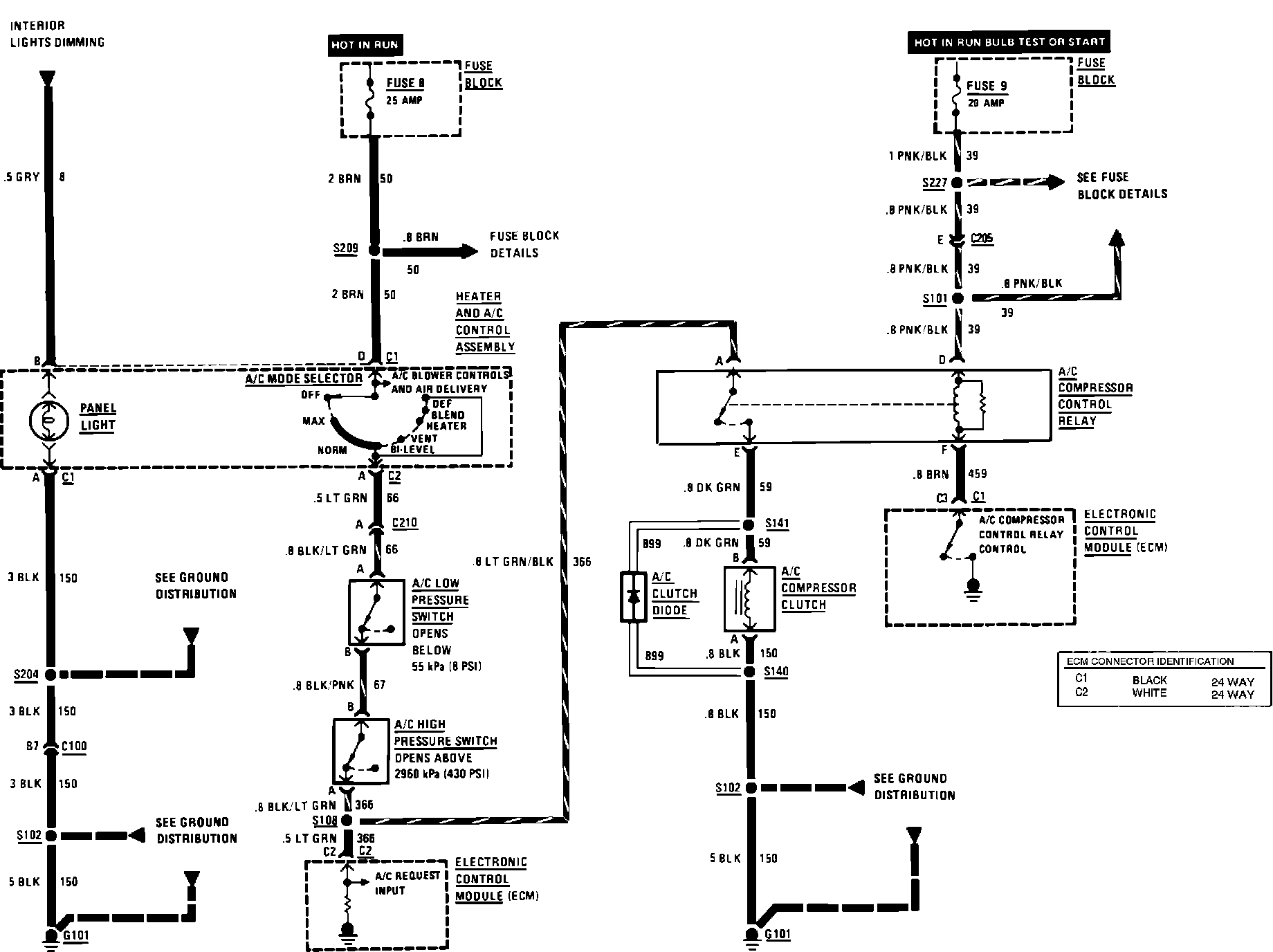
Compressor Controls
Compressor Controls
Air Conditioning: Compressor Controls: