Curiosii for ever!
: Car repair manuals for everyone.
Home
>>
Chevrolet
>>
1989
>>
Corvette V8-350 5.7L
>>
Repair and Diagnosis
>>
Diagrams
>>
Electrical Diagrams
>>
Antilock Brakes / Traction Control Systems
>>
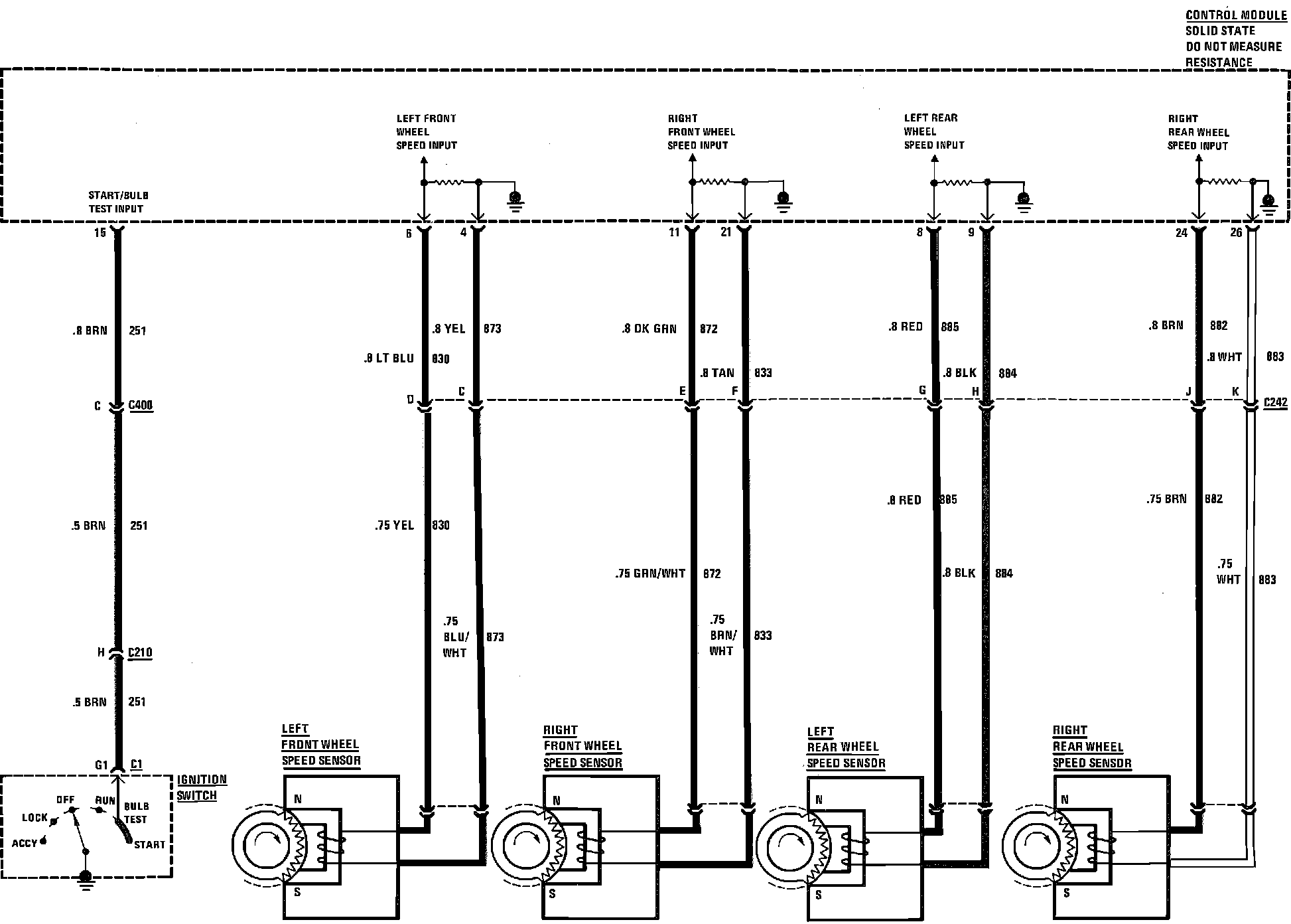
Electronic Brake Control Module
Electronic Brake Control Module
Anti-Lock Brake System Wiring Circuit: