Curiosii for ever!
: Car repair manuals for everyone.
Home
>>
Cadillac
>>
2013
>>
CTS Coupe AWD V6-3.6L
>>
Repair and Diagnosis
>>
Diagrams
>>
Electrical Diagrams
>>
Body Control Systems
Body Control Systems
Body Control System Schematics
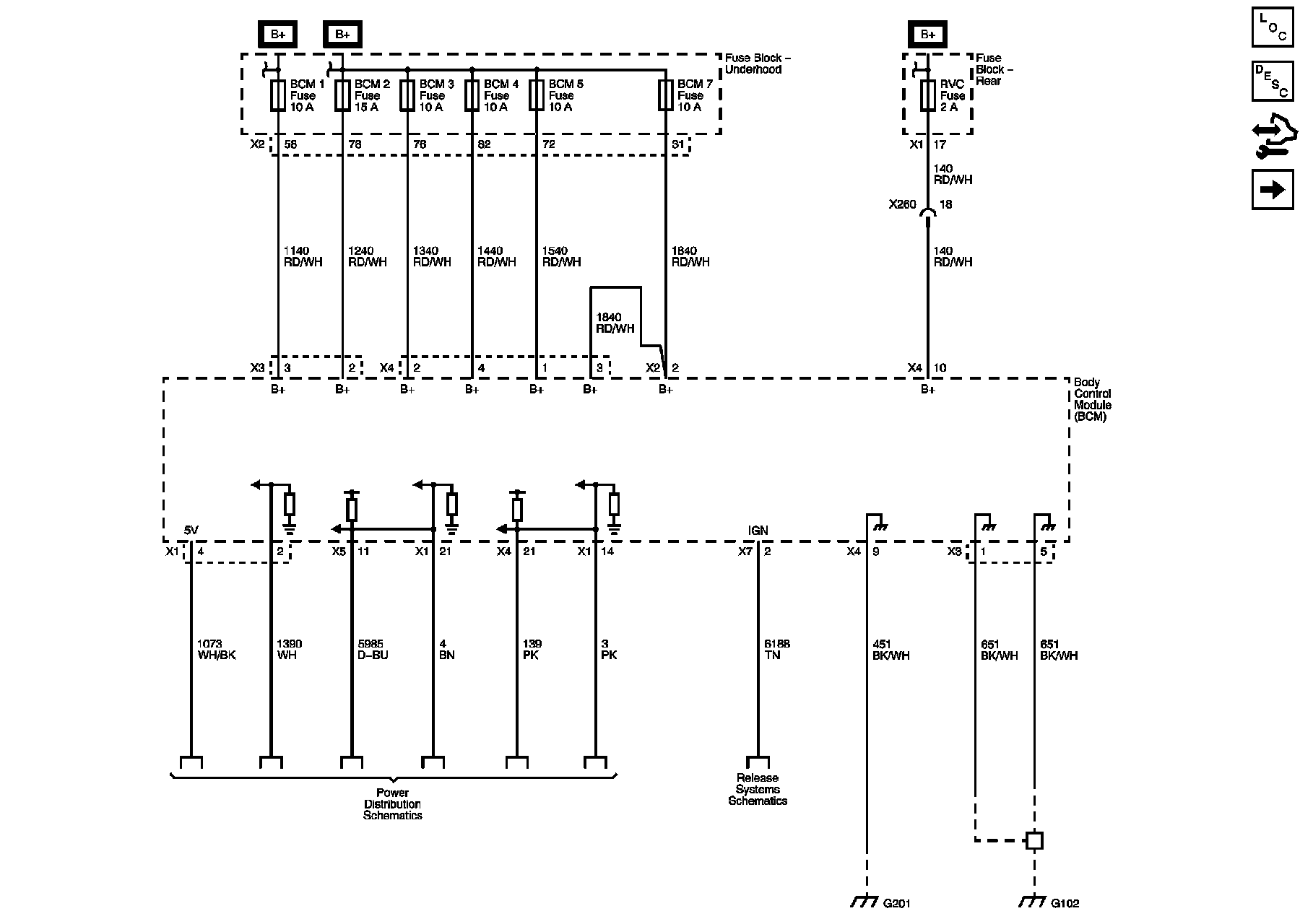
Module Power and Ground
System Reference (1 of 3)
System Reference (2 of 3)
System Reference (3 of 3)