Curiosii for ever!: Car repair manuals for everyone.

Electronic/Powertrain Control Module (ECM/PCM)

*** THIS ARTICLE REFLECTS CHANGES MADE BY TSB 906E13, DATED MAY 1990


Electronic Control Module:






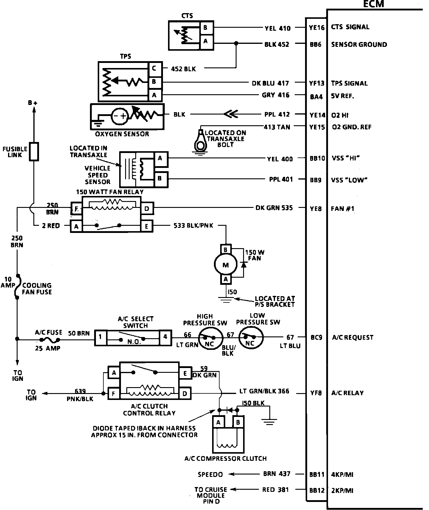
YE16 = CTS SIGNAL
BB6 = SENSOR GROUND
YF13 = TPS SIGNAL
BA4 = 5 VOLT REFERENCE
YE14 = 02 HI
YE15 = 02 GROUND REFERENCE
BB10 = VSS HI
BB9 = VSS LOW
YE8 = FAN #1
BC9 = A/C REQUEST
YF8 = A/C RELAY
BB11 = 4KP/MI
BB12 = 2KP/MI



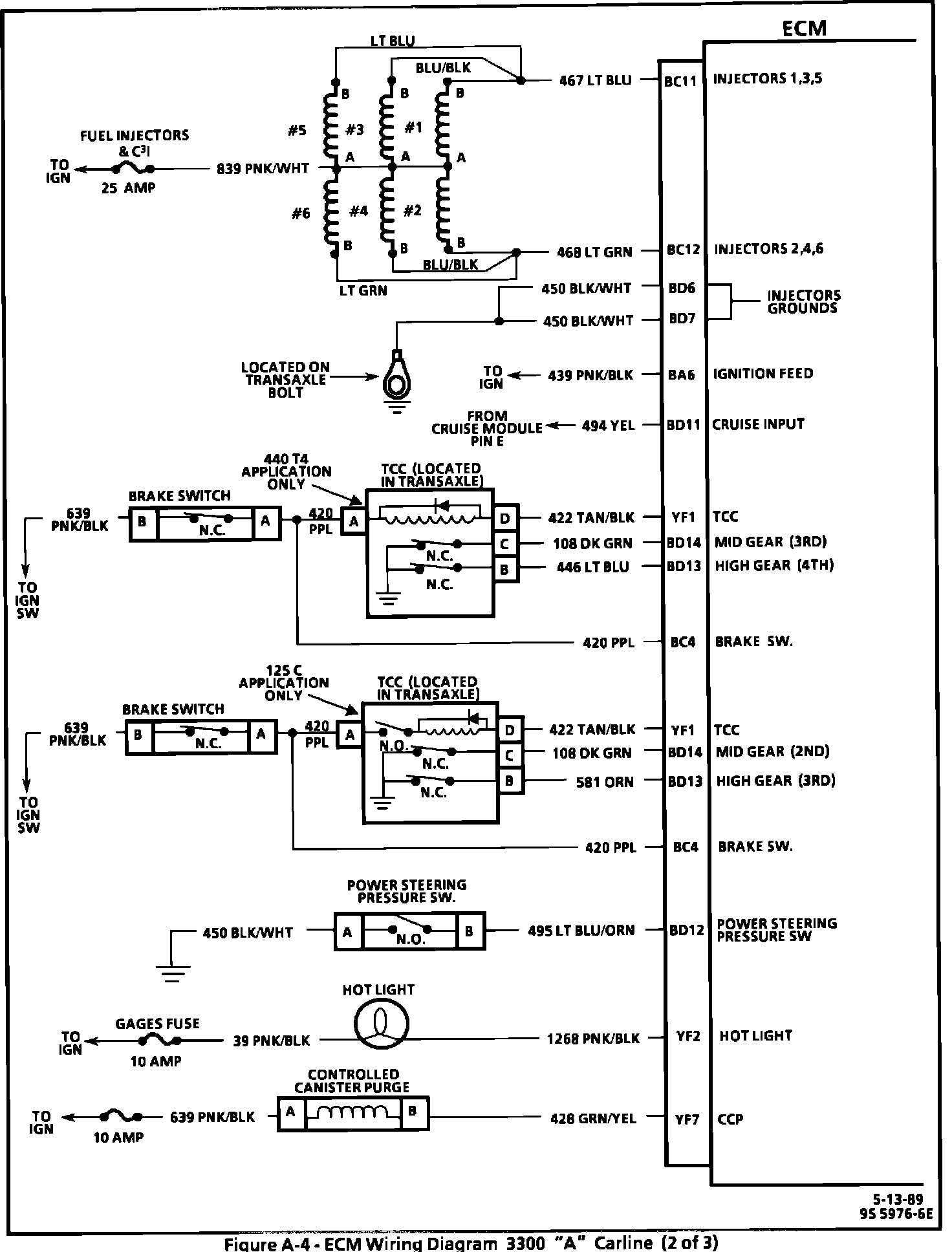
Engine Control Module:






BC11 = INJECTORS 1,3,5
BC12 = INJECTORS 2,4,6
BD6 = INJECTOR GROUND
BD7 = INJECTOR GROUND
BA6 = IGNITION FEED
BD11 = CRUISE INPUT
YF1 = TCC
BD14 = MID GEAR (3RD)
BD13 = HIGH GEAR (4TH)
BC4 = BRAKE SW.
BD12 = POWER STEERING PRESSURE SW.
YF2 = HOT LIGHT
YF7 = CANISTER CONTROL PURGE




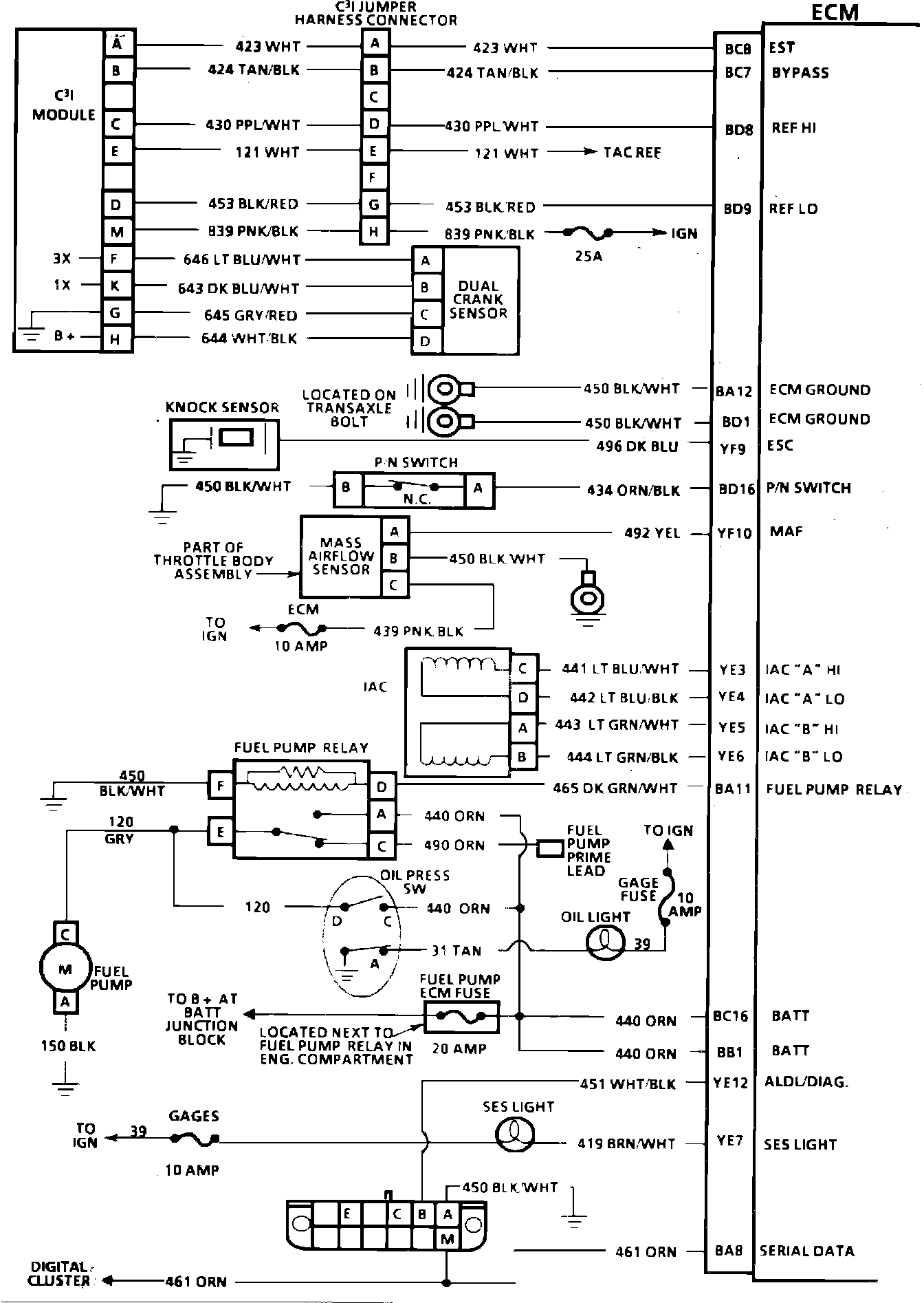
Electronic Control Module:






BC8 = EST
BC7 = BYPASS
BD8 = REFERENCE HI
BD9 = REFERENCE LOW
BA12 = ECM GROUND
BD1 = ECM GROUND
YF9 = ESC
BD16 = P/N SWITCH
YF10 = MAF
YE3 = IAC "A" HI
YE4 = IAC "A" LO
YE5 = IAC "B" HI
YE6 = IAC "B" LO
BA11 = FUEL PUMP RELAY
BC16 = BATTERY
BB1 = BATTERY
YE12 = ALDL/DIAG
YE7 = SES LIGHT
BA8 = SERIAL DATA