Curiosii for ever!
: Car repair manuals for everyone.
Home
>>
BMW
>>
2008
>>
M6 Convertible (E64) V10-5.0L (S85)
>>
Repair and Diagnosis
>>
Diagrams
>>
Electrical Diagrams
>>
Body
>>
General Vehicle Electrical System
>>
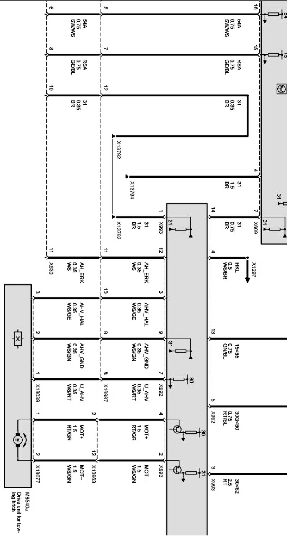
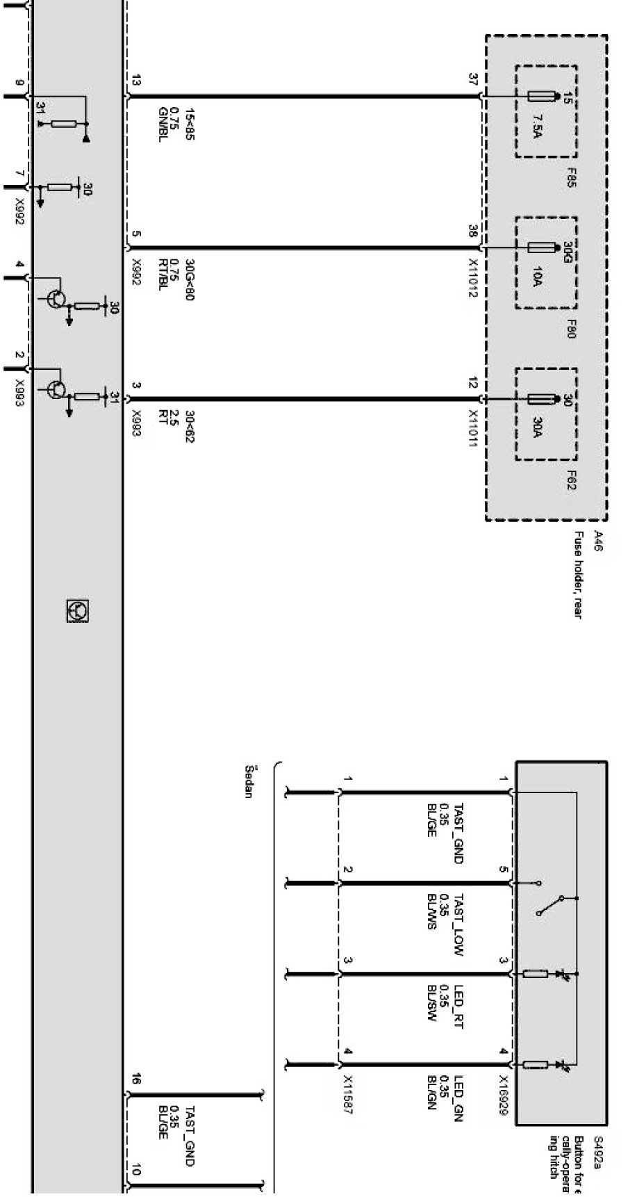
Trailer Mode (Ahm Trailer Module or AHM3+ Trailer Module)
>>
Trailer Lighting
Trailer Lighting