Curiosii for ever!
: Car repair manuals for everyone.
Home
>>
BMW
>>
2005
>>
X5 (E53) V8-4.8L (N62)
>>
Repair and Diagnosis
>>
Diagrams
>>
Electrical Diagrams
>>
Body
>>
Seat, Steering-Column, Mirror Functions
>>
Seat/Steering-Column Memory (SM/SLM Seat/Steering-Column Memory)
>>
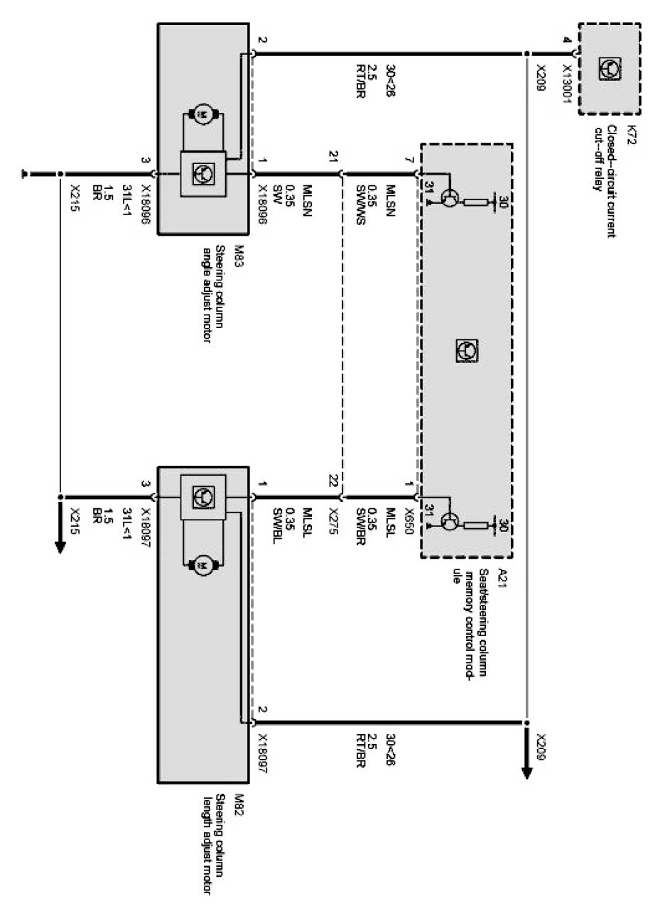
Steering Column Adjustment With Memory (As of 09/01)
Steering Column Adjustment With Memory (As of 09/01)
E53 Steering-column adjustment with memory Part 1 Of 1: