Compressor Control
COMPRESSOR CONTROL
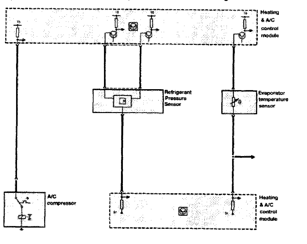
Using the E38 (99 MY) for this test, activation of the compressor clutch is an output control function of the IHKA module. Activation is carried out directly through a final stage (no relay required).
If the evaporator temperature is above 37°F (3°C), and the refrigerant pressure sensor indicates acceptable pressure, the control panel/module then signals the ECM that it is about to activate the compressor. The IHKA module will then activate the compressor if a cancellation signal is not received from the ECM.
Additional criteria:
- If the "snowflake" button is on at engine start-up, the control module delays compressor clutch activation until the engine speed exceeds 600 RPM for at least 5 seconds.
- If the "snowflake" is switched off while the engine is running, the control module continues to cycle the compressor (with increasingly longer off times) for up to 15 minutes.
Compressor deactivation:
- ECM detects full load - signalling IHKA
- Evaporator temperature < 2°C
- Coolant temperature > 120°C
- Refrigerant pressure sensor indicates pressure is too low/high