Curiosii for ever!
: Car repair manuals for everyone.
Home
>>
BMW
>>
2002
>>
M3 Convertible (E46) L6-3.2L (S54)
>>
Repair and Diagnosis
>>
Diagrams
>>
Electrical Diagrams
>>
Body
>>
Audio, Video and Navigation
>>
Navigation (NAV Navigation Computer MKII or NAV Navigation Computer)
>>
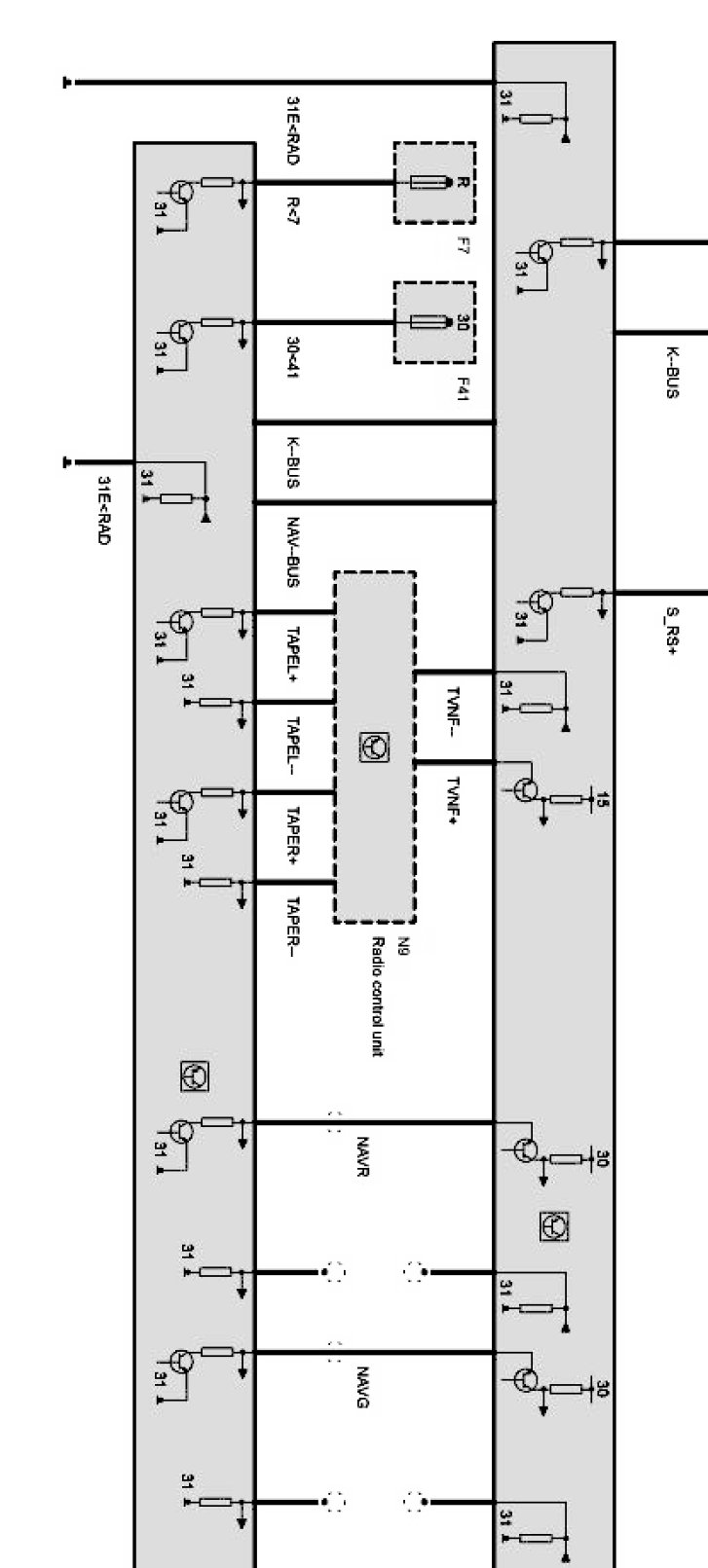
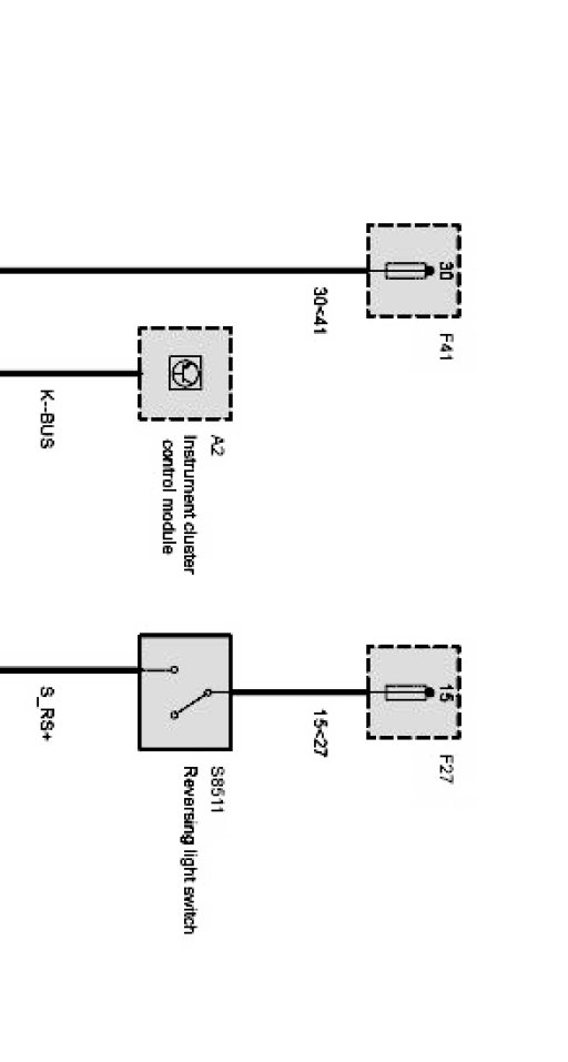
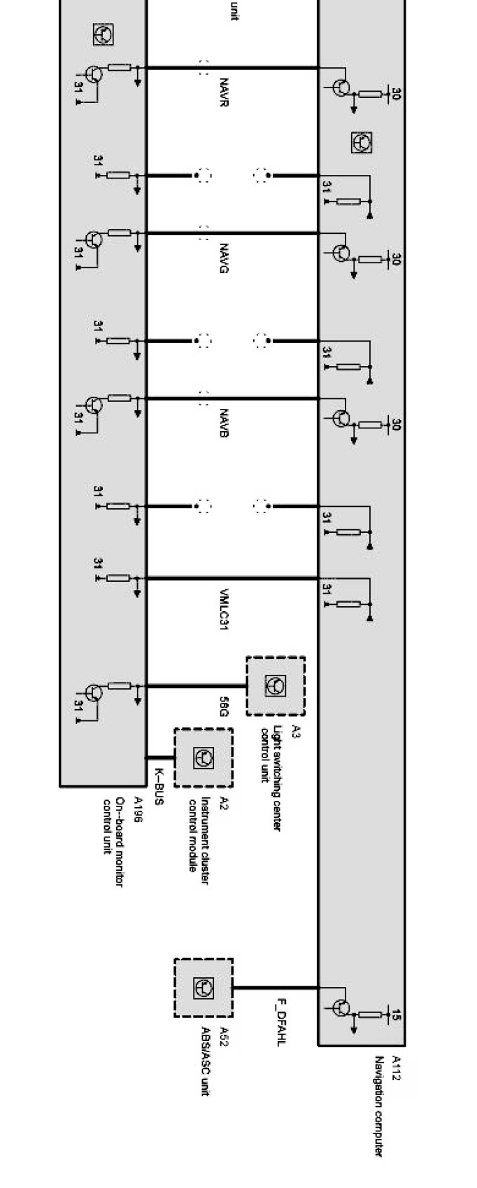
Navigation (Without Auto Trans W/ ASC MK20 Automatic Stability Control W/NAV Navigation Computer)
Navigation (Without Auto Trans W/ ASC MK20 Automatic Stability Control W/NAV Navigation Computer)