Curiosii for ever!
: Car repair manuals for everyone.
Home
>>
Acura
>>
2006
>>
RL V6-3.5L
>>
Repair and Diagnosis
>>
Diagrams
>>
Electrical Diagrams
>>
Windows
>>
Window Shade
Window Shade
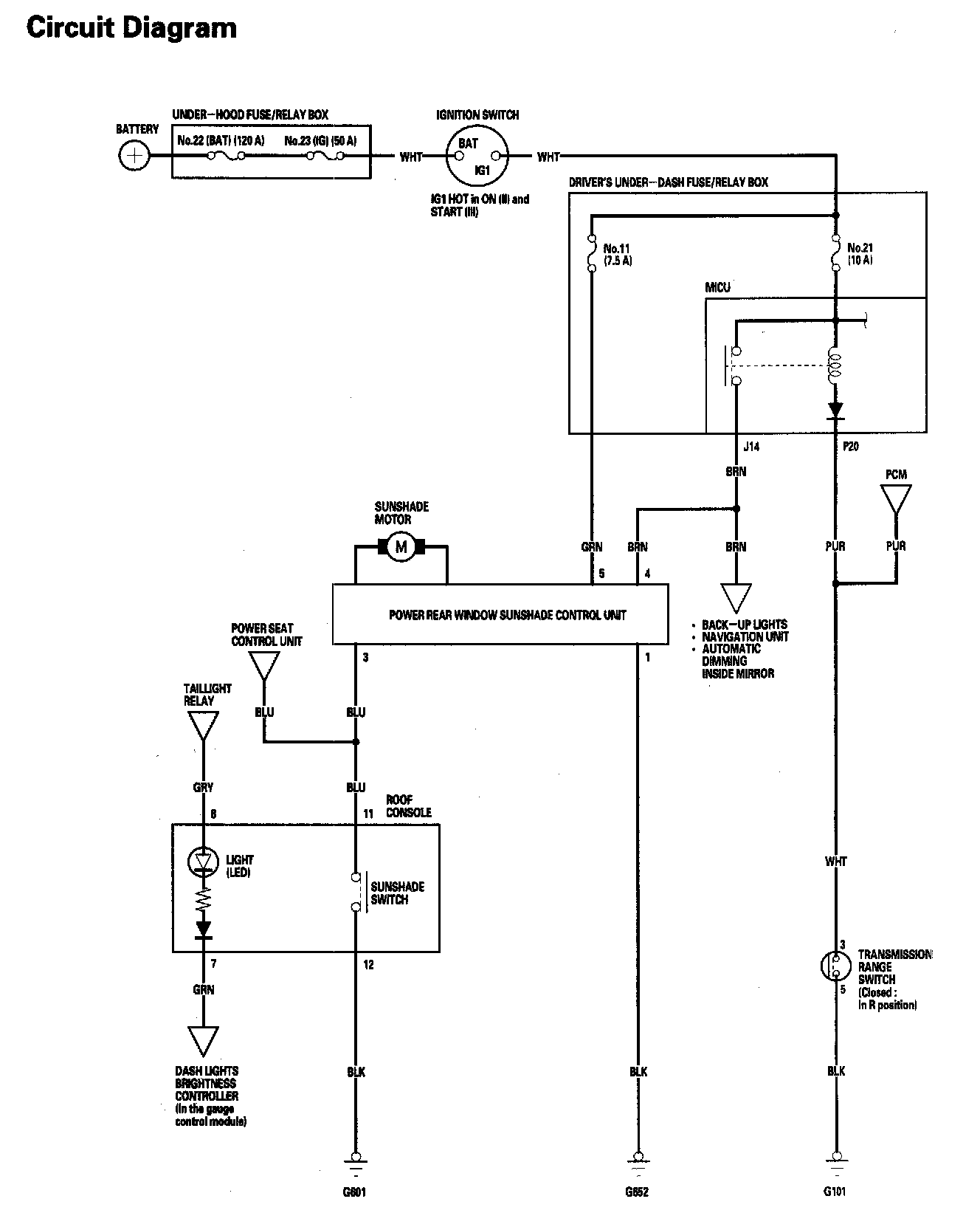
Power Rear Window Sunshade - Circuit Diagram: